广州【保利南方面粉厂营销中心】最新首页【广州保利南方面粉厂售楼处电话】房价_电话_户型_楼盘详情

搜狐焦点慈溪站 2025-10-15 22:04:04
用手机看
扫描到手机,新闻随时看

扫一扫,用手机看文章
更加方便分享给朋友

广州保利南方面粉厂售楼处电话:400-033-1899转接6789 广州保利南方面粉厂营销中心电话☎:400-033-1899转接6789【营销中心已认证】🥇🥇 ✨广州保利南方面粉厂售楼处电话:400-033-1899转接6789

广州保利南方面粉厂售楼处电话:400-033-1899转接6789

广州保利南方面粉厂营销中心电话☎:400-033-1899转接6789【营销中心已认证】🥇🥇

✨广州保利南方面粉厂售楼处电话:400-033-1899转接6789

广州保利南方面粉厂营销中心电话☎:400-033-1899转接6789【营销中心已认证】🥇🥇

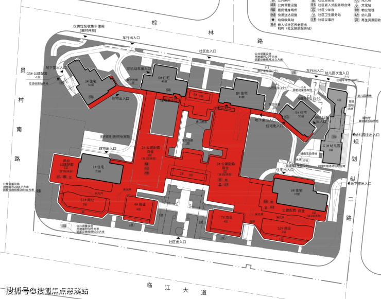
面粉厂地块位于临江大道旁,与珠城直线距离仅约600m;隔着净水厂,就是广州豪宅标杆汇悦台,二手成交单价一度超30万/平。

3月14号,政府网站就正式获批了项目的规划图!

从规划图看广州临江大道项目的楼栋布局、面积段已经基本定型了!

1.全盘一共6栋住宅,货量500+套。

2.地块内部各个楼栋由架空连廊连接,可以直达商业及公建配套区域。

3.配建巨量底商(红色部分),未来极有可能打造成为会所,顶部承担屋顶花园功能。

广州保利南方面粉厂售楼处电话:400-033-1899转接6789

广州保利南方面粉厂营销中心电话☎:400-033-1899转接6789【营销中心已认证】🥇🥇

✨广州保利南方面粉厂售楼处电话:400-033-1899转接6789

声明:本文由入驻焦点开放平台的作者撰写,除焦点官方账号外,观点仅代表作者本人,不代表焦点立场。