三亚海棠颐和府售楼处电话_预约看房_三亚海棠颐和府楼盘详情-2025最新房价-户型图
搜狐焦点慈溪站 2025-10-12 12:48:49
用手机看
扫描到手机,新闻随时看
扫一扫,用手机看文章
更加方便分享给朋友
三亚海棠颐和府售楼处400-033-1899转接5888
三亚海棠颐和府售楼处400-033-1899转接5888
【基础信息】
开发商:三亚亿隆
占地面积:83710㎡
建筑面积:59357.81㎡
容 积 率:0.4
总 户 数:25户
产权年限:40年
停车位:206个(包含酒店停车位)
绿 地 率:50.8%
建筑密度:18.6%
交付标准:毛坯交付
产品售价:3800万—1亿
【项目效果图】
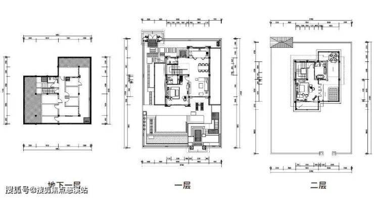
【户型鉴赏】B户型品鉴
地上面积204.85㎡,庭院净面积403-810㎡,占地面积0.8-1.4亩
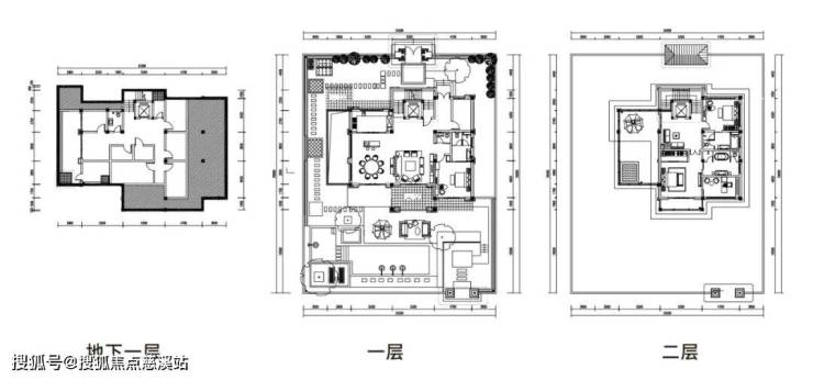
D户型品鉴
地上面积330.99㎡,庭院净面积767-1826㎡,占地面积1.1-3亩
三亚海棠颐和府售楼处400-033-1899转接5888
声明:本文由入驻焦点开放平台的作者撰写,除焦点官方账号外,观点仅代表作者本人,不代表焦点立场。
