热搜好房|三亚 保利棠隐售楼处发布打造理想品质生活

搜狐焦点慈溪站 2025-09-30 15:47:56
用手机看
扫描到手机,新闻随时看

扫一扫,用手机看文章
更加方便分享给朋友

三亚 保利棠隐 ☑️☑️售楼处电话;400-033-1899转5555【预约热线】 ☑️☑️售楼处电话/地址☎:400-033-1899转5555 (开发商热线) ☎️如有问题欢迎来电咨询,专业一对一热情服务,让您用专业眼光去买房。

三亚 保利棠隐

☑️☑️售楼处电话;400-033-1899转5555【预约热线】

☑️☑️售楼处电话/地址☎:400-033-1899转5555 (开发商热线)

☎️如有问题欢迎来电咨询,专业一对一热情服务,让您用专业眼光去买房。

———— 项目信息 —————

【占地面积】4.34万m²

【计容面积】1.52万m²

【容 积 率】0.35

【绿 地 率】30%

【土地性质】40年

【项目规划】高端商业、隐奢酒店、业主会所

【可售商业】49套

【户型面积】建面约 143-175m²

【交付标准】毛坯交付

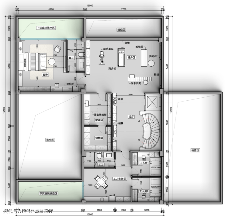
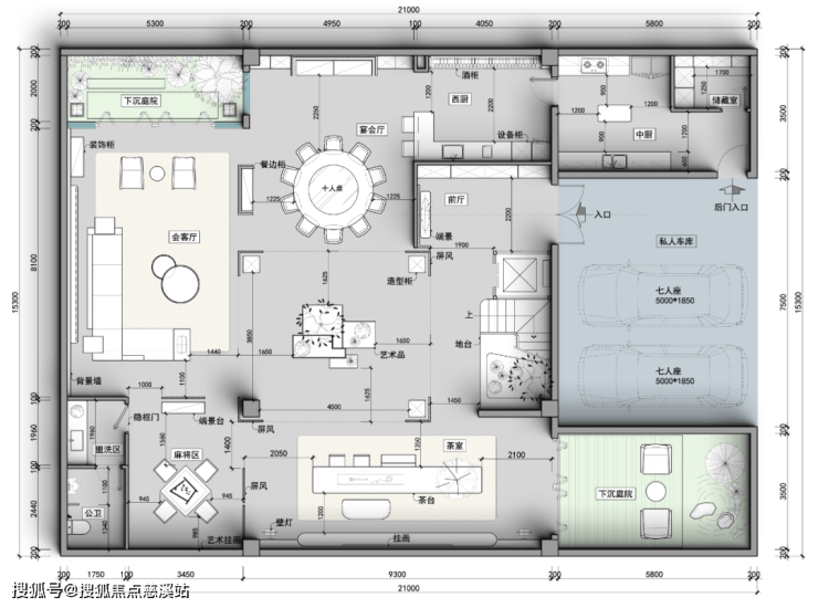
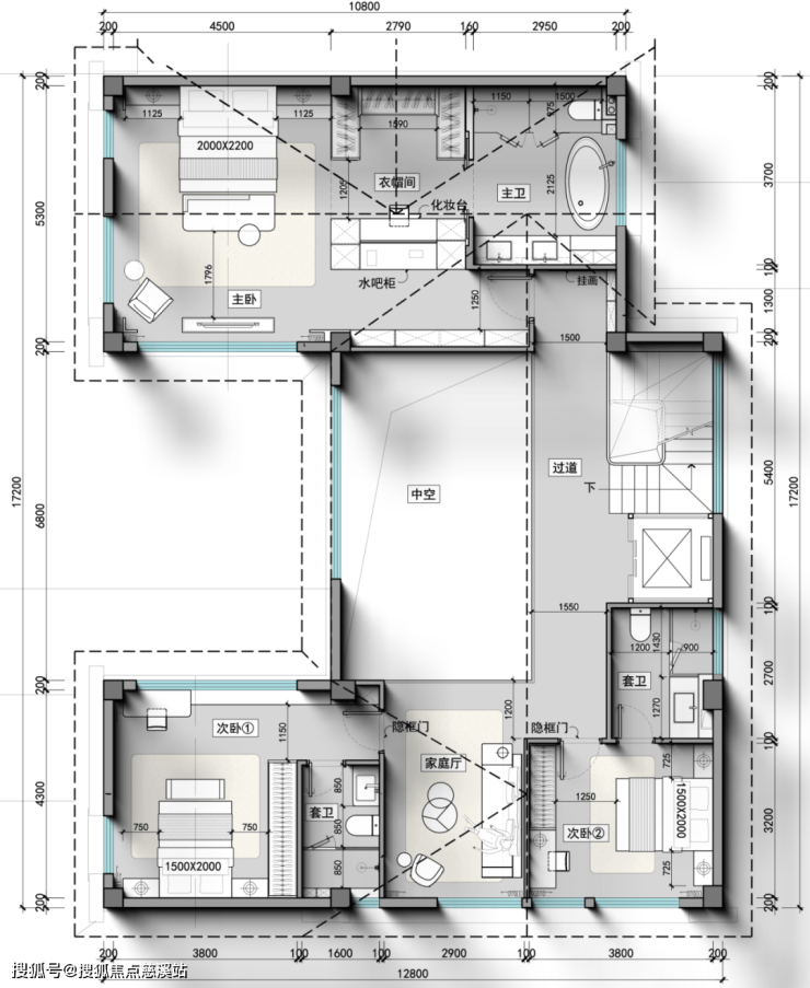
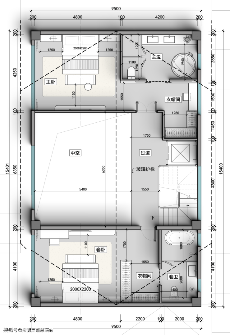
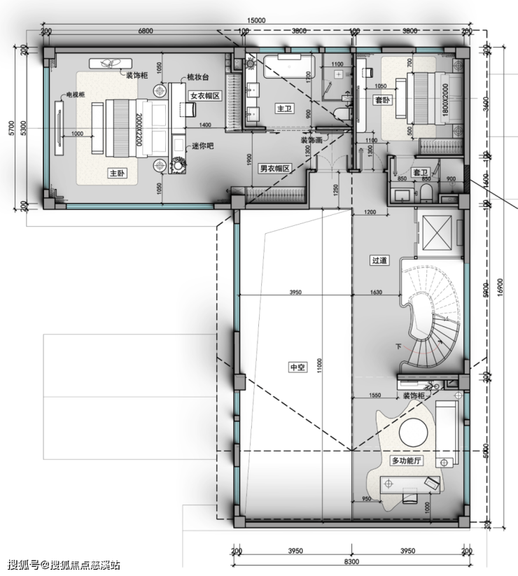
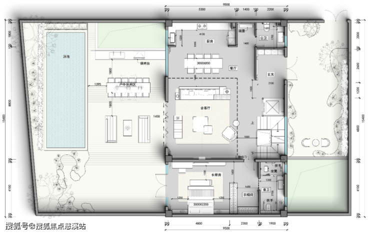
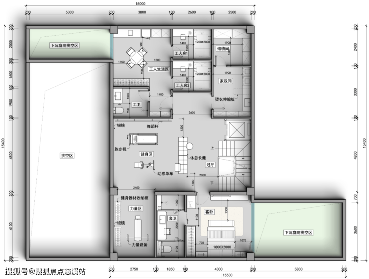
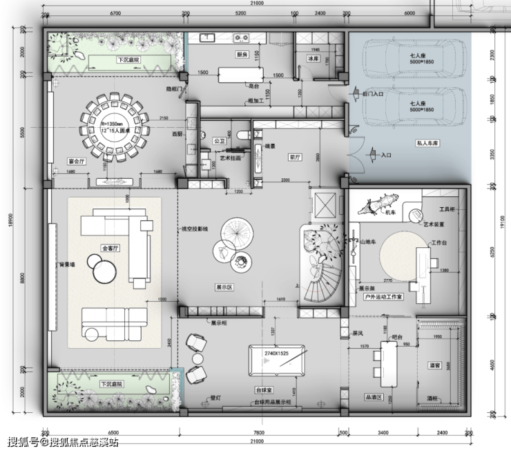
A户型(一字型)

建筑面积:约143㎡,4房4厅6卫+2保姆房+2车位+1庭院泳池,使用面积670m²-980m²

(地上一层)

(地上二层)

(负一层)

(负二层)

B户型(L字型)

建筑面积:约173㎡,5房4厅7卫+2保姆房+2车位+1庭院泳池,使用面积920m²-1410m²

(地上一层)

(地上二层)

(负一层)

(负二层)

C户型(U字型)

建筑面积:约173㎡,5房4厅7卫+2保姆房+2车位+1庭院泳池,使用面积940m²-1280m²

(地上一层)

(地上二层)

(负一层)

保利棠隐——隐于海棠之芯 一半世界一半世外保利棠隐坐拥不可复制的黄金区位,项目位于保利瑰丽酒店正对面,海棠北路与海岸大道的交汇处,在大海与大山之间,在海棠河与红树林之间,隐藏着一个700年的历史文化底蕴的村落——大灶村。大约在明朝中期,大灶村的居民就一直居住、生活、繁衍在此,发展至今已经有接近700年的历史沉淀。

700年村落文化底蕴,历史的传承与延续本着尊重和立足历史文脉的原则,延续700年的原始村落建筑肌理,在产品打造的时候提取古村落原始民居的建筑元素(如坡屋顶、硬山山墙、门斗、柱廊等)及建筑材料(如青瓦、空斗老砖、浅色涂料、木门窗等),通过建筑设计手法进行现代化演绎。

49席国岸商业藏品一席村落式海岸资产,保利棠隐,以不可再生文化资产,谨献49席国岸商业藏品,敬候全球隐士封藏。

三亚 保利棠隐

☑️☑️售楼处电话;400-033-1899转5555【预约热线】

☑️☑️售楼处电话/地址☎:400-033-1899转5555 (开发商热线)

☎️如有问题欢迎来电咨询,专业一对一热情服务,让您用专业眼光去买房。

声明:本文由入驻焦点开放平台的作者撰写,除焦点官方账号外,观点仅代表作者本人,不代表焦点立场。