新豪天地【售楼处】首页网站→新豪天地营销中心→新豪天地欢迎您-楼盘详情-最新价格-户型图-容积率@最新售楼处-户型配套-售楼处电话

搜狐焦点慈溪站 2025-10-06 14:48:45
用手机看
扫描到手机,新闻随时看

扫一扫,用手机看文章
更加方便分享给朋友

🚩三亚 新豪天地 🚩新豪天地售楼处电话:400-033-1899转接3333【营销中心】 🚩新豪天地售中心电话:400-033-1899转接3333【已认证】 🌆 全景户型图鉴 | 🏙️ 城市地标解析 | 🌟 典藏房源速递 🛍️ 繁华配套指南 | 🏛️ 艺术样板间巡礼 |

🚩三亚 新豪天地

🚩新豪天地售楼处电话:400-033-1899转接3333【营销中心】

🚩新豪天地售中心电话:400-033-1899转接3333【已认证】

🌆 全景户型图鉴 | 🏙️ 城市地标解析 | 🌟 典藏房源速递

🛍️ 繁华配套指南 | 🏛️ 艺术样板间巡礼 | 💰 备案价透明公示

三亚市区均价18500元/㎡

70年不动产权,不限购!

施工单位:龙元建设集团股份有限公司;

建设单位:三亚市吉阳区榕根社区居委会;

占地面积:40000㎡;

绿化率:40%;

容积率:2.2;

车位数:地上131个,地下723个;

楼层高:23层;

项目效果图

项目配套

内部配套:商业广场,泳池活动区,迎宾水景特色水景墙,儿童活动广场,休闲广场等;

项目交通:毗邻红沙隧道、亚龙湾隧道与三亚老城区、亚龙湾无缝接轨;环岛高速亚龙湾入口近在咫尺,畅达亚龙湾旅游度假区、国家海岸海棠湾、三亚国际免税城、海棠湾301医院等;

距离亚龙湾高铁站约7公里;

距离三亚高铁站约15公里;

距离三亚凤凰机场约25公里;

周边医疗资源:榆林海军医院、三亚市儿童康复中心;

教育资源:三亚市重点中学鲁迅中学、八一中学;

商业资源:大东海国际购物中心、香港广场、夏日百货广场、鸿港新贸城、奥特莱斯、八爪鱼海鲜广场等;

项目总平图

项目户型图

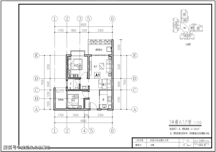
1#号楼A1户型61.86㎡(两房两厅一卫)

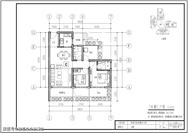
1#号楼C户型86.91㎡(两房两厅两卫)

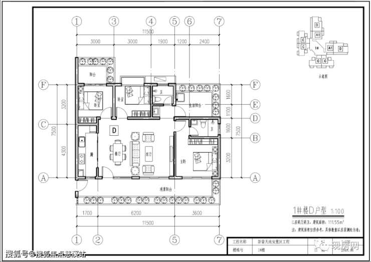
1#号楼D户型111.55㎡(三房两厅两卫)

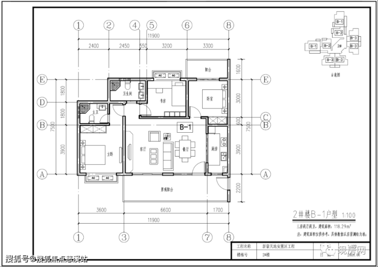
2#号楼B1户型118.29㎡(三房两厅两卫)

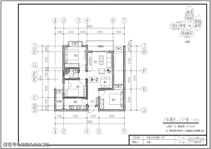
2#号楼B2户型82.60㎡(三房两厅一卫)

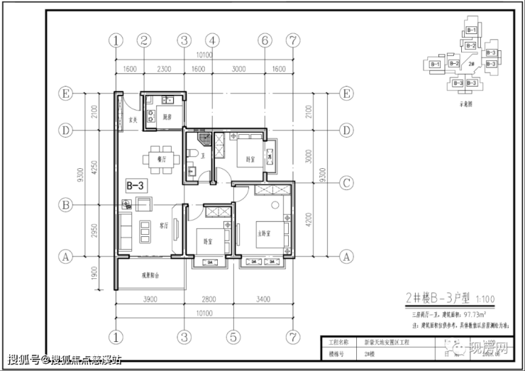
2#号楼B3户型97.93㎡(三房两厅一卫)

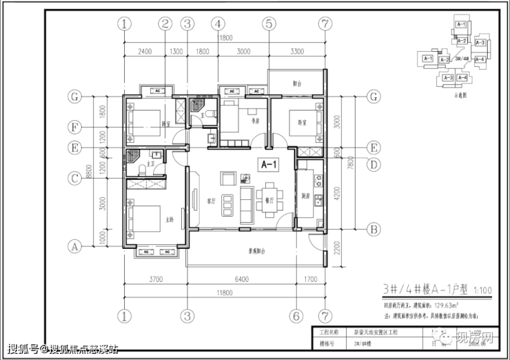
3#、4#号楼A1户型129.63㎡(四房两厅两卫)

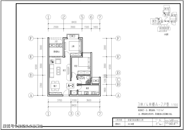
3#、4#号楼A2户型71.57㎡(两房两厅一卫)

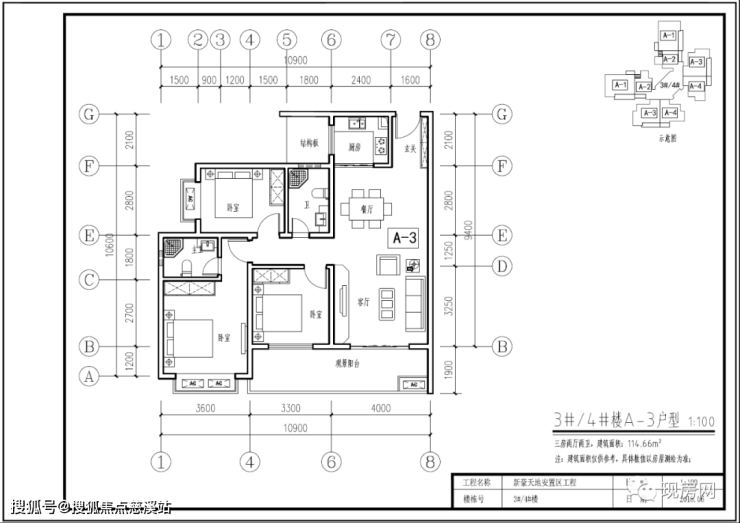
3#、4#号楼A3户型114.66㎡(三房两厅两卫)

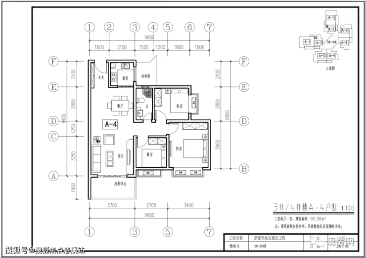
3#、4#号楼A4户型90.38㎡(三房两厅一卫)

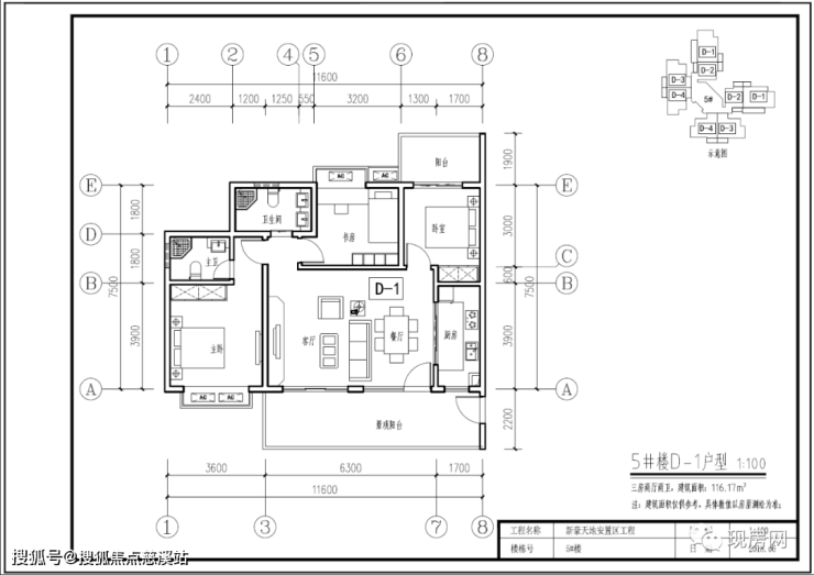
5#号楼D1户型116.17㎡(三房两厅两卫)

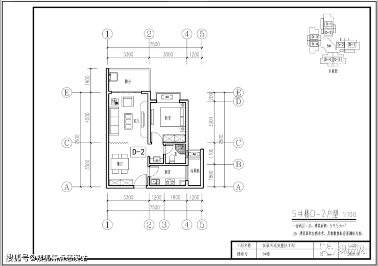
5#号楼D2户型59.53㎡(一房两厅一卫)

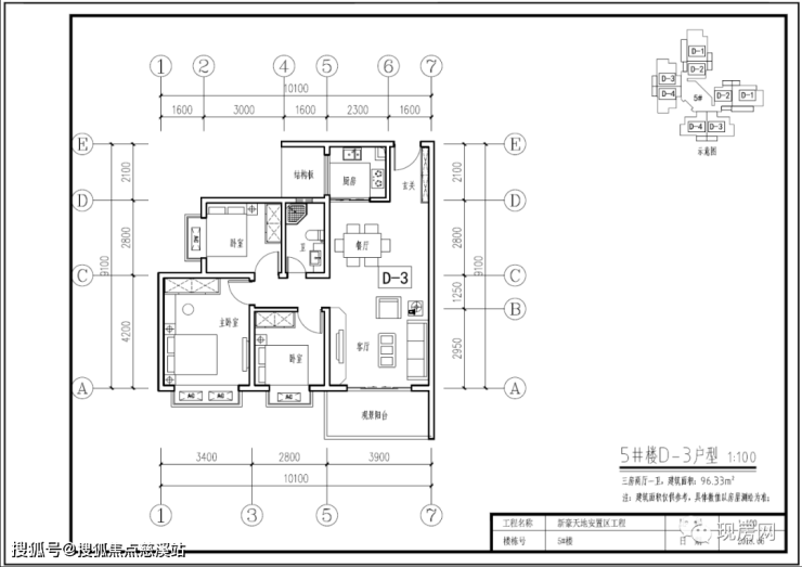
5#号楼D3户型96.33㎡(三房两厅一卫)

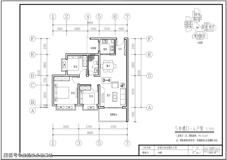
5#号楼D4户型90.04㎡(三房两厅一卫)

🚩三亚 新豪天地

🚩新豪天地售楼处电话:400-033-1899转接3333【营销中心】

🚩新豪天地售中心电话:400-033-1899转接3333【已认证】

🌆 全景户型图鉴 | 🏙️ 城市地标解析 | 🌟 典藏房源速递

🛍️ 繁华配套指南 | 🏛️ 艺术样板间巡礼 | 💰 备案价透明公示

声明:本文由入驻焦点开放平台的作者撰写,除焦点官方账号外,观点仅代表作者本人,不代表焦点立场。