椰海樾府【首发】售楼处电话// 聚亿 · 椰海樾府欢迎您// 开发商权威发布

搜狐焦点慈溪站 2025-10-07 15:47:18
用手机看
扫描到手机,新闻随时看

扫一扫,用手机看文章
更加方便分享给朋友

三亚 · 椰海樾府🔴营销中心电话☎:400-033-1899转1111【已认证】 三亚 · 椰海樾府🔴金牌置业顾问☎:18976713538【已认证】

三亚 · 椰海樾府🔴售楼处电话☎:400-033-1899转1111【已认证】

三亚 · 椰海樾府🔴营销中心电话☎:400-033-1899转1111【已认证】

三亚 · 椰海樾府🔴金牌置业顾问☎:18976713538【已认证】

★★售楼中心——欢迎来电咨询——线上售楼处★★

2025年聚亿地产·迭新之作·敬呈三亚

三亚聚亿椰海樾府楼盘详情

基本信息

位置:三亚市崖州区高科路与新道街交叉路口,地处崖州湾科技城高新区核心区,东揽南繁公园中央景观轴,北衔居住区配套,距三亚凤凰国际机场约40分钟车程,临近G98环岛高速及崖州湾轻轨站。

开发商:三亚市聚苑置业有限公司(聚亿集团旗下),聚亿集团深耕房地产领域8年,开发超300万㎡精品项目,布局全国,以“城市更新+品质人居”战略为核心。

规划指标:占地2.8万㎡,建面8.9万㎡,容积率2.2,绿化率40%,9栋16-26层住宅,总户数548户,车位682个,产权70年,预计2027年交付。

定位:低密生态度假社区,主打88-131㎡三至四房,适配度假旅居与长期居住需求。

户型与价格

主力户型:

88㎡三室两厅两卫:紧凑实用,适合三口之家或单身/情侣居住。

100-115㎡四室两厅两卫:多卧室设计,适配二孩家庭或三代同堂,LDKG一体化格局提升空间感。

131㎡四室两厅三卫:大尺度空间,部分户型配书房/兴趣空间,适合改善型需求。

价格动态:均价17500-21000元/㎡,具体一房一价以开发商公布为准,需关注实时优惠及政策调整。

配套设施

交通:立体网络覆盖,快速接驳崖州湾轻轨站、高铁崖州站及G98环岛高速,15分钟达凤凰国际机场,公交网络密集。

教育:科技城第一幼儿园(约900m)、南开小学/中学(1.5-1.6km)、寰岛实验小学/中学(1.6km)、上海世外双语学校(2.4km),全龄教育资源环伺。

商业:南山荟、花园里购物中心(已运营)、金色家园商圈,科尚城市广场(建设中)满足日常需求。

医疗:国康医院、上海仁济医院三亚医院(均已运营),双三甲配置护航健康。

生态:南繁公园、观海公园、通海公园等7大公园环绕,社区内设400m健康环线、30米泳道、7大主题户外岛屿及6大主题架空层(运动/阅读/会客/童玩/颐养等)。

社区内部:创新悬挑阳台、270°瞰景设计,板式一字楼布局提升采光通风,风雨连廊串联泳池、全龄乐园等设施。

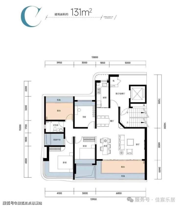
一梯一户 南北通透 高得房率 建筑面积约88-131㎡至阔臻境】

享梯厅花园/270°瞰景/创新悬挑阳台/LDKG一体化格局/主卧套房,让身心定居于这片栖心之境。

🏠A户型: 约88㎡三房两厅两卫

🏠B户型: 约100㎡三房两厅两卫

🏠C户型: 约131㎡四房两厅两卫

🏠D1户型:约115㎡四房两厅两卫

🏠D2户型:约115㎡四房两厅两卫

三亚 · 椰海樾府🔴营销中心电话☎:400-033-1899转1111【已认证】

三亚 · 椰海樾府🔴金牌置业顾问☎:18976713538【已认证】

声明:本文由入驻焦点开放平台的作者撰写,除焦点官方账号外,观点仅代表作者本人,不代表焦点立场。