【营销中心】三亚 华庭壹号捌号售楼处电话丨2025 预约电话/项目地址/项目户型

搜狐焦点慈溪站 2025-09-07 16:47:41
用手机看
扫描到手机,新闻随时看

扫一扫,用手机看文章
更加方便分享给朋友

三亚 华庭壹号捌号 🔱 售楼处电话【已认证】✔:400-033-1899 转接8888✅ 🔱 营销中心电话【已认证】✔:400-033-1899 转接8888✅ 💌温馨提示:本项目采用预约制,前来营销中心请提前拨打400热线电话预约,感谢您的配合!

三亚 华庭壹号捌号

🔱 售楼处电话【已认证】✔:400-033-1899 转接8888✅

🔱 营销中心电话【已认证】✔:400-033-1899 转接8888✅

💌温馨提示:本项目采用预约制,前来营销中心请提前拨打400热线电话预约,感谢您的配合!

华庭壹号

华庭壹号位于三亚市解放路 277 号,城市中轴线,财富新坐标!把握潮流脉搏,书写商业传奇!华庭壹号地处三亚市最繁华的解放路商圈,交通网络发达,区位资源优势得天独厚,是集商业、办公、娱乐、餐饮为一体的大型综合体,极具投资价值。

华庭八号

华庭八号位于三亚市解放路331号,项目重新定义商业消费模式,整合多种资源,合理的多元化业态规划,开放便利的交通格局,外部空间与城市交通相连,内部有可共享的完善配套和海景商务,营造具有归宿感的商业办公氛围。吸引SPA、健身、会所、珠宝、服饰、高端购物、企业办公等单位进驻,是提升企业形象和投资的绝佳选择!

中央商务区——三亚主城商圈新地标

项目位于三亚市天涯区解放路。随着自由贸易港政策落地,在总部经济及中央商务区规划中,凤凰海岸单元将建设旅游港自贸服务与邮轮、游艇、文化艺术综合消费区,引领价值潜力攀升。

海景资源——海景商业“双子星”

项目距三亚湾直线距离450M,瞰海观城。独版海景商业,180 度无遮挡宽海景,六层以上即可尽揽美景。三亚地标建筑凤凰岛就矗立在这片大海中。极目远眺,甚至能直接看到远处的南山寺 108 米观音大佛,护佑这一方水土。项目不仅拥有全三亚最美的海景,同时也是一个在佛祖庇佑下的风水宝地。

户户生财——最具消费能力的财富商圈

项目位于三亚市商业中心,属于解放路核心消费圈,辐射迎宾路商圈以及大东海商圈,影响并吸引周边消费区域的人群。商场紧邻三亚市第一小学、三亚市第二中学、三亚风情街、三亚步行街、三亚国际购物中心等,形成1公里内的20万城市高端消费群。

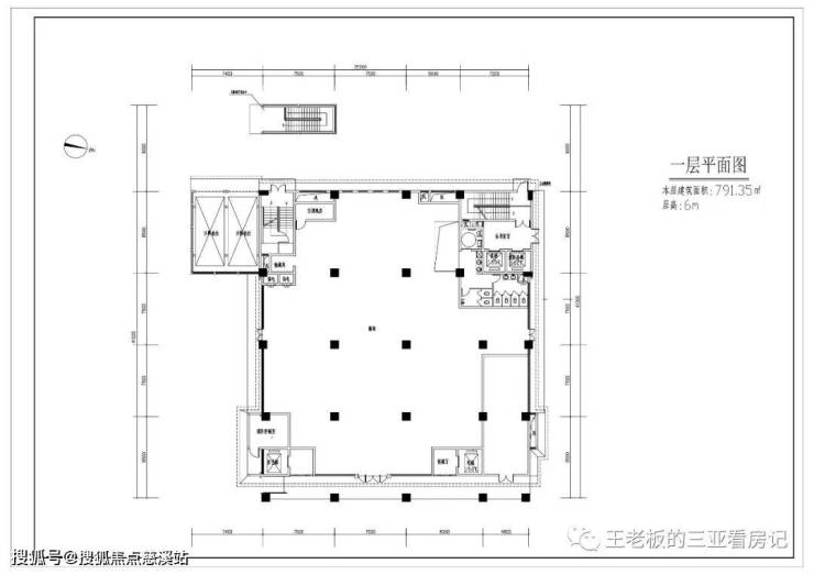
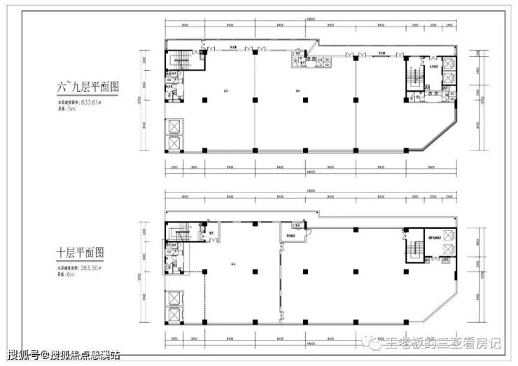
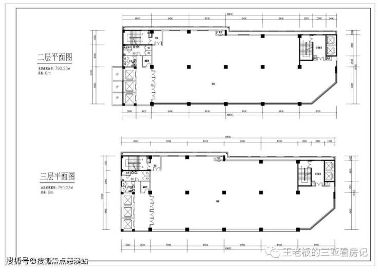
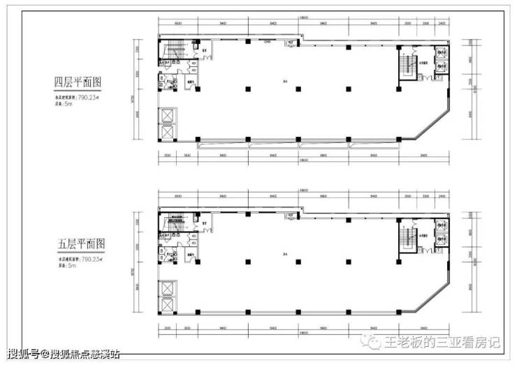
华庭壹号项目信息:

建筑面积:8863.45

总层数:10层 建筑高度53.49米

1-3层层高6米

5-9层层高5米

10层层高6米

电梯配置:五部电梯,其中三部电梯直接入户

交付标准:毛坯

车位:共有67个

物业:海南三亚华庭物业管理有限公司

物业费:6.5元/㎡/月

产品面积:约252-937㎡

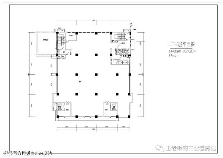
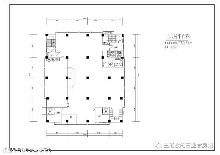
各楼层平面图

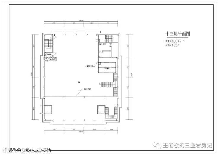
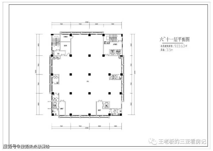
华庭八号项目信息:

建筑面积:11139.67㎡

总层数:12层

1-5层层高6米

6-11层层高3.5米

12层层高4.9米

电梯配置:四部电梯

交付标准:毛坯

车位:共有98个

物业:海南三亚华庭物业管理有限公司

物业费:6.5元/㎡/月

产品面积:约420-960㎡

各楼层平面图

三亚 华庭壹号捌号

🔱 售楼处电话【已认证】✔:400-033-1899 转接8888✅

🔱 营销中心电话【已认证】✔:400-033-1899 转接8888✅

💌温馨提示:本项目采用预约制,前来营销中心请提前拨打400热线电话预约,感谢您的配合!

声明:本文由入驻焦点开放平台的作者撰写,除焦点官方账号外,观点仅代表作者本人,不代表焦点立场。