天津格调瑰丽花园售楼处电话|格调瑰丽花园房价|户型解析|售楼处地址|楼盘详情|优惠活动|

搜狐焦点慈溪站 2025-09-19 13:22:25
用手机看
扫描到手机,新闻随时看

扫一扫,用手机看文章
更加方便分享给朋友

天津格调瑰丽花园 售楼处电话:400-100-1299转5999 网上售楼中心〢欢迎来电咨询〢1v1销售专业讲解

天津格调瑰丽花园

售楼处电话:400-100-1299转5999

网上售楼中心〢欢迎来电咨询〢1v1销售专业讲解

三、滨海核心区位

从区位图中可以发现,格调▪瑰丽花园所处的位置号称滨海新区最贵一平方公里的东部,这片地原先的规划也是写字楼,后面更改了土地性质,才诞生了这个项目!

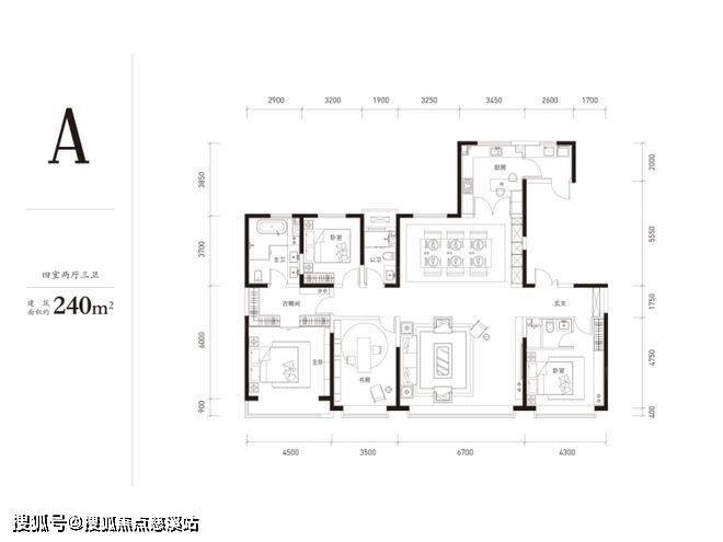
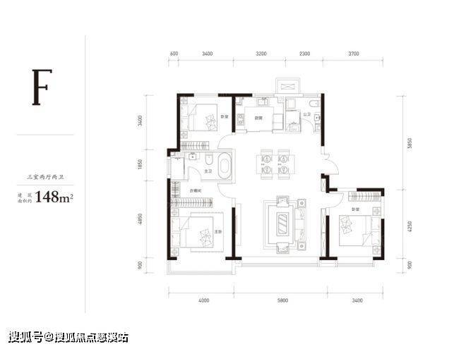
四、户型分部

主力户型为148㎡-240㎡3居-4居,两梯两户的结构,均是大开间短进深的设计,在居住的舒适度上做的很好。

现场销售在讲解楼盘时特别细心的在ipad中放置了一张下午15点左右一楼的采光实拍照片,以148㎡举例,下午的阳光可以直接照到厨房,这一处非常打动人的细心举动,也体现了格调对细节的强调。

其实论创新性,瑰丽花园的户型设计都是比较受欢迎的热门户型,之前这种户型分布大多用在洋房上,而这次则是参考南方的大平层概念,打造了小高层社区。

项目的物业费:3.91元/㎡/月,为格调的自持物业,在后期的居住和房屋维护上可以非常放心。

精装车库大堂也成为了目前的项目标配,这次瑰丽花园配置了地下两层的地下车库,车位可以说相当富裕。

每一层的楼道都做了软包,而且还不仅仅是首层,对比最近交房的几个项目,确实很良心。

指纹密码锁也选择了三星的高端密码锁,这些地方透露出了高端社区的品质。

项目的外立面也采用了全包玻璃的效果,主卧还配置了270观景的落地窗。

样板间的欧式装修,呼应了这次的法式度假酒店社区的豪华感,这很显然不是给年轻人准备的。

天津格调瑰丽花园售楼处电话:400-100-1299转5999网上售楼中心〢欢迎来电咨询〢1v1销售专业讲解

声明:本文由入驻焦点开放平台的作者撰写,除焦点官方账号外,观点仅代表作者本人,不代表焦点立场。