#2025权威出品#长沙中交瑞启芙蓉售楼处发布@中交瑞启芙蓉售楼处热线

搜狐焦点慈溪站 2025-09-07 09:46:57
用手机看
扫描到手机,新闻随时看

扫一扫,用手机看文章
更加方便分享给朋友

长沙中交瑞启芙蓉 售楼处电话:400-100-1299转5888 网上售楼中心〢欢迎来电咨询〢1v1销售专业讲解

长沙中交瑞启芙蓉

售楼处电话:400-100-1299转5888

网上售楼中心〢欢迎来电咨询〢1v1销售专业讲解

中交瑞启芙蓉区位图

区位及配套

教育:据说为市一中系或同等档次初中配套入读,后期教育消息等开发商的进一步披露。

地铁:步行 13 分钟1000m左右到地铁 6 号线隆平水稻博物馆站。

商业:最近的商业购物广场为龙湖天街,开车约4公里13分钟左右。

公园:周边休闲去处步行约850m左右到浏阳河风光带、步行900m左右到东驿体育公园。

公共设施:隆平水稻博物馆(隆平水稻文化园)、医院湘雅二医院东院区(规划)。

地块本身

据航拍,地块实际由市政道路隔开的三块地组成(据图例分为A、B、C地块),综合来说,地块周边为建材市场、安置区、东屯小学,考虑货车装卸,市场往来人流嘈杂,整体城市界面较为一般。地块楼面价约5002元/㎡,相较于周边顶级教育配套湘郡培粹东校区的竞品中建九章赋5498元/㎡来说并不便宜,这也就意味着对中交产品力及价格有很大的挑战,才能抵消掉中建教育的优势。

2

总图规划

项目整体总图

(亩)

A

3.1

30.4

8栋

143㎡,254户

149㎡,95户

188㎡,60户

409

371

B

3.1

21.7

5栋

335

281

C

1.6

5.95

2栋

60

43

其中A地块做为首开地块,并且主力户型143已公布,B/C地块暂未披露更多信息,我们先就A地块进行重点测评。

总公示总图可以看出:

1、户型都为143㎡以上面积段,从而客户圈层也较为纯粹,定位偏改善;

2、A地块地下车位户车比是1∶0.90,车位比较紧张;

3、物业用房集中设置在A地块,社区用房设置在A、B地块,垃圾站设置在B地块。后期B、C地块业主需要去A地块办理物业相关事项,不是特别方便;

4、整体没有做下沉式庭院会所,但是A地块设置有约1000㎡主题架空层,分别在1#、3#、5#、7#、9#号楼,包括1#书吧影音、5#四点半学堂、3#栋会客+儿童娱乐、7#栋健身、9#栋老年活动等功能。

A地块总图

A地块总图重点提示:

1、从其总图得知143㎡、149㎡、188㎡户型面宽都在19m左右,在竞品同面积段产品中,其面宽是最宽的;

2、由于户型的大面宽+楼间距较小(33m~39m)这两者的影响,楼栋之间的视线会有干扰;

3、从总图填满密密麻麻的消防扑救面、活动场地可知,留给业主的绿化空间可能有限。主要原因是场地实在太小,又设置了16层的二类高层,增加了楼栋数量;

美的云璟

中交瑞启芙蓉

用B地块南侧的美的云璟做为类比,云璟用地约44.5亩(476户),是A地块30.4亩(409户)的1.5倍,其布置楼栋数量为9栋,A地块8栋,在楼栋数量差不多的情况下,其整体用地比A地块多了将近14亩,供景观打造空间自然就多很多。

中性点:

整个项目都没有设置幼儿园,好的地方是腾挪出了地方给了住宅空间,不好的地方是业主自己的孩子需考虑项目外幼儿园进行入学;

3

户型产品

说了这么多,户型总算是来了,我们先看看硬实力,用面宽、得房率等关键指标对比一下市面上同面积段竞品,究竟处于市场一个什么样的水准,上干货。

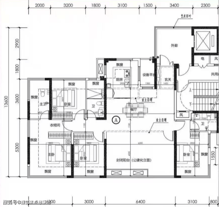
中交瑞启芙蓉143㎡

绿城锦海棠138㎡

招商序139㎡

长沙中交瑞启芙蓉

售楼处电话:400-100-1299转5888

网上售楼中心〢欢迎来电咨询〢1v1销售专业讲解

声明:本文由入驻焦点开放平台的作者撰写,除焦点官方账号外,观点仅代表作者本人,不代表焦点立场。