济南【热搜楼盘】中海时光之境售楼处首页【中海时光之境】房价_电话_户型_楼盘详情-容积率@售楼处

搜狐焦点慈溪站 2025-09-16 15:23:27
用手机看
扫描到手机,新闻随时看

扫一扫,用手机看文章
更加方便分享给朋友

🏡✅济南 中海时光之境 🏡☎️中海时光之境售楼处电话:400-033-1899转接2222【营销中心】 🏡☎️中海时光之境售楼中心电话:400-033-1899转接2222【已认证】 🏡✅户型图丨项目介绍丨最新房源丨周边配套丨售楼处地址丨样板间丨备案价

🏡✅济南 中海时光之境

🏡☎️中海时光之境售楼处电话:400-033-1899转接2222【营销中心】

🏡☎️中海时光之境售楼中心电话:400-033-1899转接2222【已认证】

🏡✅户型图丨项目介绍丨最新房源丨周边配套丨售楼处地址丨样板间丨备案价

四代住宅+145-179㎡花园平墅+210-252㎡环岛墅邸+超大花园+270°环幕+6.2米挑空+一梯一户+全明私享电梯厅+得房率123%-134%

项目基础信息

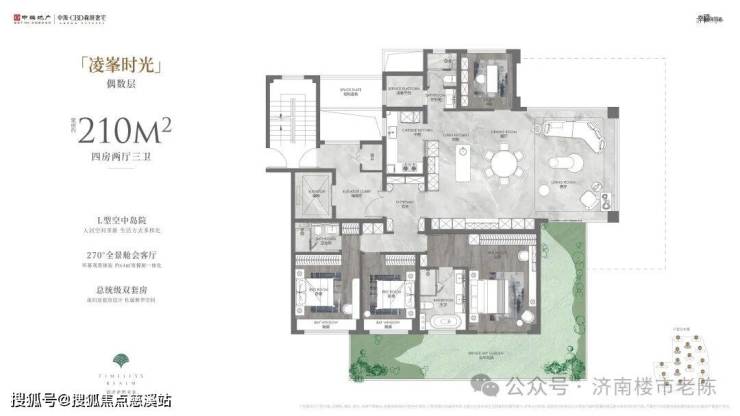
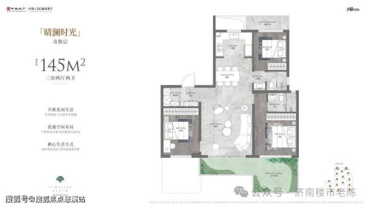
【面积】高层:145m²、179m²

小高层:152m²、155m²、210m²、252m²

【首开】:

面积有145/152/155/179/210/252平

1#楼,24F高层,145㎡

10#楼,17F小高层,252㎡

11#楼,25F高层,179㎡

12#楼,17F小高层,152㎡/155㎡

13#楼,17F小高层,210㎡

【项目面积】:占地面积约6.1万㎡,地上建面约16.5万㎡

【容积率】:约2.5

【总户数】:959户

【楼座分布】:共16栋

【装修标准】:精装

【层高】:约3.1米

【物业】:中海物业 港府御用管家

【物业费】:2.96

【绿化率】:35%

【车位配比】:1:1.5

【会所】:CCD香港郑中执笔,海派繁花高定,8大隐奢空间(2000平)

健身房、瑜伽室、茶室、私宴厅、棋牌室、VIP沙龙、艺术长廊、会客厅等8大功能区域,每个功能区都能透过通顶落地窗享受下沉庭院的景观视野

【楼间距】:38-58米

【梯户】:高层:2T2户 ,小高层152/155:1T2户,小高层210:2T2户 , 小高层252:1T1户

【交房时间】:

一批次(二期)2027年10月

二批次(三期)2027年12月

计赠送后得房率:

【得房率】:高层145:约82% 高层179:约87%-97%

小高层152/155:约94%-99%

小高210:约109%-112% 小高252:约123%-134%

社区大门横向跨度约92米,高度约11米,尺度。木纹石+安哥拉黑+孔雀蓝奢石,用摩登海派美学讲述齐鲁大地的人文故事

户型鉴赏

🏡✅济南 中海时光之境

🏡☎️中海时光之境售楼处电话:400-033-1899转接2222【营销中心】

🏡☎️中海时光之境售楼中心电话:400-033-1899转接2222【已认证】

🏡✅户型图丨项目介绍丨最新房源丨周边配套丨售楼处地址丨样板间丨备案价

声明:本文由入驻焦点开放平台的作者撰写,除焦点官方账号外,观点仅代表作者本人,不代表焦点立场。