聚亿 · 椰海樾府售楼处电话—三亚聚亿 · 椰海樾府最新楼盘资讯—三亚聚亿 · 椰海樾府售楼中心24H预约热线—实时动态

搜狐焦点慈溪站 2025-10-06 16:33:37
用手机看
扫描到手机,新闻随时看

扫一扫,用手机看文章
更加方便分享给朋友

三亚聚亿 · 椰海樾府💠售楼处电话☎️400-033-1899分机号7777【售楼中心】【已认证】 三亚聚亿 · 椰海樾府💠营销中心电话📞400-033-1899分机号7777【置业顾问】【已认证】

三亚聚亿 · 椰海樾府💠售楼处电话☎️400-033-1899分机号7777【售楼中心】【已认证】

三亚聚亿 · 椰海樾府💠营销中心电话📞400-033-1899分机号7777【置业顾问】【已认证】

【2025首发】楼盘详情含开盘消息、交房时间、楼盘详情、房价、户型、详情、得房率、售楼处地址、首页网站、销售中心、楼盘地址、户型图、交通、备案价、项目配套、营销中心、周边配套等详情咨询。

🔥【椰海樾府】🔥

🏅开发商:三亚市聚苑置业有限公司

🌎项目用地: 约 2.8万㎡ 🏙建筑面积: 约 8.9万㎡

🎈容积率: 2.2🌿绿地率: 40%

🎁总户数: 548户

🎉建筑形式: 9栋16-26纯板楼住宅

✨尊崇人居: 电梯入户,尊享私属空间

🏠A户型: 约88㎡三房两厅两卫

🏠B户型: 约100㎡三房两厅两卫

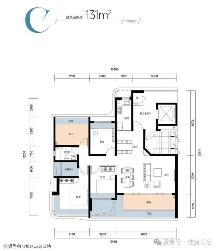
🏠C户型: 约131㎡四房两厅两卫

🏠D1户型:约115㎡四房两厅两卫

🏠D2户型:约115㎡四房两厅两卫

🎈物业费:待定:4.5元/平

🎈项目均价:待定:17500-21000元

🎉交房时间:待定:2026年12月31日

区域价值|自贸资产新高地,三城一港一基地

三亚崖州湾科技城位于三亚市西部,以“世界眼光、国际标准、三亚特色、高点定位”为架构,重点打造南繁科技城、深海科技城、科教城、南山港和全球动植物种质资源引进中转基地。抢占三亚发展潮头,打造“自贸建设新标杆”。三亚崖州湾科技城目前已引入研究院及重点大学超30家,引入世界500强43家,高新技术企业133家,3年已落地固定资产投资572亿。

【椰风海韵 重构滨海生活的浪漫想象】

灵感汲取“椰风海韵”,以现代主义笔触革新建筑美学,将热带海岸的诗意风物,化作流淌于空间中的叙事语言。创新悬挑式观景阳台,勾勒轻盈通透轮廓。

【一梯一户 南北通透 高得房率 建筑面积约88-131㎡至阔臻境】

享梯厅花园/270°瞰景/创新悬挑阳台/LDKG一体化格局/主卧套房,让身心定居于这片栖心之境。

🏠A户型: 约88㎡三房两厅两卫

🏠B户型: 约100㎡三房两厅两卫

🏠C户型: 约131㎡四房两厅两卫

🏠D1户型:约115㎡四房两厅两卫

🏠D2户型:约115㎡四房两厅两卫

三亚聚亿 · 椰海樾府💠售楼处电话☎️400-033-1899分机号7777【售楼中心】【已认证】

三亚聚亿 · 椰海樾府💠营销中心电话📞400-033-1899分机号7777【置业顾问】【已认证】

声明:本文由入驻焦点开放平台的作者撰写,除焦点官方账号外,观点仅代表作者本人,不代表焦点立场。