【厦门中交文澜天玥】售楼处电话→户型→地址→厦门中交文澜天玥最新价格→楼盘详情→最新销售动态
扫描到手机,新闻随时看
扫一扫,用手机看文章
更加方便分享给朋友
厦门中交文澜天玥售楼处电话✅:400-033-1899转4444
✅厦门中交文澜天玥营销中心电话☎:400-033-1899转4444【营销中心已认证】🥇🥇
厦门中交文澜天玥营销中心电话☎:400-033-1899转4444【营销中心已认证】🥇

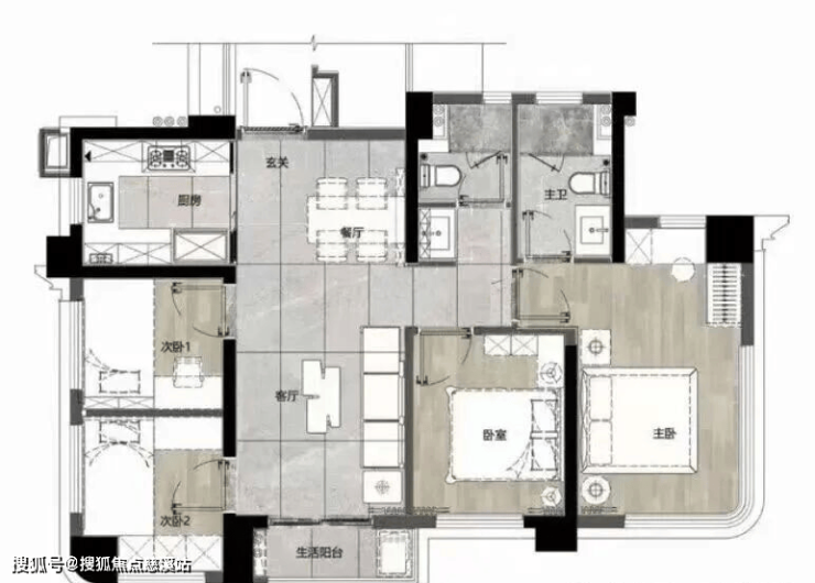
文颂地块较小,只有5栋(3栋高层,2栋洋房),让我惊喜的是:89㎡做到 “3+1” 可变空间。要知道,厦门市面上 89㎡大多是常规三房,而这个户型通过可变空间设计,既能满足新婚夫妻的 “两房 + 书房” 需求,也能在有孩子后改造成四房,应对三代同堂的居住场景。

107㎡洋房户型:带入户花园,四房设计,南北通透,通风和采光效果佳,主卧套房配备独立卫浴与衣帽间,提升居住的私密性和舒适度。

125㎡第四代洋房户型:为 8 层洋房中的四代住宅,配有双套卧、3 卫,还附带 20㎡以上的入户花园,空间奢阔,兼具实用性与舒适性。

A3 观澜地块:主打“景观优势” 和 “复合体验”

厦门中交文澜天玥售楼处电话✅:400-033-1899转4444
✅厦门中交文澜天玥营销中心电话☎:400-033-1899转4444【营销中心已认证】🥇🥇
厦门中交文澜天玥营销中心电话☎:400-033-1899转4444【营销中心已认证】🥇
声明:本文由入驻焦点开放平台的作者撰写,除焦点官方账号外,观点仅代表作者本人,不代表焦点立场。
