半山首府【售楼处】首页网站→半山首府营销中心→半山首府欢迎您-楼盘详情-最新价格-户型图-容积率@最新售楼处-户型配套-售楼处电话

搜狐焦点慈溪站 2025-10-06 16:31:27
用手机看
扫描到手机,新闻随时看

扫一扫,用手机看文章
更加方便分享给朋友

🚩三亚 半山首府 🚩半山首府售楼处电话:400-033-1899转接3333【营销中心】 🚩半山首府售中心电话:400-033-1899转接3333【已认证】 🌆 全景户型图鉴 | 🏙️ 城市地标解析 | 🌟 典藏房源速递 🛍️ 繁华配套指南 | 🏛️ 艺术样板间巡礼 |

🚩三亚 半山首府

🚩半山首府售楼处电话:400-033-1899转接3333【营销中心】

🚩半山首府售中心电话:400-033-1899转接3333【已认证】

🌆 全景户型图鉴 | 🏙️ 城市地标解析 | 🌟 典藏房源速递

🛍️ 繁华配套指南 | 🏛️ 艺术样板间巡礼 | 💰 备案价透明公示

项目总用地面积:19107㎡

总建筑面积:34890㎡

容积率:1.35

绿化率:41%

总户数:223户

产权年限:70年大产权

交付标准:精装8000元/㎡

装修风格:港式轻奢

交房时间:现房发售

梯户比:1#楼2梯5户,2#-3#楼2梯4户

总层高:19层

物业费:5.3元/平米(金的物业)

车位:1:1,地上34个,地下189个

位置:择址大东海榆亚路中段,地处三亚城芯,静享榆林湾内海、600亩红树林湿地公园,畅达三亚湾、大东海、亚龙湾、海棠湾等四大湾区,拥半山而立,坐享世界级湾区。

交通:毗邻红沙隧道,距高铁三亚站、亚龙湾站约8公里,距环岛高速约10公里、距凤凰机场约20公里,30分钟通达全城,立体化交通保障全岛便捷出行。

生活:紧邻大东海商圈核心,坐享夏日百货、1号港湾城、鸿港新城等缤纷商业,5分钟生活圈,轻松享有。距离旺豪超市(红沙店)1.3公里;红沙农贸市场1.7公里;新鸿港批发市场2.9公里。

医院:三亚精康医院1.7公里。

学校:吉阳区红沙小学1.6公里;红沙中学1.5公里;鲁迅中学2.3公里;幼儿园十余所(2公里内左右)。

A户型133㎡三房两厅两卫

全明户型通透格局,尊崇居家彰显非凡。

悦享20㎡观景阳台,户户南向180°观景面。

舒雅南向套房主卧,独立衣帽间、双手盆设计、干湿分离。

独立入户花园,让全家人的出入都尊享从容。

低密纯板揽山瞰海

B户型103㎡两房两厅两卫

南北通透、空间方正,惬意享受阳光海风的馈赠。

悦享20㎡观景阳台,户户南向180°观景面,闲情雅趣,诗意生活。

餐客厅双厅设计、厨房方正、宜中宜西,上演美食盛宴,尽显居家仪式感。

主次卧独立卫生间、生活起居互不干扰,从容切换。

低密纯板揽山瞰海

C户型134㎡三房两厅两卫

通透格局,空间动静合理。

悦享20㎡观景阳台,户户南向180°观景面

奢阔南向主卧,独立衣帽间、双手盆设计,干湿分离,自在从容。

L型厨房,开放式中西厨兼具,肆意挥洒私房厨艺。

【豪奢户型】

低密纯板揽山瞰海

A+B户型:236㎡5房4厅4卫

【豪奢户型】

低密纯板揽山瞰海

B+C户型:237㎡5房4厅4卫

1#楼标准层平面图

2#楼标准层平面图

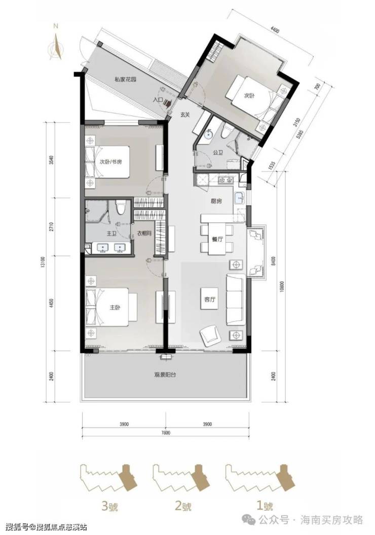
3#楼标准层平面图

🚩三亚 半山首府

🚩半山首府售楼处电话:400-033-1899转接3333【营销中心】

🚩半山首府售中心电话:400-033-1899转接3333【已认证】

🌆 全景户型图鉴 | 🏙️ 城市地标解析 | 🌟 典藏房源速递

🛍️ 繁华配套指南 | 🏛️ 艺术样板间巡礼 | 💰 备案价透明公示

声明:本文由入驻焦点开放平台的作者撰写,除焦点官方账号外,观点仅代表作者本人,不代表焦点立场。