天津格调隐翠轩售楼处电话→天津格调隐翠轩售楼中心首页网站→格调隐翠轩楼盘百科详情→24小时电话

搜狐焦点慈溪站 2025-09-21 12:07:18
用手机看
扫描到手机,新闻随时看

扫一扫,用手机看文章
更加方便分享给朋友

天津格调隐翠轩 售楼处电话:400-100-1299转5999 网上售楼中心〢欢迎来电咨询〢1v1销售专业讲解

天津格调隐翠轩

售楼处电话:400-100-1299转5999

网上售楼中心〢欢迎来电咨询〢1v1销售专业讲解

▲项目鸟瞰效果图

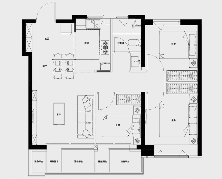
3月16日,格调隐翠轩正式对外发布了户型图。

整盘总共有8款户型,首开时将会推出5款,全部精装修交付

大高层3款:建筑面积约94㎡、117㎡、128㎡三室

小高层1款:建筑面积约143㎡三室

洋房1款:建筑面积约143㎡三室

◀左右滑动查看更多户型▶

纵观格调隐翠轩这几款户型,再对比格调之前项目,你能发现很多变化。

首先,新款户型非常重视餐厨功能,北向开间预留得非常充分。

其次,承重墙设计更加科学,尽量增加可拆改墙体数量,为业主日后自我改造预留空间。

第三,尽力减少无谓的走道,避免面积浪费

第四,全体户型均配置了开敞式阳台,提供全新的生活体验。

先看格调隐翠轩的大高层边户,采取了近来流行的“十”字厅布局

建筑面积约128㎡三室为例,南北贯通的客、餐、厨,从户型侧面转移到中轴线上,两间南向卧室置于中轴两侧。

如此便一石二鸟:里侧走廊被挪到入户门旁,使之变成了一个独立玄关

▲大高建筑面积约128㎡三室示意

说起这个玄关,简直太实用了。

位置正好在户型角落里,除了进出门和收发快递,你基本不会再进入这个空间。

和其他房间没有交叉动线,进门换鞋带进的泥土,不会被踩到拖鞋底带去其他区域。

位置隐蔽,空间独立,地面哪怕堆满鞋和快递,坐在客厅沙发也完全看不到。

进门迎面整墙可做2米多长玄关柜,加上旁边的可拓展空间,收纳力爆棚。

▲大高建筑面积约128㎡三室示意

客餐同宽,约4米轴线开间,门朝中间开,交通走道和功能区合二为一,避免面积浪费。

中央甚至能摆下1.3米直径的8人圆桌,两侧还能各留下约1.2米通道,形成洄游动线

餐厅侧面还预留了凹槽,可以内嵌餐边柜,用作烧水、沏茶、冲咖啡,更加实用。

▲大高建筑面积约128㎡三室示意

“一”字贯通式的餐厨设计,也增加了厨房的操作空间。

开间能达到约3.85米,“U”型橱柜长度能超过5米,更顺畅的洗、切、炒动线,更大的收纳空间。

▲大高建筑面积约128㎡三室示意

两间南卧室被客厅分隔,更有助于家庭成员各自的生活习惯不受干扰。

客卫靠近南次卧,却也实现实际意义上的一间套房,无论是对老人还是青少年子女,都十分方便。

▲大高建筑面积约128㎡三室示意

再看他们的大高层中户,建筑面积约94㎡三室,三开间朝南。

室内除两道承重墙外,其余墙体均可拆改,空间能打通,为客户日后自己改造提供了更多可能性。

▲大高建筑面积约94㎡三室示意

按《小家大变局》作者逯薇的理论,在一个相对封闭的室内,空间尺度感与人的最大视觉距离成正比

这款户型打掉客厅与南次卧间墙体后,便可收获一个约6.2米宽的大客厅

客、餐、厨融合,变身为一个面积约35㎡的LDK一体空间

南向两扇落地窗也能合体,与外侧开敞阳台连通,收获更好的视线与采光。

这种尺度感,已经达到120㎡户型给人的体验,“大宅错觉”也由此诞生。

▲大高建筑面积约94㎡三室示意

中户和边户之间的分户隔墙,设计成了“S”型,这样在中户入户门旁就形成一个天然凹墙。

这是专门预留的玄关柜空间,很好地解决了小户型门口收纳的难题。

▲大高建筑面积约94㎡三室示意

冰箱从厨房挪到门口,借吊轨玻璃移门把厨房改成可分可合的开敞式

橱柜做成“U”字型,朝客厅一侧可以做个中岛台,并和餐桌相连。

这样,冰箱→水槽→灶台→中岛→餐桌,取、备、洗、切、炒、端动线非常顺畅。

餐桌紧靠岛台,岛台面向客厅,构成家庭公共活动区域的核心。

日常泡茶冲咖啡、做个简单早餐,聚会时切水果、烤蛋糕,过年时包饺子……全可围绕这个岛台进行。

厨房内、餐桌旁、客厅里的家人,互相还都能看到彼此,增强了情感沟通。

▲大高建筑面积约94㎡三室示意

两梯二小高层,全部为建筑面积约143㎡三室户型。

大开间、短进深,整体面宽能达到约13.6米,客厅更是达到了约6.8米的开间。

当然,宽厅早已不算稀罕,它最大的特点是餐厨尺度

厨房开间达到惊人的约5.3米,在同级别户型里已经创下记录。

餐厅与厨房同宽,两个空间合并,变成一个约5.3米×3.55米、面积接近17㎡的餐厨一体化空间。

▲小高建筑面积约143㎡三室示意

这样的尺度,厨房里橱柜长度可以成倍增长,最大尺寸的对开门冰箱也能摆下。

餐厅靠墙增加西厨边柜,中央也足够摆下一张3米大长桌,或采取中岛+1.8米餐桌组合。

▲小高建筑面积约143㎡三室示意

如果再把约6.8米宽客厅与餐厨融合,就获得一个面积约45㎡的巨大家庭公共活动空间。

这个区域完全开敞,毫无视线遮挡,人们在不同区域都可以随时进行沟通。

中央摆放的大餐桌,起到连通厨房与客厅的枢纽作用,成为家庭公共活动的核心

假日派对上,3个家庭9口人聚集在一起,一点都不会显得拥挤:

厨房足够3位妈妈同时忙碌,爸爸们则可以在餐桌前喝茶聊天,3个孩子坐在沙发上看动画片……

▲小高建筑面积约143㎡三室示意

宽厅的家具摆放也可跳出传统思维,用灵活的小尺寸沙发、休闲椅、小边几、茶桌等,替代以前的转角沙发、大茶几、电视柜……

不同的角落,以不同的小型家具构建不同使用场景,阅读、观影、游戏、聊天、品茶、收藏……功能丰富而富有变化。

天津格调隐翠轩售楼处电话:400-100-1299转5999网上售楼中心〢欢迎来电咨询〢1v1销售专业讲解

声明:本文由入驻焦点开放平台的作者撰写,除焦点官方账号外,观点仅代表作者本人,不代表焦点立场。