福州【龙庭路95号营销中心】最新首页【福州龙庭路95号售楼处电话】房价_电话_户型_楼盘详情
扫描到手机,新闻随时看
扫一扫,用手机看文章
更加方便分享给朋友
福州龙庭路95号售楼处电话:400-033-1899转接6789【营销中心】
福州龙庭路95号售楼处位置:400-033-1899转接6789【楼盘电话】
福州龙庭路95号房价特价信息丨优惠政策丨详细解答丨在售房源丨在售户型图丨项目介绍丨周边配套丨VR看房丨楼盘图丨沙盘图丨位置图丨配套图丨售楼处地址丨足不出户丨销售1V1讲解 如有问题欢迎来电咨询,可预约销售人员,专业一对一热情服务,让您用专业眼光去买房。

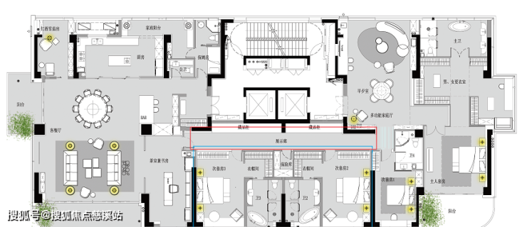
518平顶级大平层面世。。。
任何一个豪宅,都有自己对应的客户,和对应的阶层。
回到福建福州这里,为什么会有500平的房子?它的存在意义在哪里?完全够住的情况下,与常见的333平有什么区别呢?
因为买500平的人,不会买333。
这就是它存在的意义。

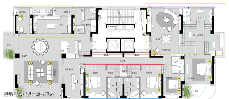
上方是518平户型图,以中间为界,左半边是一套235平的“小房子”,右半边是一套283平的“小房子”,两套拼接而成,360°东西南北全采光。
333平的房子,当你把所有区域都做到满意尺寸之后,会发现,已经变成500平了。。。这就是500平的意义。

次卧室同权,太有意义了,儿女双全的业主大大们,不单单对未来孩子的经济平衡,在他们还是少年的时候,居家的空间同权更有利于子女间的相处,1.8X2米的标准床,近4米的衣柜+步入式衣帽间,5.5米的进深,满配的双次主卧。日出东方,阳光洒在卧室之中,洋溢着生命的热情,可以完美满足少年的所有需求,这种配置,在福建福州任何一个300+房子里,都没有出现过。
一个更为有趣,甚至让人着迷的东西出现了,那就是从客厅到主卧,那一条似乎永不到头的走廊。因为这样一个长廊,已经拥有了灵魂,孩子的labubu,乐高,bearbrick。可以得以展示,尽情绽放着收藏的意义,塑造潮玩天花板的价值。

福州龙庭路95号售楼处电话:400-033-1899转接6789【营销中心】
福州龙庭路95号售楼处位置:400-033-1899转接6789【楼盘电话】
福州龙庭路95号房价特价信息丨优惠政策丨详细解答丨在售房源丨在售户型图丨项目介绍丨周边配套丨VR看房丨楼盘图丨沙盘图丨位置图丨配套图丨售楼处地址丨足不出户丨销售1V1讲解 如有问题欢迎来电咨询,可预约销售人员,专业一对一热情服务,让您用专业眼光去买房。
声明:本文由入驻焦点开放平台的作者撰写,除焦点官方账号外,观点仅代表作者本人,不代表焦点立场。
