济南【热搜楼盘】万虹缦云府售楼处首页【万虹缦云府】房价_电话_户型_楼盘详情-容积率@售楼处

搜狐焦点慈溪站 2025-09-16 14:59:12
用手机看
扫描到手机,新闻随时看

扫一扫,用手机看文章
更加方便分享给朋友

🏡✅济南 万虹缦云府 🏡☎️万虹缦云府售楼处电话:400-033-1899转接2222【营销中心】 🏡☎️万虹缦云府售楼中心电话:400-033-1899转接2222【已认证】 🏡✅户型图丨项目介绍丨最新房源丨周边配套丨售楼处地址丨样板间丨备案价

🏡✅济南 万虹缦云府

🏡☎️万虹缦云府售楼处电话:400-033-1899转接2222【营销中心】

🏡☎️万虹缦云府售楼中心电话:400-033-1899转接2222【已认证】

🏡✅户型图丨项目介绍丨最新房源丨周边配套丨售楼处地址丨样板间丨备案价

万虹·缦雲府

01

项目概况

【位置】:历城区小汉峪沟以东、张马屯街以南,恒大城南侧、海信翰墨府二期北侧

所属片区】:工业北球墨

【交房标准】:毛坯

【占地面积】:3.27万㎡

【地上建筑面积】:8.6万㎡

【容积率】:1.7

【楼间距】:24-39M

【车位】:549个(地上11个、地下538个)

【层高】:3.1-3.15米

得房率】:最大96%

【绿地率】:30%

【外立面】:真石漆为主

【项目规划】:规划12栋5-11层洋房

【梯户比】:一梯两户

【总户数】:414户

【户型面积】:127/139/170㎡

【首开】:预计8、9月份

【交房时间】:预计2027年中下旬

【预计均价】:1.6-1.7w

【预计总价】:200万起

【开发商】:万虹置业

【物业】:绿城物业

02

项目规划

万虹缦雲府容积率1.7,纯洋房低密社区,规划12栋住宅,毛坯,包含8栋11层洋房、2栋10层洋房、1栋8层洋房、1栋5层洋房。

03

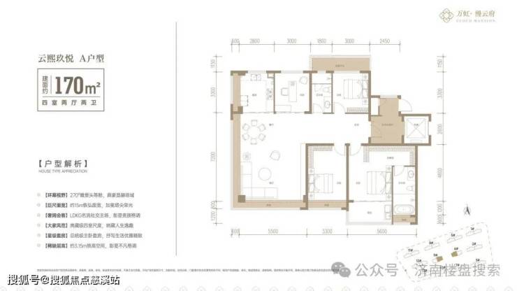
户型介绍

项目主力户型包含127㎡、139㎡、170㎡三种,都是一梯一户,独立电梯厅,得房率最高96%。

127㎡三室/四室两厅两卫:灵活可变,12.6米南向四面宽。分布在1/2/3/7/10号楼上。

139㎡三室/四室两厅两卫:灵活可变,13.4米面宽。有侧向厨房、北向厨房两种设计。分布在5/8/11/12/13号楼上。

170㎡四室两厅两卫:有端厅和四面宽两种设计。分布在6/9号楼上。

🏡✅济南 万虹缦云府

🏡☎️万虹缦云府售楼处电话:400-033-1899转接2222【营销中心】

🏡☎️万虹缦云府售楼中心电话:400-033-1899转接2222【已认证】

🏡✅户型图丨项目介绍丨最新房源丨周边配套丨售楼处地址丨样板间丨备案价

声明:本文由入驻焦点开放平台的作者撰写,除焦点官方账号外,观点仅代表作者本人,不代表焦点立场。