【三亚聚焦楼盘】:椰海樾府售楼处电话→首页热搜【椰海樾府】24小时电话→最新房价→楼盘百科详情→营销中心最新发布@售楼处中心
扫描到手机,新闻随时看
扫一扫,用手机看文章
更加方便分享给朋友
🚩三亚 椰海樾府
🚩椰海樾府售楼处电话:📞400-033-1899转接3333【营销中心】
🚩椰海樾府售中心电话:📞400-033-1899转接3333【已认证】
🌆 全景户型图鉴 | 🏙️ 城市地标解析 | 🌟 典藏房源速递
🛍️ 繁华配套指南 | 🏛️ 艺术样板间巡礼 | 💰 备案价透明公示
🌴【椰海樾府】 | CSLUXURY🌴
2025年聚亿地产·迭新之作·敬呈三亚
🔥【椰海樾府】🔥
🏅开发商:三亚市聚苑置业有限公司
🌎项目用地: 约 2.8万㎡ 🏙建筑面积: 约 8.9万㎡
🎈容积率: 2.2🌿绿地率: 40%
🎁总户数: 548户
🎉建筑形式: 9栋16-26纯板楼住宅
✨尊崇人居: 电梯入户,尊享私属空间
🏠A户型: 约88㎡三房两厅两卫
🏠B户型: 约100㎡三房两厅两卫
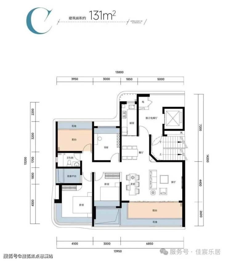
🏠C户型: 约131㎡四房两厅两卫
🏠D1户型:约115㎡四房两厅两卫
🏠D2户型:约115㎡四房两厅两卫
🎈物业费:待定:4.5元/平
🎈项目均价:待定:17500-21000元
🎉交房时间:待定:2026年12月31日
【聚亿地产】| 优质绿档央企
聚亿地产公司于2017年创立,总部于四川省成都市,深耕四川成都、眉山、达州、湖北宜城,累计开发面积超过150万㎡(先后投资开发了成都“聚亿•玺悦府”、成都“聚亿•江安锦城”、成都“领峰”住宅及商业综合体、达州“聚亿•金融城”、达州“聚亿•御城”、达州“上亿•机电建材广场”,眉山“聚亿•天府锦城一期”、眉山“聚亿•天府锦城二期”、眉山“聚亿•天府锦城三期”“、眉山“聚亿•天府锦城五期”、宜城“九洲龙城”等项目);
实现产值金额150亿元,公司的发展一直秉持着高质量、低负债的一高一低战略,注重产品口碑,目前公司目前在售项目有:聚亿•天府锦城五期、江安锦城项目。总资产逾60亿,净资产逾20亿,获得业主及行业内一致好评。
区域价值|自贸资产新高地,三城一港一基地
三亚崖州湾科技城位于三亚市西部,以“世界眼光、国际标准、三亚特色、高点定位”为架构,重点打造南繁科技城、深海科技城、科教城、南山港和全球动植物种质资源引进中转基地。抢占三亚发展潮头,打造“自贸建设新标杆”。三亚崖州湾科技城目前已引入研究院及重点大学超30家,引入世界500强43家,高新技术企业133家,3年已落地固定资产投资572亿。
【全维主场 启幕公园城市的诗意日常】
东揽南繁公园中央景观轴,北衔居住区丰盛配套,悉心编织一幅“步行即享、舒逸无界”的臻美生活图景,让日常点滴皆成诗篇。
①「立体交通」
快速抵达崖州湾轻轨站、高铁崖州站/高效链接G98环岛高速及凤凰国际机场
②「生态休闲」
观海公园/通海公园/滨海公园/滨河公园/中央公园/南繁公园/三角梅科博园
③「菁英教育」
科技城第一幼儿园(约900m)
南开小学(约1.5km)
南开中学(约1.6km)
寰岛实验小学&中学(约1.6km)
上海世外双语学校(约2.4km)
④「璀璨商圈」
南山荟/科尚城市广场/花园里购物中心/金色家园商圈
⑤「双三甲医院」
国康医院(已运营)/上海仁济医院三亚医院(已运营)
【椰风海韵 重构滨海生活的浪漫想象】
灵感汲取“椰风海韵”,以现代主义笔触革新建筑美学,将热带海岸的诗意风物,化作流淌于空间中的叙事语言。创新悬挑式观景阳台,勾勒轻盈通透轮廓。
【全新迭代产品 纯板式“一字楼”布局】
在空间规划上寻求新的突破,充分考虑风向、日照采光,采用板式一字楼布局,在流动空间中,构成了“有呼吸感”的生活空间。
【奢感度假园林 高定自然的生活艺术】
按功能需求组团化布置,形成7 大主题户外生活岛屿,辅以风雨连廊,串联岛屿泳池、全龄活动乐园等多元主题空间。约400m健康生活环线,设置主题运动跑道/运动热身场/休息加油站,满足全时运动需求。

【约560 ㎡海岛泳池会所 以浪为界的奢居日常】
超长约30米泳道,搭配池底涌泉,层层涟漪,营造海浪波光粼粼的度假奢感。
【6大主题架空层 全龄社交空间】
规划6大主题架空层,约3.9米挑高空间,涵盖运动、阅读、会客、童玩、颐养等功能,承载全龄社交、自我成长与生活美学的复合场景。
✨「樾+童话趣岛」——因时制宜,以动静分区为策略打造柔性的儿童社交空间,在愉快玩耍中解锁课本里没有涉及的知识点。

✨「樾+智慧光年」——把图书馆搬到家楼下,在这里,离家很近,却是另一个空间,可以静静地学习,专心地工作,短暂地放空。
✨「樾+友邻会客厅」——松弛感满分的池畔吧台,享受独自一人的安静,冥想独处,给自己内心一份安定,亦可约上密友小酌几杯,谈天说地。
✨「樾+轻氧运动」——即使风雨天气,也可以随时健身、瑜伽,在健康的生活方式里,让运动的快感打破生活的沉闷。
✨「樾+颐乐时光」——设置茶室、棋牌区等空间,闲来无事,约上三两老友,品茗畅聊,或是来上几局对弈,也可以挥毫泼墨,切磋书画技艺。

✨「樾+欢乐聚所」——打造日常休闲天花板,为每个家庭定制专属派对空间,可观影、游戏、聚会。
【一梯一户 南北通透 高得房率 建筑面积约88-131㎡至阔臻境】
享梯厅花园/270°瞰景/创新悬挑阳台/LDKG一体化格局/主卧套房,让身心定居于这片栖心之境。


🚩三亚 椰海樾府
🚩椰海樾府售楼处电话:📞400-033-1899转接3333【营销中心】
🚩椰海樾府售中心电话:📞400-033-1899转接3333【已认证】
🌆 全景户型图鉴 | 🏙️ 城市地标解析 | 🌟 典藏房源速递
🛍️ 繁华配套指南 | 🏛️ 艺术样板间巡礼 | 💰 备案价透明公示
声明:本文由入驻焦点开放平台的作者撰写,除焦点官方账号外,观点仅代表作者本人,不代表焦点立场。
