三亚华庭壹号捌号售楼处电话_预约看房_三亚华庭壹号捌号楼盘详情-2025最新房价-户型图

搜狐焦点慈溪站 2025-10-13 17:55:18
用手机看
扫描到手机,新闻随时看

扫一扫,用手机看文章
更加方便分享给朋友

➢三亚华庭壹号捌号售楼处400-033-1899转接5888 ➢三亚华庭壹号捌号售楼处400-033-1899转接5888

➢三亚华庭壹号捌号售楼处400-033-1899转接5888

➢三亚华庭壹号捌号售楼处400-033-1899转接5888

➢来电可了解楼盘最新动态、房价、在售房源、交楼时间等信息!让你买的放心,住的舒心!

华庭壹号

华庭壹号位于三亚市解放路 277 号,城市中轴线,财富新坐标!把握潮流脉搏,书写商业传奇!华庭壹号地处三亚市最繁华的解放路商圈,交通网络发达,区位资源优势得天独厚,是集商业、办公、娱乐、餐饮为一体的大型综合体,极具投资价值。

华庭八号

华庭八号位于三亚市解放路331号,项目重新定义商业消费模式,整合多种资源,合理的多元化业态规划,开放便利的交通格局,外部空间与城市交通相连,内部有可共享的完善配套和海景商务,营造具有归宿感的商业办公氛围。吸引SPA、健身、会所、珠宝、服饰、高端购物、企业办公等单位进驻,是提升企业形象和投资的绝佳选择!

中央商务区——三亚主城商圈新地标

项目位于三亚市天涯区解放路。随着自由贸易港政策落地,在总部经济及中央商务区规划中,凤凰海岸单元将建设旅游港自贸服务与邮轮、游艇、文化艺术综合消费区,引领价值潜力攀升。

海景资源——海景商业“双子星”

项目距三亚湾直线距离450M,瞰海观城。独版海景商业,180 度无遮挡宽海景,六层以上即可尽揽美景。三亚地标建筑凤凰岛就矗立在这片大海中。极目远眺,甚至能直接看到远处的南山寺 108 米观音大佛,护佑这一方水土。项目不仅拥有全三亚最美的海景,同时也是一个在佛祖庇佑下的风水宝地。

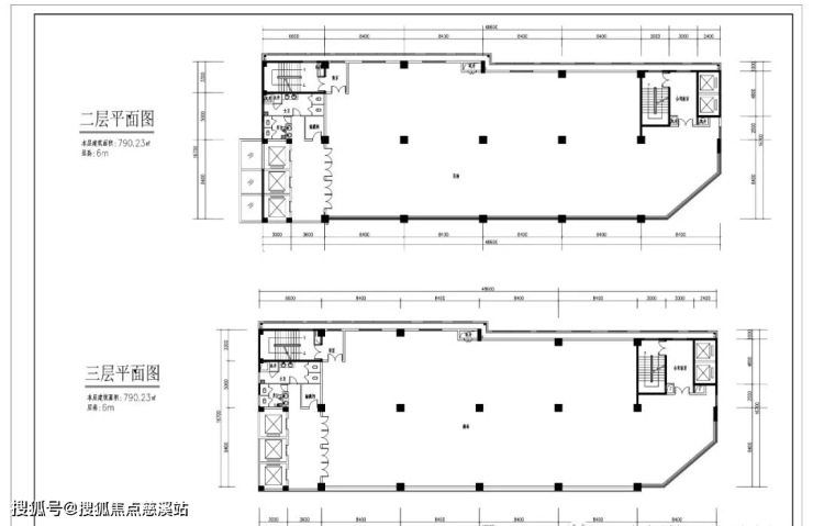
华庭壹号项目信息:

建筑面积:8863.45

总层数:10层 建筑高度53.49米

1-3层层高6米

5-9层层高5米

10层层高6米

电梯配置:五部电梯,其中三部电梯直接入户

交付标准:毛坯

车位:共有67个

物业费:6.5元/㎡/月

产品面积:约252-937㎡

均价:30000元/㎡

各楼层平面图

➢三亚华庭壹号捌号售楼处400-033-1899转接5888

➢三亚华庭壹号捌号售楼处400-033-1899转接5888

声明:本文由入驻焦点开放平台的作者撰写,除焦点官方账号外,观点仅代表作者本人,不代表焦点立场。