【营销中心】三亚 海语东岸售楼处电话丨2025 预约电话/项目地址/项目户型

搜狐焦点慈溪站 2025-09-07 16:28:18
用手机看
扫描到手机,新闻随时看

扫一扫,用手机看文章
更加方便分享给朋友

三亚 海语东岸 🔱 售楼处电话【已认证】✔:400-033-1899 转接8888✅ 🔱 营销中心电话【已认证】✔:400-033-1899 转接8888✅ 💌温馨提示:本项目采用预约制,前来营销中心请提前拨打400热线电话预约,感谢您的配合!

三亚 海语东岸

🔱 售楼处电话【已认证】✔:400-033-1899 转接8888✅

🔱 营销中心电话【已认证】✔:400-033-1899 转接8888✅

💌温馨提示:本项目采用预约制,前来营销中心请提前拨打400热线电话预约,感谢您的配合!

三亚CBD 城央中心 旅居新资产

【区位】三亚东岸CBD 城市中轴资产

中国铁建·海语东岸位于三亚中央商务区东岸CBD单元(三亚中央商务区是海南自贸港11个重点园区中唯一位于城市核心区的园区)

周边汇聚世界500强企业总部、国际一流商业集群,依托世界级空港群/海港/路网/城铁及轨道等多维路网,畅达三亚擎动世界

【配套】都会旅居优择 享受城市繁华

项目位于三亚CBD繁华区域,汇集一座城的优质资源

周边荟萃旅游、商业购物、商务、医疗、生活等各类配套资源。与三座免税城(海旅免税城 /海旅二期/海旅免税奥莱)直线距离500米,吃住玩购娱一应俱全

距三亚湾直线距离约5公里,同享繁华配套又享近距离海湾

【社区】都会旅居样本 舒适旅居环境

项目内部配备无边际立体泳池

时尚商业外街、全龄互动花园等配套

同时高标准构筑多元社区

全方位打造安全便捷旅居环境

为您和家人解锁旅居更多美好想象

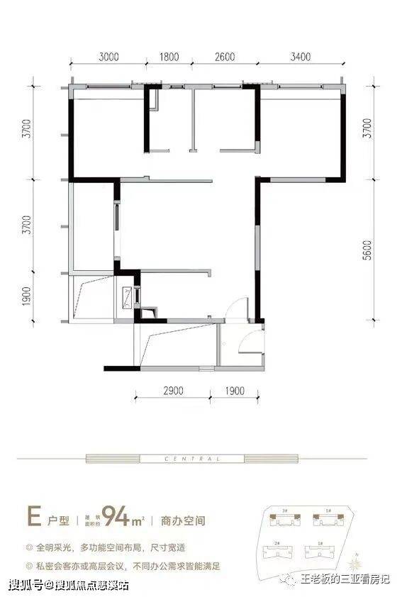
【产品】爆款品质商办产品

建面约76-121㎡二至三房精装产品

小户型低总价,方正通透户型

阔绰景观阳台,舒适空间布局

是板块内少有带独立阳台的优质商办产品

A户型 约76㎡ 两室两厅一卫

B1\B2户型 约90㎡

C户型 约92㎡ 两室两厅两卫

D户型 约121㎡ 三室两厅两卫

E户型 约94㎡ 三室两厅一卫

三亚 海语东岸

🔱 售楼处电话【已认证】✔:400-033-1899 转接8888✅

🔱 营销中心电话【已认证】✔:400-033-1899 转接8888✅

💌温馨提示:本项目采用预约制,前来营销中心请提前拨打400热线电话预约,感谢您的配合!

声明:本文由入驻焦点开放平台的作者撰写,除焦点官方账号外,观点仅代表作者本人,不代表焦点立场。