长沙振业悦江府售楼处电话→长沙振业悦江府售楼中心首页网站→振业悦江府楼盘百科详情→24小时电话

搜狐焦点慈溪站 2025-09-24 10:12:42
用手机看
扫描到手机,新闻随时看

扫一扫,用手机看文章
更加方便分享给朋友

长沙振业悦江府 售楼处电话:400-100-1299转9999 网上售楼中心〢欢迎来电咨询〢1v1销售专业讲解

长沙振业悦江府

售楼处电话:400-100-1299转9999

网上售楼中心〢欢迎来电咨询〢1v1销售专业讲解

项目详情

【项目名称】振业悦江府

【项目位置】长沙市天心区南湖路与书院路交汇处(保利国际广场旁)

【户型面积】建面约132-140㎡

【总栋数】2栋住宅、1栋公寓

【在售楼栋】2栋

【交房标准】住宅精装修

【总层高】住宅最高34层

【梯户比】5梯8户

【物业公司】深圳市振业城市服务有限公司

【绿化率】35%

均价1.35万

‼特价房仅12×××起‼

【容积率】4

【公摊】19%

【物业费】2.98元/平

【交房时间】2025年3月

【开发商】振业(长沙)房地产开发有限公司

关于学校:

小学就近入读:天心曙光小学

中学派位入读:雅礼外国语 湘郡培粹 15中等

【区位图】

【品牌介绍】

深圳市振业(集团)股份有限公司是深圳市国资委直管的国有控股上市公司,成立于1989年5月,1992年在深圳证券交易所上市(证券代码000006),具备房地产开发一级资质。

入湘17载,继打造梅溪湖百万低密大盘振业城后,择址富有历史风韵的湘江东岸,开启城芯生活新篇章。

【项目配套】

——【城芯正席】尽藏地利之势——

一席居城芯,云开见视界,悦江府以傲视群雄之姿,雄踞长沙河东城区正中,天心区核芯区域,立足繁华之上,依托政府打造的湘江金融外滩,对接城市发展速度,区域配套完善且醇熟,生活品质感不可比拟,未来升值潜力更加不可估量!

——【纵横生活】执掌城市主脉——

项目位于书院路与南湖路交汇处,依托于“两横两纵一隧道”格局的交通路网,拥享城市双地铁,距地铁4号线碧沙湖站距离约300m,距地铁1号线南湖路约1.4km,小区楼下就是公交车站,出行多选随意自许,尽享城市捷径。

——【风华正茂】悦享繁华大境——

悦江府矗立时代潮流的主场,汇聚南湖新城商圈、五一商圈、侯家塘商圈,地段等优势凸出,距离长沙老街南门口仅1.9公里,与保利国际广场、外國商业广场为邻,真正实现吃喝玩乐购10分钟生活圈,成就江岸醇熟生活。

——【翰墨传承】书香环绕造门第——

百年师范为邻,与湖南“四大名校”其中的雅礼和长郡中学本部距离仅约3公里。悦江府周边汇聚雅礼外国语学校、南湖小学、湖南省第一师范附属小学,构建片区内“近、全、优”教育体系,启赋智慧未来。

——【天赋臻贵】一城风光半城江——

城市依水而兴,人类逐水而迁,湘江涵养诸多历史人物,湘江东岸更堪称豪宅聚集区。步行约5分钟即达湘江风光带,与橘子洲头、岳麓山隔江相望,江上风光与城市高端生活气质尽显。

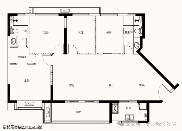
A | 建筑面积约135-140㎡ 四房两厅两卫

南北通透四居,满足多代生活需求

超宽景观阳台,盛放诗意与生活

B | 建筑面积约132-134㎡ 四房两厅两卫

舒适四居,空间无浪费;

客餐厅大面宽小进深,横厅尽享宽广大气;

客厅带采光大阳台,主卧南向带飘窗,户外美景尽收眼底;

(因楼层或位置不同,相同户型的局部结构、面积等可能有所不同;本户型仅供参考,户型面积以最终实测为准;买卖双方权利以最终签订的《商品房买卖合同》为准;本资料未尽事宜,开发商保留最终解释权、修改权。资料有效期至2025年5月)

南湖新城位于主城区,处在天心区沿江核心地带,北起城南西路,南至南二环,西至湘江大道,东抵书院路,总面积约3.57平方公里。

临江、望岳、听水、观洲,这里是许多老长沙人向往的地方。也是长沙摩天高楼的集中地之一,片区内商业、教育等配套成熟,住宅也炙手可热。

振业悦江府位于湘江外滩金融中心,地处天心区南湖路与书院路交汇处保利国际广场旁,将打造精工品质社区。

项目总占地面积1.8万方,总建筑面积约8.1万方,由2栋高端住宅和1栋酒店式公寓组成,自带社区商业和托儿所。

长沙振业悦江府

售楼处电话:400-100-1299转9999

网上售楼中心〢欢迎来电咨询〢1v1销售专业讲解

声明:本文由入驻焦点开放平台的作者撰写,除焦点官方账号外,观点仅代表作者本人,不代表焦点立场。