三亚申亚金融大厦售楼处电话_预约看房_三亚申亚金融大厦楼盘详情-2025最新房价-户型图

搜狐焦点慈溪站 2025-10-13 15:27:22
用手机看
扫描到手机,新闻随时看

扫一扫,用手机看文章
更加方便分享给朋友

三亚申亚金融大厦售楼处400-033-1899转接5888

三亚申亚金融大厦售楼处400-033-1899转接5888

💫申亚金融大厦💫

黎岸申耕 掘金时代

📎 经济技术指标:

📌 规划用地面积:10530㎡

总建筑面积:74643㎡

🎗 开发商:海南申亚东岸投资有限公司

设计团队:丹麦SHL建筑事务所

🕋 建筑风格:北欧简约、智慧楼宇

🚩 项目定位:金融中心 时代前沿

📏 建筑高度:80米

层数:地下3层,地上18层

标准层面积:2420㎡

📐 层高:

① 大堂1~2层挑空10.5米

② 标准层和花园层层高4.2米-4.5米,

17、18层层高4.5米

容积率:4.5

🌿 绿化率:25%

🚊 电梯: 主楼八部高速客梯,一部VIP高速客梯,一部货梯。国际一线品牌蒂森克虏伯电梯。

🗝 交房日期:2024年12月

📎 项目简介:

申亚金融大厦由海派文化地产先锋上海申亚集团耕耘开发,于2019年竞拍取得三亚总部经济区首批挂牌地块,为海南自贸港建设起到先锋表率作用。项目位于海南自贸港三亚东岸总部经济区迎宾路核心位置,毗邻东岸湿地公园和大悦城购物中心,将打造成三亚独特海派血统的金融地标建筑。

5A级写字楼┆多功能复合型┆智慧楼宇

花园式办公┆下沉商业广场

【海南自贸港 国家战略】

海南自贸港发展规划

三亚中央商务和总部经济区

【项目区位】

自贸港交通引擎,陆海空畅通便捷

【项目鸟瞰图】

【项目效果图】

【设计理念】

风格定位:北欧简约

设计手法:简洁形体、韵律立面

主要材料:LOW-E玻璃、铝板幕墙

泛光照明:夜间通过室外楼体泛光勾勒项目体态,丰富项目氛围,打造变化多姿的CBD地标项目。

【设计亮点】

现代简洁的建筑形体 垂直生态的景观空间

灵活高效的办公空间 生态交互的室内共享

绿色生态的室外景观 活力多样的商业街区

【项目总平面彩图】

【项目地下一层】

独特的下沉式庭院,商业配套/轻重餐饮、超市、美食档口多业态组合大布局开间。

【项目一层】

建面约343-1393㎡艺术商街

【项目二层】

建面约230-1560㎡文化商街

【项目三层】

一半写字楼,一半商业街区,配套超1000㎡屋顶花园,办公生活两不误。

商业部分建面约90-667㎡复合商街

办公部分建面约83-567㎡特色办公

【项目主楼标准层】

建面约156-447㎡企业家公馆

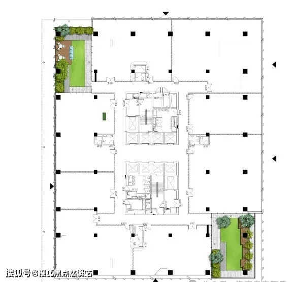
【项目主楼花园层】

花园层4层平面图

花园层7、13层平面图

三亚申亚金融大厦售楼处400-033-1899转接5888

声明:本文由入驻焦点开放平台的作者撰写,除焦点官方账号外,观点仅代表作者本人,不代表焦点立场。