鲁能公馆-售楼处(三亚)鲁能公馆首页网站-2025新首页欢迎您-恭候莅临
扫描到手机,新闻随时看
扫一扫,用手机看文章
更加方便分享给朋友
(三亚)鲁能公馆
🚩售楼处电话【已认证】🌈 :400-033-1899转接 5555☑️
🚩营销中心电话【已认证】🌈 :400-033-1899转接5555☑️
🌴温馨提示:本项目采用预约制,前来营销中心请提前拨打400热线电话预约,感谢您的配合🌴

项目地址:红塘湾旅游度假区红塘湾大道九横路东侧
开 发 商:中国绿发
在售地块:E23地块
占地面积:35亩
建筑面积:2.82万㎡
绿 化 率:约40%
容积率:约1.2
总 套 数:E23地块庭院式商业共22套
交房时间:毛坯现房
物业费:6.8元/㎡
在售户型:约105㎡庭院式商业
毗邻南海,依湾区而筑
高赠送,空间实用百变
现房销售,品质眼见为实
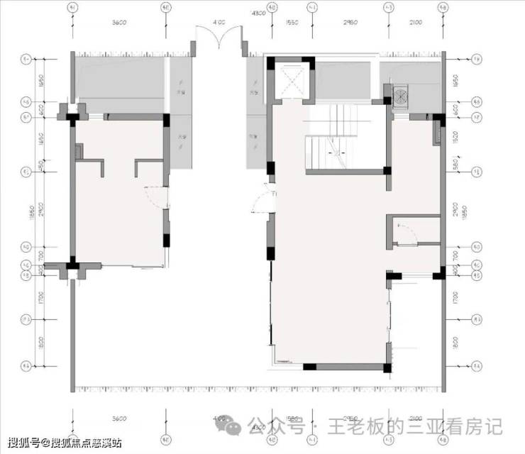
项目区位:项目交通:项目周边配套:项目鸟瞰图:项目经济指标:项目庭院式商业产品价值:项目庭院式商业平面图:






产权面积:约105㎡
实际使用面积:约439-477㎡
一层面积约88平米,层高约3米隔层面积约88平米,层高约3米,带连廊二层面积约58平米,建筑层高斜屋面3.5-4.4米地下一层约155平米,地下室建筑层高5.3—5.57米,可做夹层约50-88平米

(三亚)鲁能公馆
🚩售楼处电话【已认证】🌈 :400-033-1899转接 5555☑️
🚩营销中心电话【已认证】🌈 :400-033-1899转接5555☑️
🌴温馨提示:本项目采用预约制,前来营销中心请提前拨打400热线电话预约,感谢您的配合🌴
声明:本文由入驻焦点开放平台的作者撰写,除焦点官方账号外,观点仅代表作者本人,不代表焦点立场。
