三亚金万隆(售楼处) 最新发布 - 金万隆销售中心 - 环境 - 户型 - 价格 - 地址 - 楼盘详情 - 电话 - 配套- 电话 - 交房时间
扫描到手机,新闻随时看
扫一扫,用手机看文章
更加方便分享给朋友
➢三亚金万隆售楼处电话400-033-1899转接5888【已认证】
➢三亚金万隆营销中心电话400-033-1899转接5888【已认证】
➢三亚金万隆开发商客服电话400-033-1899转接5888【售楼中心】
➢来电可了解楼盘最新动态、房价、在售房源、交楼时间等信息!让你买的放心,住的舒心!
吉阳区:金万隆商城

金万隆商城此次获预售证号:[2022]三房预许字(68)号,预售范围为商业楼,预售房源43套,均为商业用途产品,户型建面约57-141㎡,预售总建筑面积为3960.94㎡。
🏠项目地址:三亚市吉阳区荔枝沟路
占地面积5000平方,土地年限至2062年10月26日
总建筑面积:13849.94平方米
可售面积4000平方;43套loft。
车位地下102个地上50个;
商业约6000平方,业态:
一楼:麦当劳,咖啡厅,百果园,奶茶店,甜品店
二楼:品牌本邦上海菜
三楼:瑜伽馆,品牌餐饮
四楼:影院足道
负一楼:超市
负二楼:地下停车场 地下102个地上50个
🎆容 积 率:2.0
🎄绿 化 率:27%
🏠楼层总高:地上4层 (loft)。
地下2层
🏠户型面积:
建筑面积:
C户型 70平方米,使用面积约112平方米
B户型 137平方米,使用面积约225平方米
A户型 140平方米,使用面积约230平方米
装修标准:毛坯
🎄产权年限:40年
👑区位优势:
① 项目地处海南国际旅游岛,
②与国家级湿地公园东岸湿地公园零距离接触
③项目身居三亚市中央商务区,于中央服务区、中央消费区、国际商圈、国际 社区四大区中心位置,为三亚知名的东岸CBD区域
④距三亚动车站仅5分钟车程,距三亚凤凰国际机场20分钟车程
💐配套优势:
✨周边配套✨
① 学校:三亚市一中、海南华侨中学、三亚丰和学校,双品实验学校
② 医院:解放军425医院、海南农垦医院、三亚市人民医院、三亚妇幼保健医院等
④ 生活配套:旺豪超市、美之亚超市、丹州农贸市场、金鸡岭社区农贸市场等
🍃项目景观:
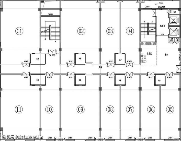
楼层户型分布图
A户型 建面 140平方 使用面积约230平方
B户型 建面 137平方 使用面积约225平方
C户型 建面 70平方 使用面积约120平方
装修效果图
➢三亚金万隆售楼处电话400-033-1899转接5888【已认证】
➢三亚金万隆营销中心电话400-033-1899转接5888【已认证】
➢三亚金万隆开发商客服电话400-033-1899转接5888【售楼中心】
声明:本文由入驻焦点开放平台的作者撰写,除焦点官方账号外,观点仅代表作者本人,不代表焦点立场。
