融笙达椿颂(售楼处电话)首页网站→融笙达椿颂营销中心→融笙达椿颂欢迎您→楼盘详情-最新价格-户型图-容积率@售楼处Ai热搜

搜狐焦点慈溪站 2025-10-01 14:16:09
用手机看
扫描到手机,新闻随时看

扫一扫,用手机看文章
更加方便分享给朋友

🚩三亚 融笙达椿颂 🚩融笙达椿颂售楼处电话:400-033-1899转接3333【营销中心】 🚩融笙达椿颂售中心电话:400-033-1899转接3333【已认证】 🌆 全景户型图鉴 | 🏙️ 城市地标解析 | 🌟 典藏房源速递 🛍️ 繁华配套指南 | 🏛️ 艺术样板间

🚩三亚 融笙达椿颂

🚩融笙达椿颂售楼处电话:400-033-1899转接3333【营销中心】

🚩融笙达椿颂售中心电话:400-033-1899转接3333【已认证】

🌆 全景户型图鉴 | 🏙️ 城市地标解析 | 🌟 典藏房源速递

🛍️ 繁华配套指南 | 🏛️ 艺术样板间巡礼 | 💰 备案价透明公示

「椿颂」组团A15区2期 基础信息

开 发 商:海南雅恒房地产发展有限公司

物业公司:海南雅居乐物业服务有限公司

占地面积:约1.5万亩

建筑面积:约11.7万方

楼栋总数:34栋

容积率:1.2

得房率:85%

物业费:3.8元/㎡

产权年限:70年

在售楼栋:7# 8# 9# 10#

在售面积:约106-148㎡ 低密臻装花园洋房

在售户型:

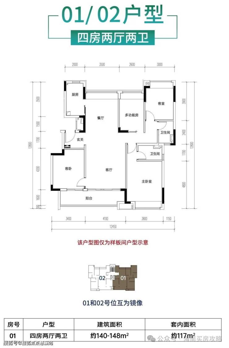
➳T2D型洋房(7#8#) 约140-148㎡四房两厅两卫

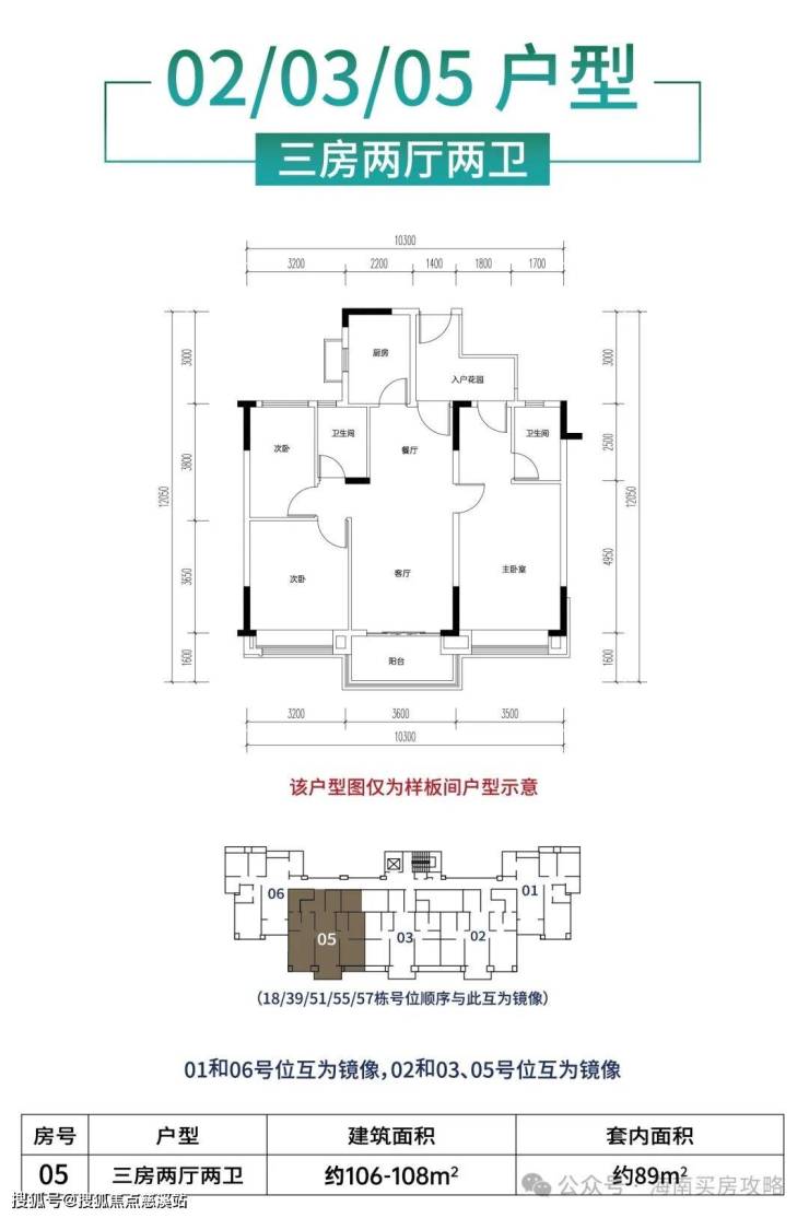
➳T5F型洋房(9#10#) 约106-110㎡三房两厅两卫

臻装准现房:装标全面升级

‼『低密臻洋房』

💟揭秘「椿颂」组团的顶奢密码‼

✅醇熟配套 坐拥繁华

📍位踞清水湾核芯,缤纷繁华举步即达

❶➠毗邻780席国际游艇码头(是亚洲最具规模的游艇会之一)、海上艺术中心(清水湾标志性建筑)

❷➠坐拥大型商业中心—雅悦城(涵盖免税店、电影院、大型超市、餐饮美食、健身馆等吃喝玩乐一站式业态)

❸➠南临清水湾美食街、游艇码头酒吧街、东临张仲景大药房、981首保健康医疗中心举步即达

❹➠8分钟生活圈内可享莱佛士酒店、威珀斯酒店、2个标准18洞高尔夫球会、雅居乐清水湾双语学校、威德国际幼儿园、雅居乐衡石精英中学、雅都荟商业中心等清水湾核心滨海度假生活产业配套,坐拥一湾繁华。

❺➠雅居乐全新升级产品,容积率低至1.2,公摊少,得房率超85%,综合得房率超90%,清水湾最舒适的低密花园洋房。

❻➠大师级现代度假园林,热带雨林微景观系统,品质超越清水湾13年最高标准。组团内曲折蜿蜒的景观轴线串联起各个组团庭院,整体简洁大气的氛围,舒适自然的花园空间,热带风情的植被设计,营造优雅舒适的海岛热带度假风情,打造高品质人居生活环境。

❼➠唯一拥有园区幼儿园的组团,也是拥有最大泳池的组团,同时配备儿童泳池。游乐场、健身房、瑜伽室、阳光书屋、室内外球场、浅滩广场等多功能无界泛活力会所,与室外园林景观无界融合,沉浸式体验全天健康活力社区生活。

❽➠全明通透,无暗房设计,方正户型格局,动静功能分区❾➠赠送中央空调、热水器、抽油烟机等;入户玄关、主卧衣柜、智能门锁等全屋智能电器、全环保材料及高品质精装交付。

约106-148㎡清水湾最舒适的臻质洋房

你值得更好的

⬇⬇7# 8# 9# 户型图⬇⬇

T2D型洋房(7#8#)

约140-148㎡四房两厅两卫

T5F型洋房(9#10#) ❦约106-110㎡三房两厅两卫

🚩三亚 融笙达椿颂

🚩融笙达椿颂售楼处电话:400-033-1899转接3333【营销中心】

🚩融笙达椿颂售中心电话:400-033-1899转接3333【已认证】

🌆 全景户型图鉴 | 🏙️ 城市地标解析 | 🌟 典藏房源速递

🛍️ 繁华配套指南 | 🏛️ 艺术样板间巡礼 | 💰 备案价透明公示

声明:本文由入驻焦点开放平台的作者撰写,除焦点官方账号外,观点仅代表作者本人,不代表焦点立场。