三亚中绿馨海家园(售楼处) 最新发布 - 中绿馨海家园销售中心 - 环境 - 户型 - 价格 - 地址 - 楼盘详情 - 电话 - 配套- 电话 - 交房时间
扫描到手机,新闻随时看
扫一扫,用手机看文章
更加方便分享给朋友
➢三亚中绿馨海家园售楼处电话400-033-1899转接5888【已认证】
➢三亚中绿馨海家园营销中心电话400-033-1899转接5888【已认证】
➢三亚中绿馨海家园开发商客服电话400-033-1899转接5888【售楼中心】
➢来电可了解楼盘最新动态、房价、在售房源、交楼时间等信息!让你买的放心,住的舒心!
中绿馨海家园项目距海约1公里,拥有独特的原生态山海景观资源,项目总占地面积约3.8万㎡,总建筑面积约14万㎡ ,容积率约3.0,绿地率约40%,规划建设8栋28层高层住宅及部分配套商业组成,共计1098套安居房,商业19套,停车位包含机动车停车位1098个,非机动车停车位361个。住宅70年产权、商业40年产权,硬装交付,2023年6月30日交房。



产品解读
中绿馨海家园项目采用板楼行列式的形式布局,一梯两户的设计,采光通风俱佳,尽最大可能拥享南向海景资源,规划建面约100-120㎡三至四房产品,住宅70年产权,硬装交付,2023年6月30日交房。

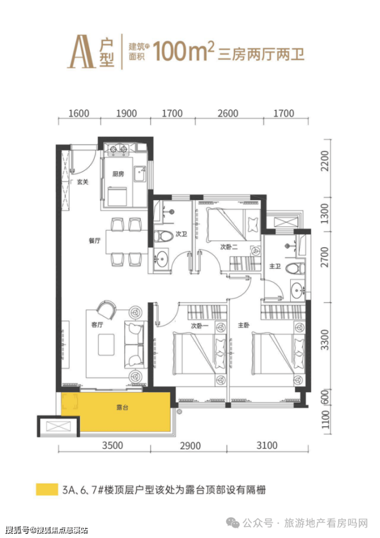
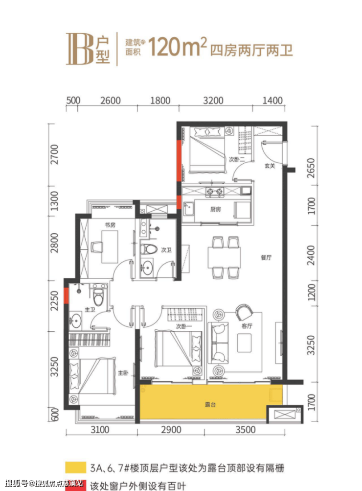
户型解读:
A户型:建筑面积约100㎡,三房两厅两卫。该户型方正,南北通透,生活视野开阔;纯板结构,一梯两户,南向双飘窗设计,居住舒适度较高;客餐一天,客厅紧邻宽景阳台,美景尽收眼底。

B户型:建筑面积约120㎡,四房两厅两卫。该户型为四房布局,南北朝向,可容纳三代同堂的理想生活,4.6m宽餐厅、阔尺厨房,烹饪幸福的滋味;6.4m宽超大景观阳台、拥揽无尽园林景观。

➢三亚中绿馨海家园售楼处电话400-033-1899转接5888【已认证】
➢三亚中绿馨海家园营销中心电话400-033-1899转接5888【已认证】
➢三亚中绿馨海家园开发商客服电话400-033-1899转接5888【售楼中心】
声明:本文由入驻焦点开放平台的作者撰写,除焦点官方账号外,观点仅代表作者本人,不代表焦点立场。
