天津瑞府售楼处欢迎您 —【天津瑞府】售楼处电话丨24小时电话丨楼盘户型丨周边配套

搜狐焦点慈溪站 2025-10-01 15:02:05
用手机看
扫描到手机,新闻随时看

扫一扫,用手机看文章
更加方便分享给朋友

天津瑞府 ♐售楼处电话(400-033-1899转8888)◆◆    ♐来电预约登记——〢尊享Vip一对一专业置业顾问讲解◆◆  ♐郑重承诺:开发商售楼处直销,绝不收取任何费用,中介勿扰!◆◆  ♐网上售楼中心〢欢迎来电咨询〢提前预约可享内部优惠〢1v1销售专业讲

天津瑞府

♐售楼处电话(400-033-1899转8888)◆◆

♐来电预约登记——〢尊享Vip一对一专业置业顾问讲解◆◆

♐郑重承诺:开发商售楼处直销,绝不收取任何费用,中介勿扰!◆◆

♐网上售楼中心〢欢迎来电咨询〢提前预约可享内部优惠〢1v1销售专业讲解!◆◆

基础信息

楼盘名称:天津瑞府

楼盘别名:天津·瑞府,瑞湖雅苑

所属开发商产品线:金钥匙物业

物业管理费:3.85元/月/平米

总栋数:23栋

总户数:2028户

产权年限:70年

建筑类型:小高层,板楼,高层

占地面积:147100平米

建筑面积:346300平米

容积率:2.42

绿化面积:88000

绿化率:40%

总车位数:2236

地上车位数:84

底下车位:2152

车位配比:1:1.1

车位属性:出售

出租价格:待定

得房率:72-78%

装修标准:精装修

天津·瑞府十大必买理由

1️⃣国企精工现房 品质与安心双保障。

2️⃣国际新梅江高端居住核心区:十二五规划重点区域,“两区三轴四带”整体开发。

3️⃣城市绿奢圈层资产,两园一水系,毗邻卫津河公园、太湖路公园,TOD中央绿轴景观带,自然盛境围合下的绿氧健康生活。

4️⃣十四横七纵干道网络,地铁全覆盖、咫尺公共交通,加持塔尖生活节奏。

5️⃣咫尺繁华商圈,畅享全配套生活圈。

6️⃣一站式K15教育配套,守护孩子卓越未来。

7️⃣三甲级医疗配套,关照家人健康无虞。

8️⃣联袂全球顶级大师,引领生活美学,合筑天津城市新封面。

9️⃣约26万㎡宽境美学大作:中轴礼序,极简主义美学现代落地玻璃高定工艺工法,双轴景观布局六大巨型花园。

🔟建筑面积约104-169㎡当代美学奢装现房:经典三/四面宽宽幕落地窗全精装现房

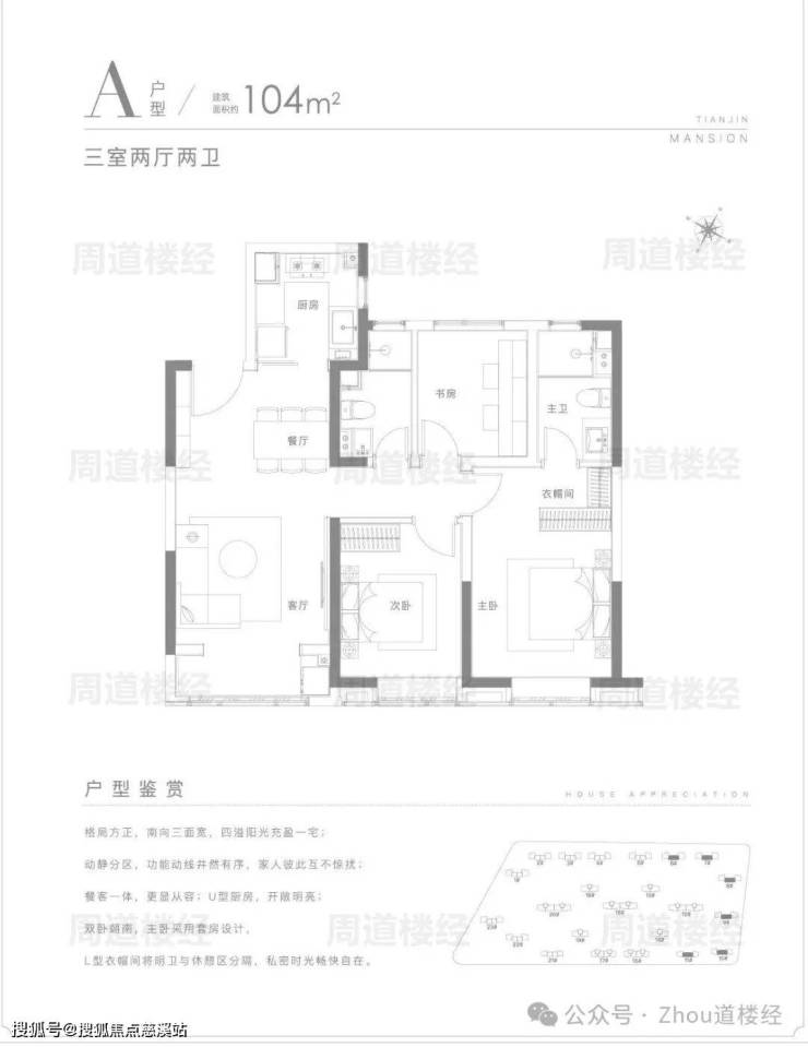
户型赏鉴

户型:高层丨104㎡/120㎡/140㎡,三室两厅两卫。

小高层丨169㎡,三/四室两厅两/三卫。

●户型图

●建面约169㎡高改四居

1、奢敞户型,南北通透,南向四面宽,都市贵族的生活尺度;

2、动静分区,动线便捷科学,安放家人之间不同的生活作息;

3、餐客一体,会客厅直连阳光露台,更添一方明朗天地;

4、三卧室朝南,与景观飘窗相连,玩味生动日常的意趣;

5、主卧采用套房设计,L型衣帽间区隔开休憩与盥洗空间,宽阔明亮。

天津瑞府

♐售楼处电话(400-033-1899转8888)◆◆

♐来电预约登记——〢尊享Vip一对一专业置业顾问讲解◆◆

♐郑重承诺:开发商售楼处直销,绝不收取任何费用,中介勿扰!◆◆

♐网上售楼中心〢欢迎来电咨询〢提前预约可享内部优惠〢1v1销售专业讲解!◆◆

声明:本文由入驻焦点开放平台的作者撰写,除焦点官方账号外,观点仅代表作者本人,不代表焦点立场。