开创.白玉海棠(营销中心)三亚 开创.白玉海棠楼盘详情-户型-配套-开创.白玉海棠售楼处电话

搜狐焦点慈溪站 2025-09-17 18:20:57
用手机看
扫描到手机,新闻随时看

扫一扫,用手机看文章
更加方便分享给朋友

三亚 开创.白玉海棠 ♐售楼处电话(400-033-1899转8888)◆◆    ♐来电预约登记——〢尊享Vip一对一专业置业顾问讲解◆◆  ♐郑重承诺:开发商售楼处直销,绝不收取任何费用,中介勿扰!◆◆  ♐网上售楼中心〢欢迎来电咨询〢提前预约可享内部优惠〢1v1

三亚 开创.白玉海棠

♐售楼处电话(400-033-1899转8888)◆◆

♐来电预约登记——〢尊享Vip一对一专业置业顾问讲解◆◆

♐郑重承诺:开发商售楼处直销,绝不收取任何费用,中介勿扰!◆◆

♐网上售楼中心〢欢迎来电咨询〢提前预约可享内部优惠〢1v1销售专业讲解!◆◆

基本信息

产权:70年住宅用地(2088.1.15止)

规划用地:23968.74㎡

建筑面积:48810.73㎡

计容建面:28762.32㎡

容积率:1.2

建筑密度:24.25%

绿地率:40%

住宅总户数:258户

停车位:392个

最高建筑高度:23.6米

物业公司:碧桂园物业

物业费:洋房4.8元/²,别墅7.8元/²

开创·白玉海棠项目由四川开创投资集团开发建设。集团成立于1993年,以房地产建设为主营业务,2005年成功转型为房地产开发企业,历经27载,现已发展为以项目投资、房地产开发、建筑施工、水资源开发生产、商贸流通、现代农业为六大核心产业的大型控股集团公司。而开创·白玉海棠也是集团进入海南的首个项目,既是我们的代表之作同时也承载着开创人对精工品质的不懈追求和悦享生活的美好期望。

项目是70年产权的住宅,建筑面积近5万㎡,容积率1.2,由7栋洋房与3栋叠拼别墅组成,总户数258户,是具有别墅级居住品质的低密社区。项目的建筑立面采用新亚洲风格,上部精巧轻盈,下部浑厚稳重,同时通过坡屋顶、大景观阳台等设计元素营造出典雅端庄、清秀闲适的度假氛围。

园林设计采用了集团首创的“六重五星四季”景观概念,六重景观分别为草坪、花卉、小灌木、大灌木、中小乔和高大乔木,讲究层次叠级和色彩搭配,让整个社区的园林绿化层次分明,更具有艺术性和观赏性。五星即是以五星级酒店的景观元素为设计蓝本,以“一方白玉落海棠”为主题,引其精髓和亮点,辅以精致的景观小品和艺术雕塑。同时,将“花开四季”的概念植入其中,使社区内每个季节都有不同种类的花卉盛开供于观赏,让每一位业主都能体验到鲜花盛开、惊喜常在。

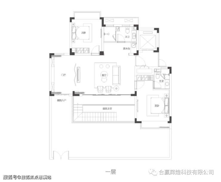
项目的户型预览

A3户型 建筑面积约107.77㎡

三室二厅二卫

6.4米阔景横厅

3.2米鼎级层高

1梯1户私享电梯

2.1米闲适阳台

首层平面

三亚 开创.白玉海棠

♐售楼处电话(400-033-1899转8888)◆◆

♐来电预约登记——〢尊享Vip一对一专业置业顾问讲解◆◆

♐郑重承诺:开发商售楼处直销,绝不收取任何费用,中介勿扰!◆◆

♐网上售楼中心〢欢迎来电咨询〢提前预约可享内部优惠〢1v1销售专业讲解!◆◆

声明:本文由入驻焦点开放平台的作者撰写,除焦点官方账号外,观点仅代表作者本人,不代表焦点立场。