半山首府售楼处电话→半山首府24小时电话→半山首府销售中心地址→半山首府楼盘最新详情→@半山首府百度搜索

搜狐焦点慈溪站 2025-09-14 17:54:49
用手机看
扫描到手机,新闻随时看

扫一扫,用手机看文章
更加方便分享给朋友

🏡✅三亚 半山首府 🏡☎️半山首府售楼处电话:400-033-1899转接2222【营销中心】 🏡☎️半山首府售楼中心电话:400-033-1899转接2222【已认证】 🏡✅户型图丨项目介绍丨最新房源丨周边配套丨售楼处地址丨样板间丨备案价

🏡✅三亚 半山首府

🏡☎️半山首府售楼处电话:400-033-1899转接2222【营销中心】

🏡☎️半山首府售楼中心电话:400-033-1899转接2222【已认证】

🏡✅户型图丨项目介绍丨最新房源丨周边配套丨售楼处地址丨样板间丨备案价

半山首府

开发商:海南冠洋四通投资有限公司

项目总用地面积:19107.33㎡(约30余亩)

总建筑面积:34890㎡,

可售面积:2.56万余平米,

容积率:1.35

绿化率:41%

总户数:223户

产权年限:70年大产权

交付标准:精装交付

装修风格:轻奢

交付时间:2022年11月底

物业费:5.3元/平米(金地物业)

车位:1:1,地上34,地下189

项目区位

享繁华三亚,居半山豪宅

非凡自然,向来是塔尖人群所向往和追求的理想境界。山的伟岸,海的澎湃,极致境界造就非凡居所。

三亚·半山首府择址大东海榆亚路中段,拥半山而立,坐享世界级湾区。于此,停泊世界的意志,达成“人生至此不远游”的臻我境界。

区位优势

享繁华三亚,居半山豪宅

1、地处三亚城芯,静享榆林湾内海、600亩红树林湿地公园,畅达三亚湾、大东海、亚龙湾、海棠湾等四大湾区。

2、毗邻红沙隧道,距高铁三亚站、亚龙湾站约8公里,距环岛高速约10公里、距凤凰机场约20公里,30分钟通达全城,立体化交通保障全岛便捷出行。

3、紧邻大东海商圈核心,坐享夏日百货、1号港湾城、鸿港新城等缤纷商业,5分钟生活圈,轻松享有。

3栋低密纯板高层建筑,一字布局,南北通透,户户皆享超大观景阳台180°瞰海观山的极致视觉,海天山色尽收眼底。1.35绝版超低容积率只为成就223席高端舒适的完美胜境。

项目自身配套

享繁华三亚,居半山豪宅

1、社区打造约1000㎡架空层专属社区生活体系—私享会客厅、艺术书吧、童心乐园、轻氧健身室、半山茶舍、棋牌室、商务休闲吧、悦海餐厅、声乐琴房等9大生活主题,让业主融入自然,回归生活,去追寻本应享受的生活精彩。

2、园区打造超大半山镜面无边际泳池,儿童嬉戏区,同时满足成人与儿童的多样化需求,畅享365天度假生活。

3、业主独享园区内景观栈道登山,体验私属原生山林登山乐趣。

4、金服物业提供全程酒店式星级服务。社区智能化安防体系。

主力户型

享繁华三亚,居半山豪宅

看海纯板房A户型:133㎡3房2厅2卫

看海纯板房B户型:103㎡2房2厅2卫

看海纯板房C户型:134㎡3房2厅2卫

看海纯板房A1户型:130㎡3房2厅2卫

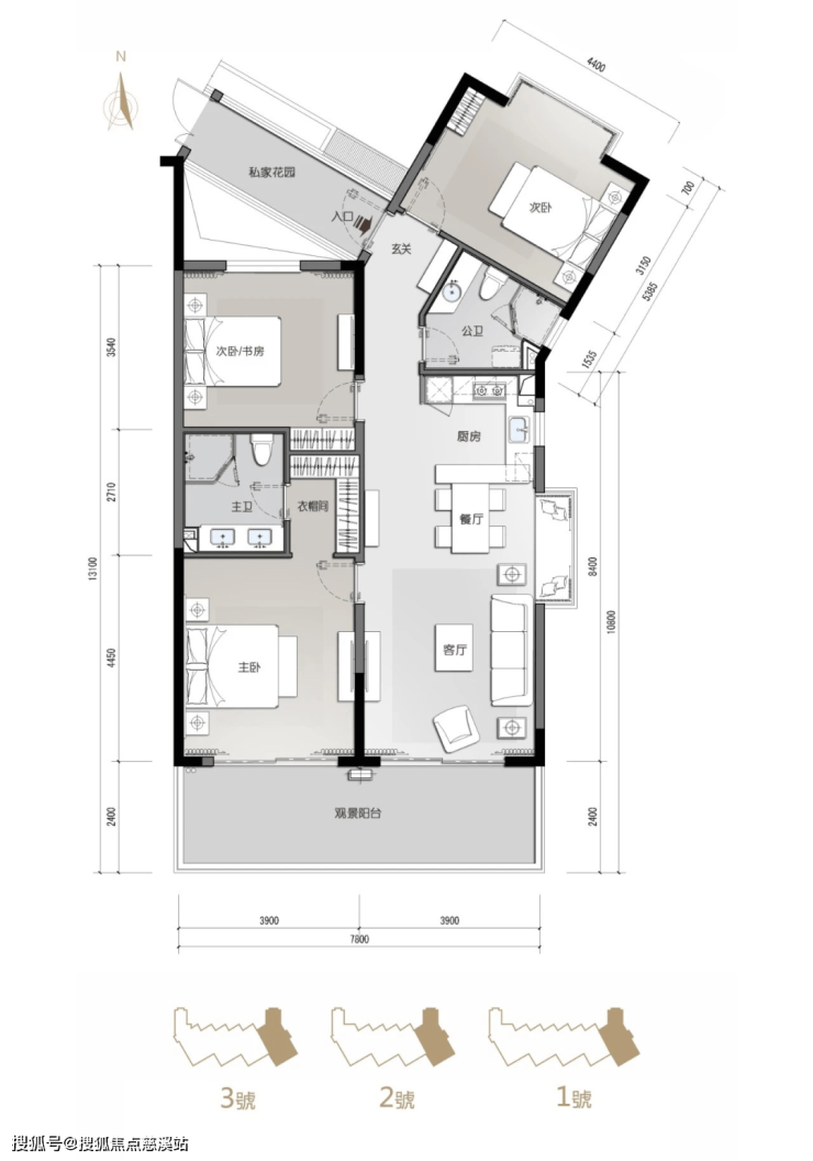
【户型鉴赏:A户型】

三房两厅两卫

建筑面积约:133㎡

全明户型通透格局,尊崇居家彰显非凡。

悦享7.8米观景阳台,户户南向180°观景面。

舒雅南向套房主卧,独立衣帽间、双手盆设计、干湿分离。

独立入户花园,让全家人的出入都尊享从容。

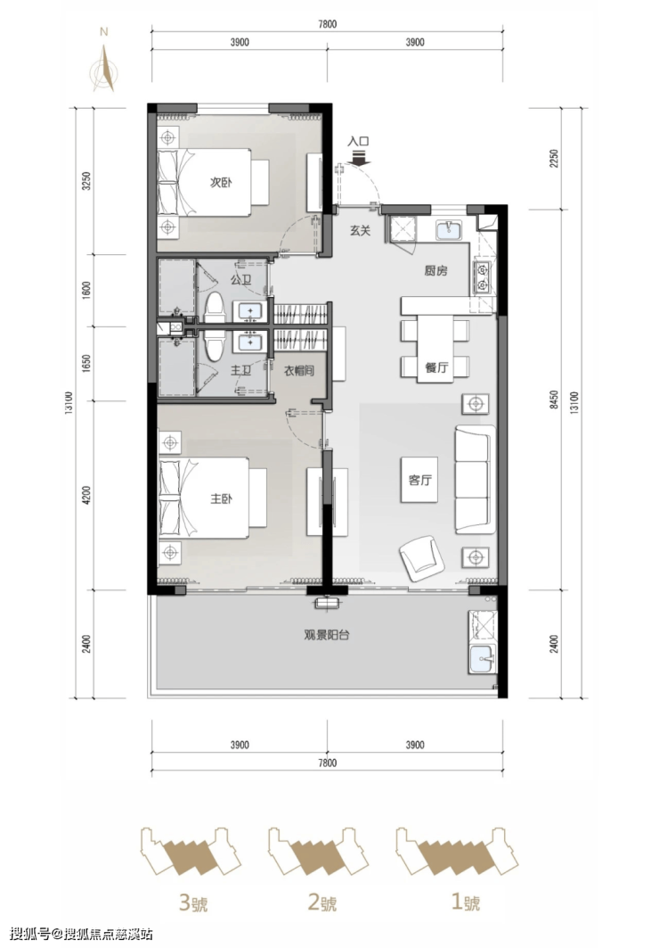
【户型鉴赏:B户型】

两房两厅两卫

建筑面积约:103㎡

南北通透、空间方正,惬意享受阳光海风的馈赠。

悦享7.8米观景阳台,户户南向180°观景面,闲情雅趣,诗意生活。

餐客厅双厅设计、厨房方正、宜中宜西,上演美食盛宴,尽显居家仪式感。

主次卧独立卫生间、生活起居互不干扰,从容切换。

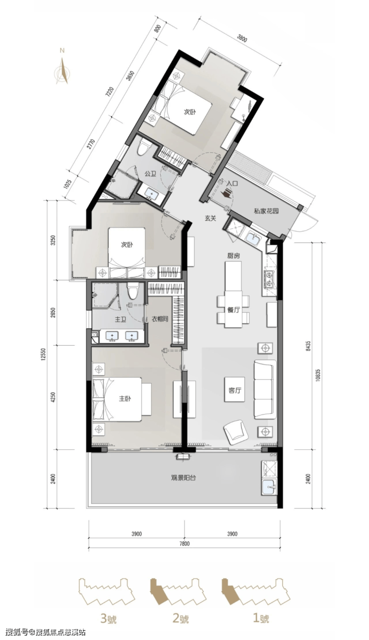
【户型鉴赏:C户型】

三房两厅两卫

建筑面积约:134㎡

通透格局,空间动静合理。

悦享7.8米观景阳台,户户南向180°观景面

奢阔南向主卧,独立衣帽间、双手盆设计,干湿分离,自在从容。

L型厨房,开放式中西厨兼具,肆意挥洒私房厨艺。

【豪奢户型】

看海纯板房A+B户型:236㎡5房4厅4卫

【豪奢户型】

看海纯板房B+C户型:237㎡5房4厅4卫

🏡✅三亚 半山首府

🏡☎️半山首府售楼处电话:400-033-1899转接2222【营销中心】

🏡☎️半山首府售楼中心电话:400-033-1899转接2222【已认证】

🏡✅户型图丨项目介绍丨最新房源丨周边配套丨售楼处地址丨样板间丨备案价

声明:本文由入驻焦点开放平台的作者撰写,除焦点官方账号外,观点仅代表作者本人,不代表焦点立场。