三亚 时分亚龙湾售楼处电话—官方网站-营销中心-楼盘详情-地址-户型图-交房【24H预约热线】—实时动态-最新价格-容积率@销售中心
扫描到手机,新闻随时看
扫一扫,用手机看文章
更加方便分享给朋友
时分亚龙湾
🔱 售楼处电话【已认证】✔️:400-179-0800 🔴
🔱 营销中心电话【已认证】✔️:400-179-0800 🔴
💌温馨提示:本项目采用预约制,前来营销中心请提前拨打400热线电话预约,感谢您的配合!
时分·亚龙湾——臻藏现房

项目地址:三亚市吉阳区动漫路2号
开发商:三亚九龙苗圃开发建设有限公司
占地面积:120亩
容积率:2.1
绿化率:40%
物业费:5.6元/㎡
停车位:1 : 1
产权年限:70年(2017年-2087年)
【三亚城央 繁华兑现】
项目择址三亚主城核心——吉阳区,三亚V字形地域C位,毗邻三亚市府,城市政务、经济、文化汇聚的正脉中心。西接三亚迎宾路CBD和三亚湾,东邻国家海岸海棠湾,南拥天下第一湾亚龙湾,一城三湾醇熟资源聚合,无论是商务通勤还是旅居度假都非常便利。

【 奢装现房 即买即住 】
建筑面积约77平三房一厅一卫
实际使用面积约100平‼
建筑面积约122平三房两厅三卫
实际使用面积150余平

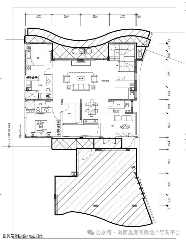
建筑面积约350平空中别墅
实际使用面积近600平
亚龙湾视野高人一等,享绝美景观
含空中花园,阳光房,可做泳池等
时分亚龙湾
🔱 售楼处电话【已认证】✔️:400-179-0800 🔴
🔱 营销中心电话【已认证】✔️:400-179-0800 🔴
💌温馨提示:本项目采用预约制,前来营销中心请提前拨打400热线电话预约,感谢您的配合!
声明:本文由入驻焦点开放平台的作者撰写,除焦点官方账号外,观点仅代表作者本人,不代表焦点立场。
