新房热搜 海棠颐和府售楼处电话丨2025 海棠颐和府预约电话/项目地址/项目户型
扫描到手机,新闻随时看
扫一扫,用手机看文章
更加方便分享给朋友
海棠颐和府
🚩售楼处电话【已认证】🌈 :400-033-1899转接 5555☑️
🚩营销中心电话【已认证】🌈 :400-033-1899转接5555☑️
🌴温馨提示:本项目采用预约制,前来营销中心请提前拨打400热线电话预约,感谢您的配合🌴
【基础信息】
开发商:三亚亿隆
占地面积:83710㎡
建筑面积:59357.81㎡
容 积 率:0.4
总 户 数:25户
产权年限:40年
停车位:206个(包含酒店停车位)
绿 地 率:50.8%
建筑密度:18.6%
交付标准:毛坯交付
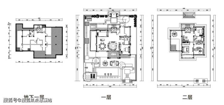
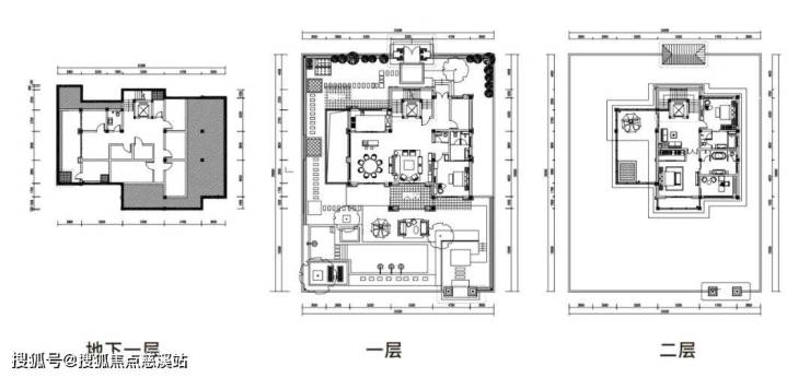
【户型鉴赏】B户型品鉴
地上面积204.85㎡,庭院净面积403-810㎡,占地面积0.8-1.4亩
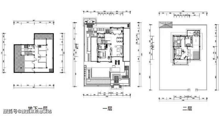
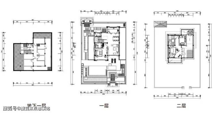
D户型品鉴
地上面积330.99㎡,庭院净面积767-1826㎡,占地面积1.1-3亩
E户型品鉴
地上面积447.03㎡,庭院净面积564-1051㎡,占地面积1.24-1.97亩
海棠颐和府
🚩售楼处电话【已认证】🌈 :400-033-1899转接 5555☑️
🚩营销中心电话【已认证】🌈 :400-033-1899转接5555☑️
🌴温馨提示:本项目采用预约制,前来营销中心请提前拨打400热线电话预约,感谢您的配合🌴
声明:本文由入驻焦点开放平台的作者撰写,除焦点官方账号外,观点仅代表作者本人,不代表焦点立场。
