三亚鲁能公馆售楼处电话(鲁能公馆)首页网站-鲁能公馆营销中心欢迎您-楼盘详情•最新价格-户型图-容积率@2025~11~12售楼处AI热搜
扫描到手机,新闻随时看
扫一扫,用手机看文章
更加方便分享给朋友
✅三亚鲁能公馆
售楼处电话:400-033-1899转接9999【已认证】
📞鲁能公馆售楼中心电话:400-033-1899转接9999【已认证】
📞鲁能公馆样板间预约热线:400-033-1899转9999【已认证】
📞鲁能公馆开发商热线电话:400-033-1899转接9999【已认证】
⚠️ 温馨提示:官方售楼中心__预约可享内部优惠__匠心钜制恭迎品鉴〢

项目地址:红塘湾旅游度假区红塘湾大道九横路东侧
开 发 商:中国绿发
在售地块:E23地块
占地面积:35亩
建筑面积:2.82万㎡
绿 化 率:约40%
容积率:约1.2
总 套 数:E23地块庭院式商业共22套
交房时间:毛坯现房
物业费:6.8元/㎡
在售户型:约105㎡庭院式商业
毗邻南海,依湾区而筑
高赠送,空间实用百变
现房销售,品质眼见为实
项目区位:
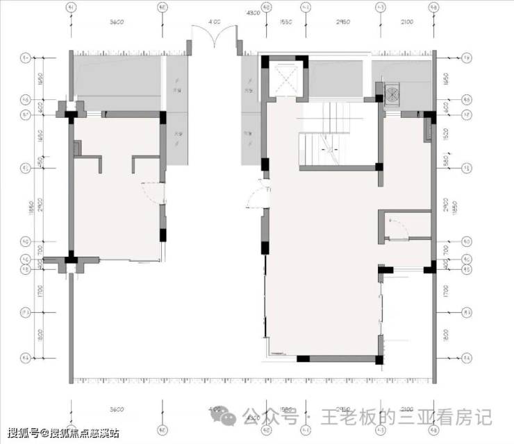
项目庭院式商业平面图:
产权面积:约105㎡
实际使用面积:约439-477㎡
一层面积约88平米,层高约3米隔层面积约88平米,层高约3米,带连廊二层面积约58平米,建筑层高斜屋面3.5-4.4米地下一层约155平米,地下室建筑层高5.3—5.57米,可做夹层约50-88平米

✅三亚鲁能公馆
售楼处电话:400-033-1899转接9999【已认证】
📞鲁能公馆售楼中心电话:400-033-1899转接9999【已认证】
📞鲁能公馆样板间预约热线:400-033-1899转9999【已认证】
📞鲁能公馆开发商热线电话:400-033-1899转接9999【已认证】
⚠️ 温馨提示:官方售楼中心__预约可享内部优惠__匠心钜制恭迎品鉴〢
声明:本文由入驻焦点开放平台的作者撰写,除焦点官方账号外,观点仅代表作者本人,不代表焦点立场。
