#2025权威出品#太原金地阅千峯售楼处发布@金地阅千峯售楼处热线

搜狐焦点慈溪站 2025-09-06 10:19:03
用手机看
扫描到手机,新闻随时看

扫一扫,用手机看文章
更加方便分享给朋友

太原金地·阅千峯 售楼处电话:400-100-1299转5999 网上售楼中心〢欢迎来电咨询〢1v1销售专业讲解

太原金地·阅千峯

售楼处电话:400-100-1299转5999

网上售楼中心〢欢迎来电咨询〢1v1销售专业讲解

生活就是建筑,建筑是生活的镜子。

——贝聿铭

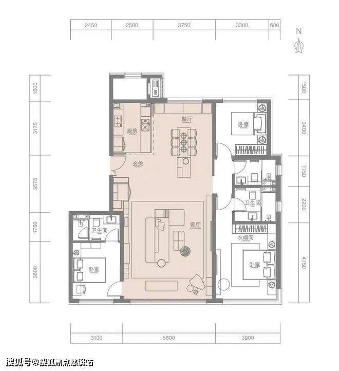
心境之宽,源于远见;居所之宽,成于空间。仅用户型面积的大小来衡量豪宅,无疑是流于表面,真正意义上的豪宅,应该是空间尺度与居住体验的平衡。金地·阅千峯作为金地全新TOP级峯系作品,以约160㎡匠心独到的宽幕健康三居,让空间设计回归生活,造就以人和生活为中心的居家场景,启幕峯上人生。

(示意图)

居住空间的舒适与否,很大程度上与采光效果有关。金地·阅千峯建面约160㎡宽幕健康三居,打造市场少见的约12.6米南向大面宽,户型采用阳面无墙垛设计打造落地窗超高窗墙比,选用整版无隔断三玻两腔高隔音玻璃,奢享通透采光,优雅外部观感与宽境内部视野兼具。

(160㎡户型图)

人居的每一处空间,都是一种生活的表达。户型设计不仅传达着空间之美,更为业主营造着全心的舒居方式,为美好生活注入全新生命力。

(160㎡户型图)

LDKB一体空间:将客厅、餐厅、厨房、阳台空间融合串联,打破空间功能界限,提高空间利用率,可根据需求打造功能空间。

奢阔双厅:客厅南向约5.6米大面宽,阳光清风相伴。同级罕见明窗餐厅打造,南北通透,可摆放岛台、打造储物空间。

玄关储物空间:玄关区域可打造“800库”网红储藏间,创新玄关收纳,满足多品类大件储物功能,提升收纳容量空间。

全景采光:南向全景落地窗,全明餐厅,北向宽幅玻璃。

(效果图)

最好的爱,是陪伴与关怀。家是一家人的居所,理应呵护每一位居者感受。建面约160㎡宽幕健康三居全套房设计,构建全龄式奢居体验。

(160㎡户型图)

奢阔主卧:套房式主卧配备衣帽间、独立卫生间,可摆放梳妆台等功能家具。

舒阔次卧:卧室均好性设计约17㎡、13㎡双次卧套房式,均配备独立卫生间,朗阔空间呵护每位居者感受。

270°宽幕观景落地窗:最大化的实现景观观赏视野及采光效果,选用三玻两腔高隔音玻璃选用著立城央美学封面。

静谧空间:卧室间相隔客厅、卫生间,提升私密性,全屋打造隔音地垫设施,卫生间同层排水系统,家人之间互不干扰,夜间休憩更静谧。

(示意图)

精研高净值人群生活所需,金地·阅千峯从健康、水、空间等角度出发,打造功能性厨房、智能奢适卫浴。

(160㎡户型图)

功能性厨房:约8.5㎡明窗厨房中西厨设计,可根据需求打造为开放式厨房,提升整个空间通透性,配备厨余垃圾粉碎器、抽拉式水龙头,守护健康生活。入户前置过滤、中央净水系统有效过滤杂质,家庭用水更放心。

智能卫浴:卫生间均为干湿分离设计,主卧卫生间可打造储物空间、浴缸。均配备壁挂智能马桶、恒温花洒等智能细节,围合尊崇私密体验,同层排水系统呵护家人静谧睡眠。

面向未来的居所,是不断生长的空间语言,基于时代的演进而迭代自新,成为经得起时间推敲的作品。金地·阅千峯全系产品配备铸铝入户门、全系大地砖通铺、全屋美缝、壁纸,精筑美学典范。

(示意图)

全屋配备全热交换双向流新风系统、vrv多联中央空调,保证室内空气时刻清新,让舒适布满家的每个角落。在社区出入归家动线上,安装智能管控系统,业主可通过人脸识别、刷卡、二维码等方式,实现归家动线无接触,健康预防每一步。

一所人居所诠释的不仅是匠心工艺,于城市而言,代表着不可复制的尊崇生活封面;于每一个家庭而言,代表着理想幸福的居家生活。金地·阅千峯以臻诚匠心为人居倾注灵魂,打造TOP级峯系作品,精筑峯上生活,让既定的空间和格局拥有承载生活的温度,美好常新。

太原金地·阅千峯售楼处电话:400-100-1299转5999网上售楼中心〢欢迎来电咨询〢1v1销售专业讲解

声明:本文由入驻焦点开放平台的作者撰写,除焦点官方账号外,观点仅代表作者本人,不代表焦点立场。