海口观澜湖星光里售楼处电话_预约看房_海口观澜湖星光里楼盘详情-2025最新房价-户型图
搜狐焦点慈溪站 2025-10-18 14:19:49
用手机看
扫描到手机,新闻随时看
扫一扫,用手机看文章
更加方便分享给朋友
➢海口观澜湖星光里售楼处400-033-1899转接5888 ➢海口观澜湖星光里售楼处400-033-1899转接5888
➢海口观澜湖星光里售楼处400-033-1899转接5888
➢海口观澜湖星光里售楼处400-033-1899转接5888
➢来电可了解楼盘最新动态、房价、在售房源、交楼时间等信息!让你买的放心,住的舒心!
基本资料
总用地面积: 约 28333.64 ㎡
总建筑面积:约 43992.62 ㎡
容积率: 1.2
绿地率: 26.8%
停车位: 340 个
总户数: 298 套(洋房 274 套,叠墅 24套)
产品:纯板式花园洋房
性质:70年产权住宅
项目区位

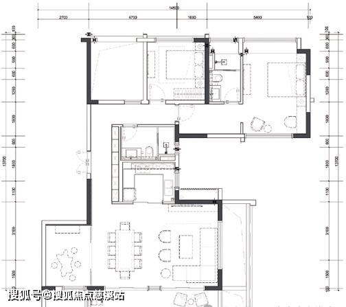
洋房户型




叠墅户型
下叠户型


➢海口观澜湖星光里售楼处400-033-1899转接5888
➢海口观澜湖星光里售楼处400-033-1899转接5888
声明:本文由入驻焦点开放平台的作者撰写,除焦点官方账号外,观点仅代表作者本人,不代表焦点立场。
