保盛济南府售楼处电话→保盛济南府售楼中心电话→楼盘百科→保盛济南府首页网站→楼盘百科→首页网站→24小时热线电话
扫描到手机,新闻随时看
扫一扫,用手机看文章
更加方便分享给朋友
保盛济南府
售楼处电话:400-100-1299转5888
网上售楼中心〢欢迎来电咨询〢1v1销售专业讲解
项目占地面积5.6万平,建筑面积:11.3万方
楼栋:7栋4-10层的洋房、12栋叠拼别
绿化率:30%
物业公司:煜盛物业
物业费:洋房2.36元/平叠拼3.15元/平
车位配比:1:2.2
总户数:298户
楼栋数:19栋
参考价格:待定
装修标准:毛坯
容积率:1.2
层高:3.15米
公摊:洋房11-15%
交房时间:2026年12月
户型面积:
洋房:一楼带院40平左右,顶层带露台80-200平左右
198平中户四室两厅两卫
200平边户四室两厅两
叠拼
面积:270-390平
层高: 首层3.3,其他3.15米
类型: 上下两叠,总高4层
上叠 带阁楼 +露台 , 露台100平以上
下叠 南北院子或者南院 ,南院50平左右,南北双院90平左右
楼梯: 预留电梯井
·建面约270-380㎡大境揽山叠墅
【项目定位】千年济南府 千万旅游路【项目地址】济南市旅游路与虎山西路交汇处东行300米
[位置]
客户经理:【区位图】
【项目总括】保盛·济南府,旅游路沿线绝版的低密时代豪宅。占地约5.6万㎡,容积率约1.2,规划12栋叠拼别墅和7栋4-10F纯洋房,共计298套。上叠享有全景露天,下叠最大赠送一亩庭院,济南首个唐宫御苑式皇家园林,首创“济南府新八景”园林规划。
【核芯价值】💎千载贵脉💎时代向东,济南“东强”战略纵深,旅游路绝版地段,济南东顶级豪宅圈,稀贵不言而喻。🌲绝版生态🌲群山两河一湖稀贵生态,玉岭山以东、北靠虎山、南望约8000余亩蟠龙山森林公园,依山而建,群山环抱,紧邻约1200亩狼猫山水库。🏔太师椅格局🏔彩石自古就是风水宝位,周边山体呈四相之分,项目东侧蟠龙路,西侧虎山西路,背靠玉岭山,呈左青龙右白虎后玄武格局;与玉岭山、北寺山、虎山、蟠龙山呈群山合围之势。⭐纯粹圈层⭐约1.2超低容积率,建面约190㎡-380㎡,谨呈298席传世藏品。🛍优质配套🛍周边一站式国际配套汇聚,超算中心、海归小镇、济南国际赛马场一路之隔,紧邻全球商品贸易港,近靠济南新航外国语私立优教资源。
【园林景观】·首个唐宫御苑式皇家园林以大明宫丹凤门为原型,长约46米,高约12.6米显赫门楣盛唐仪制演绎归家仪式感。·一轴五进八巷十景大明宫“三朝五门制”一条归家轴,“前宫后苑雅苑”五进归家礼,八重景观团,十大雅事集。·山水造园约18米奢品水台;约8米飞流悬瀑;社交会客厅,约160㎡自然水系,池、溪、潭、瀑四种水系景观。
🦋美学立面:玻璃幕墙搭配大面积金属铝板,以极简优雅的线条同步世界前沿审美
🌸产品规格:12栋叠拼别墅和7栋4-10F纯洋房
🌈超大空间:建面约190-380㎡碾压级空间尺度,纯粹顶奢住区
👀270°环幕:270°环幕瞰山,奢尺环幕全景客厅,视野尺度双重突破
✨星空露台:空中花园里,看书品酒、孩童游乐园、太太后花园,陶醉日常生活
🏡诗意庭院:私家围合式庭院,好友轰趴、家庭烧烤、叙事喝茶演绎生活
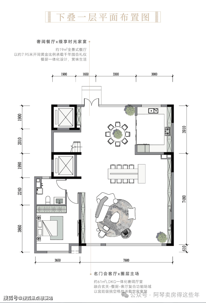
【户型解析】
建面约270-380㎡大境揽山叠墅半山隐庐:建筑面积约375㎡下叠


建面约270-380㎡大境揽山叠墅观山映月:建筑面积约275㎡上叠


建面约190-260㎡巨幕观山洋房观山洋房:建筑面积约198㎡

观山洋房:建筑面积约200㎡

1.采用金属漆+铝板,香槟金与深咖色的撞色搭配,让建筑如唐代鎏金器皿般华贵。其中金属漆采用航空级氟碳喷涂工艺,历经 3000 小时耐候测试。堪比航天级的建筑品质,可见其中匠心。
2.
由镀膜三层 LOW-E 玻璃打造的玻璃幕墙上,蟠龙山、虎山的苍翠欲滴与天光云影交相辉映
声明:本文由入驻焦点开放平台的作者撰写,除焦点官方账号外,观点仅代表作者本人,不代表焦点立场。
