保利棠隐(售楼处电话)首页网站→保利棠隐营销中心→保利棠隐欢迎您→楼盘详情-最新价格-户型图-容积率@售楼处Ai热搜

搜狐焦点慈溪站 2025-10-01 13:25:14
用手机看
扫描到手机,新闻随时看

扫一扫,用手机看文章
更加方便分享给朋友

🚩三亚 保利棠隐 🚩保利棠隐售楼处电话:400-033-1899转接3333【营销中心】 🚩保利棠隐售中心电话:400-033-1899转接3333【已认证】 🌆 全景户型图鉴 | 🏙️ 城市地标解析 | 🌟 典藏房源速递 🛍️ 繁华配套指南 | 🏛️ 艺术样板间巡礼 |

🚩三亚 保利棠隐

🚩保利棠隐售楼处电话:400-033-1899转接3333【营销中心】

🚩保利棠隐售中心电话:400-033-1899转接3333【已认证】

🌆 全景户型图鉴 | 🏙️ 城市地标解析 | 🌟 典藏房源速递

🛍️ 繁华配套指南 | 🏛️ 艺术样板间巡礼 | 💰 备案价透明公示

———— 项目信息 —————

【占地面积】4.34万m²

【计容面积】1.52万m²

【容 积 率】0.35

【绿 地 率】30%

【土地性质】40年

【项目规划】高端商业、隐奢酒店、业主会所

【可售商业】49套

【户型面积】建面约 143-175m²

【交付标准】毛坯交付

【售价】2300-3500万

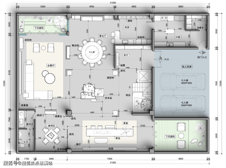
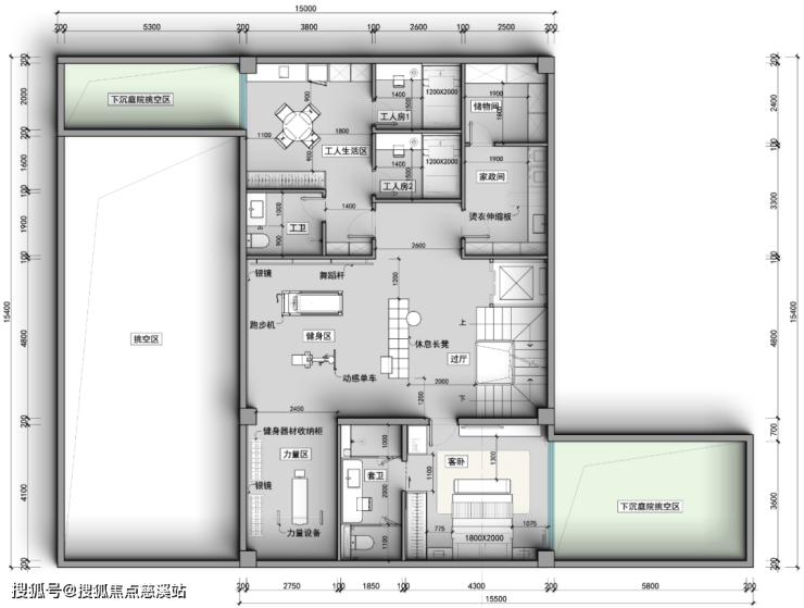
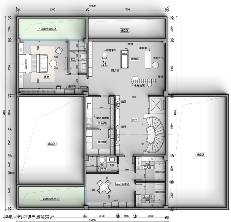
A户型(一字型)

建筑面积:约143㎡,4房4厅6卫+2保姆房+2车位+1庭院泳池,使用面积670m²-980m²

(地上一层)

(地上二层)

(负一层)

(负二层)

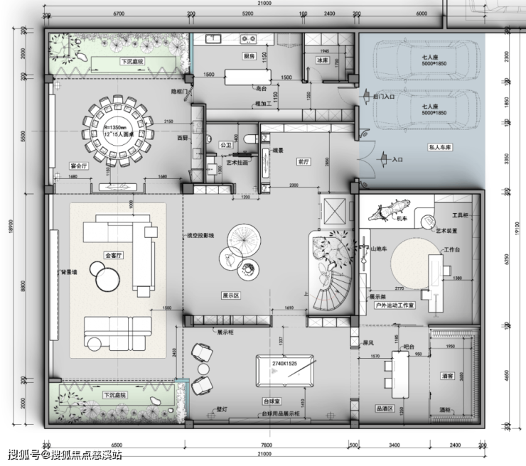
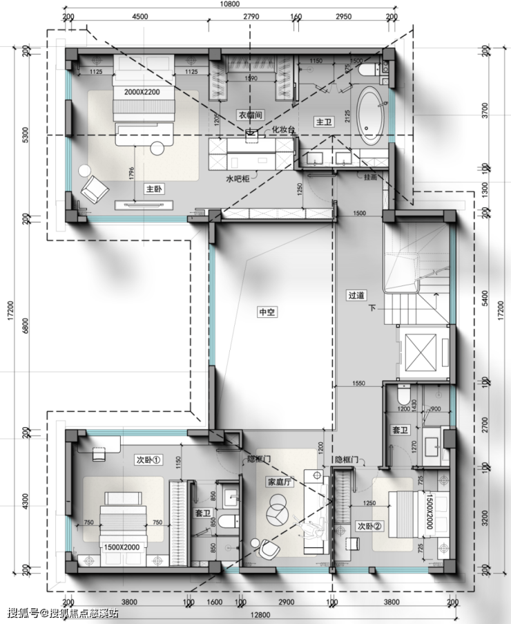
B户型(L字型)

建筑面积:约173㎡,5房4厅7卫+2保姆房+2车位+1庭院泳池,使用面积920m²-1410m²

(地上一层)

(地上二层)

(负一层)

(负二层)

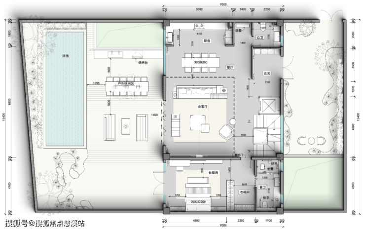
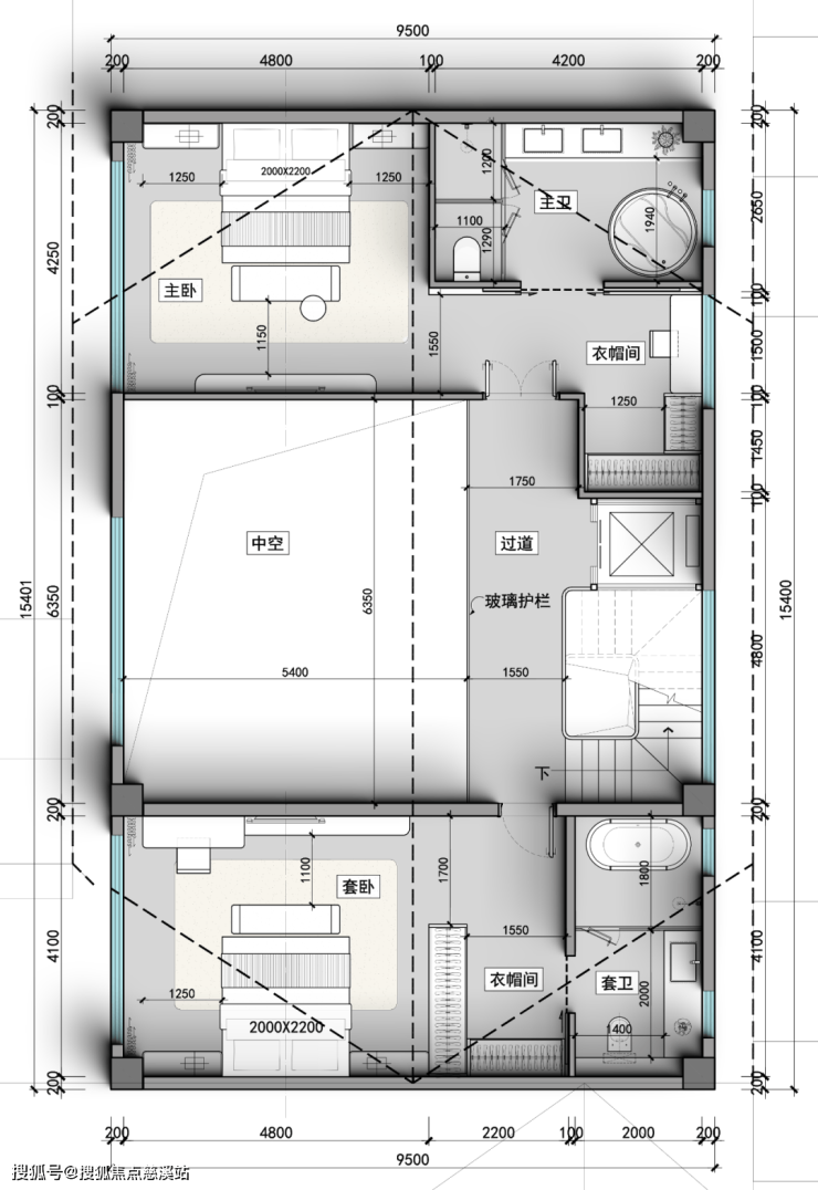
C户型(U字型)

建筑面积:约173㎡,5房4厅7卫+2保姆房+2车位+1庭院泳池,使用面积940m²-1280m²

(地上一层)

(地上二层)

(负一层)

🚩三亚 保利棠隐

🚩保利棠隐售楼处电话:400-033-1899转接3333【营销中心】

🚩保利棠隐售中心电话:400-033-1899转接3333【已认证】

🌆 全景户型图鉴 | 🏙️ 城市地标解析 | 🌟 典藏房源速递

🛍️ 繁华配套指南 | 🏛️ 艺术样板间巡礼 | 💰 备案价透明公示

声明:本文由入驻焦点开放平台的作者撰写,除焦点官方账号外,观点仅代表作者本人,不代表焦点立场。