【光大天骄国际】最新首页【光大天骄国际售楼处电话】房价→电话→户型→楼盘详情@售楼处@百度Ai热搜
扫描到手机,新闻随时看
扫一扫,用手机看文章
更加方便分享给朋友
🏡✅【东莞】光大天骄国际
🏡✅光大天骄国际售楼处电话☎️400-033-1899分机号2222【售楼中心】【已认证】
🏡✅光大天骄国际营销中心电话📞400-033-1899分机号2222【置业顾问】【已认证】
🏡✅楼盘详情含开盘消息、交房时间、楼盘详情、房价、户型、详情、得房率、售楼处地址、首页网站、销售中心、楼盘地址、户型图、交通、备案价、项目配套、营销中心、周边配套等详情咨询。

【天骄国际】地址:东莞市南城街道宏六路与宏七路交汇处(南城国际商务区,毗邻CBD核心区)
核心区位:紧邻东莞黄旗山城市公园,属东城核心区,地段稀缺性高。
交通便利:靠近地铁1号线(建设中)旗峰公园站,周边主干道如莞长路、旗峰路等,自驾便捷。
城市界面:属东莞传统豪宅区,周边以低密度住宅为主,环境静谧。
项目核心卖点
稀缺山景资源:部分户型可直瞰黄旗山,景观优势明显。
商业配套:自带社区商业,步行可达星河城、万达广场(东城店)、国贸中心等大型综合体。
学校:周边有东城中心小学、东城实验中学等优质公立学校(具体学区以教育局划分为准)。
医疗:临近东莞市人民医院、东华医院等三甲医院。
休闲配套:黄旗山城市公园(天然氧吧,健身休闲首选);临近虎英湖、峰景高尔夫球场等高端休闲场所。

独特优势
地段不可复制性:黄旗山旁新房供应极少,光大天骄国际属稀缺项目。
交通+商业+教育+医疗全能配套:周边成熟度远超南城或松山湖的新兴板块。
高端圈层:东城传统富人区,居住人群以本地改善家庭、企业主为主。
地段发展前景
城市核心区保值性强:东莞城区土地稀缺,东城配套成熟,房价抗跌。
地铁1号线(在建)加持:未来通车后进一步提升通勤便利性。
政策倾斜:东莞中心城区“一心两轴”规划(黄旗山为生态核心),长期价值看好。


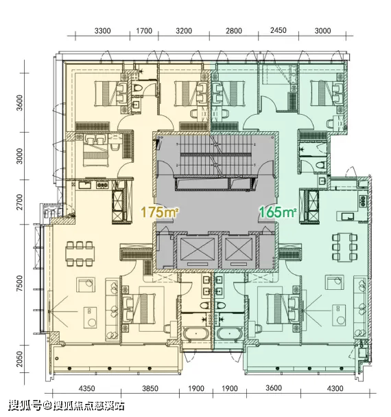
项目一期户型面积涵盖建面约163/175㎡、253/283㎡、350㎡全景抱山大平层。

165㎡4房2卫
计容面积约163.05㎡,公摊面积约34.33㎡,套内面积约128.72㎡,得房率约78.9%,赠送面积约14.64㎡(半阳台约8.10㎡+飘窗约6.54㎡),使用面积(套内+赠送)合计约143.36㎡,使用率约88%(含过道空间12.14㎡,扣除过道使用率约80%)。
175㎡4房2卫
计容面积约176.06㎡,公摊面积约37.06㎡,套内面积约139.0㎡,得房率约79.0%,赠送面积约21.97㎡(半阳台约8.41㎡+飘窗约13.56㎡),使用面积(套内+赠送)合计约160.97㎡,使用率约91%(含过道空间12.79㎡,扣除过道使用率约84%)。

250㎡4房3卫
计容面积约253.97㎡,公摊面积约52.84㎡,套内面积约201.13㎡,得房率约79.2%,赠送面积约32.71㎡(半阳台约10.92㎡+飘窗约8.79㎡+电梯前室约13.0㎡),使用面积(套内+赠送)合计约233.84㎡,使用率约92%。
280㎡4房3卫
计容面积约284.45㎡,公摊面积约58.99㎡,套内面积约225.46㎡,得房率约79.3%,赠送面积约42.16㎡(半阳台约12.36㎡+飘窗约16.80㎡+电梯前室约13.0㎡),使用面积(套内+赠送)合计约267.62㎡,使用率约94%。

🏡✅【东莞】光大天骄国际
🏡✅光大天骄国际售楼处电话☎️400-033-1899分机号2222【售楼中心】【已认证】
🏡✅光大天骄国际营销中心电话📞400-033-1899分机号2222【置业顾问】【已认证】
🏡✅楼盘详情含开盘消息、交房时间、楼盘详情、房价、户型、详情、得房率、售楼处地址、首页网站、销售中心、楼盘地址、户型图、交通、备案价、项目配套、营销中心、周边配套等详情咨询。
声明:本文由入驻焦点开放平台的作者撰写,除焦点官方账号外,观点仅代表作者本人,不代表焦点立场。
