金地水西印(售楼处)首页网站-天津金地水西印营销中心-金地水西印欢迎您-楼盘详情-最新价格-户型图-容积率@售楼处
扫描到手机,新闻随时看
扫一扫,用手机看文章
更加方便分享给朋友
天津金地水西印
售楼处电话:400-100-1299转5999
网上售楼中心〢欢迎来电咨询〢1v1销售专业讲解
金地·水西印二期 耀目新品
复康路主轴 · 水西叠墅 · 宽幕洋房
—— 城市再墅信仰 ——
建面约134-178㎡水西叠墅
建面约115-173㎡ 宽幕洋房
城市改善 为何选水西❓
水西板块,环内最后的生态宜居住区
▪约2100亩水西公园,是天津市内最大的湿地公园,稀缺生态资源难以复制;
▪继水上、梅江开发完毕后,水西板块是环内仅有的未开发完大型生态生活区,此后难以再得。
⭐复康路快速路直达都会核心区
▪水西板块占据快速路与复康路交口西北侧的黄金门口,内外通达,保证市区核心的血脉连接;
▪复康路-中环线一线横贯联通水西生态版块、华苑高新区、水上奥体版块、天南大学府区、五大道风情区、天津文化中心、沿海河高端住宅带等主要城市坐标点,汇聚了天津都会最核心的城市配套及商圈。
⭐副中心规划+城市级配套,水西未来可期
▪环内五大副中心之一,承载天津未来15年建设重心所在,水西副中心城市配套逐步兑现;
▪城市资源高度集中,汇聚文洁路商业中心、一中心、寿康之家、美术馆、画院、作家协会等顶级城市配套,繁华水西未来可期。
置业水西 为何选水西南❓
⭐重量配套集中落地水西南区
▪水西南区与南开城市中心融为一体,重量级城市配套均落地水西南区,发展较水西北区更为醇熟。
⭐水西南区发展前景好于北区
▪水西南区规划文洁路商务商业发展轴、保山道生活发展轴两条核心主轴,未来前景更优;
▪契合板块产城融合定位的创新型活力服务中心也在水西南区。
置业水西南区 必选水西印
⭐水西印雄踞水西南区中心点:水西南区背靠水西公园,接驳南开区,是整个水西板块的价值核心;水西印地处水西南区中心节点,可以说,真正坐享水西南区的发展红利与价值利好。
⭐紧邻复康路的城市价值占位:水西印紧邻复康路-中环线一线,汇聚和平、南开、河西顶级城市价值核心,坐享天津最核心的都会资源。
⭐全市唯一的生态都会生活圈:水西顶级生态场景+复康路顶级都会场景,构筑水西印全城仅有的生态都会生活圈。
⭐水西南区低密产品最后的机会:水西南区近期出让的H地块,容积率为2.0,可判断,板块已告别低密度产品;且就目前已经公布的信息,已经没有地块可以规划出低密产品。
二期耀目新品 终极改善之作
复合型低密墅区 水西绝版
▪金地·水西印二期,以水西南区最后的低密住区,营造低密生活之绝响,错过难再得。
▪咫尺复康路主轴,同享南开醇熟配套,串联和平、南开、河西交通脉络,咫尺繁华。
▪规划叠墅、洋房、商业、会所及南北双公园等复合业态,构筑板块唯一的步行生活圈。
▪金地TOP系产品,承袭金地豪宅血脉,每一席皆标杆。

第三代叠墅 焕新当代墅居
▪【稀缺价值】
建面约134-178㎡水西叠墅,收藏级城市恒产,水西难以再得。
▪【产品价值】
第三代叠墅,当代高定风格,去风格化设计更符合时代审美。

▪【空间价值】
LDK一体通厅,奢阔尺度横厅,户内预留独立电梯井,南向宽境采光,大平层的面宽尺度与叠墅的立体空间完美融合;
超标准层高,首层约3.4米,二层约3米,宽厅约6.4米超高挑空;
独门阔尺庭院,下叠最大院落近100㎡,上叠专属入户平台,超高附加体验,让叠墅生活全面独栋化。
墅区宽幕洋房 水西人居标杆
▪【产品价值】
建面约115-173㎡宽幕洋房,承袭一期的设计理念和产品水准,拥有更大的产品区间。
【尺度价值】
平墅级空间格局,LDK一体空间,南向三面宽,约5-8.1米横厅,超广角视野,豪华主卧套房,独立玄关三重入户收纳等,带来体验感与奢适度的全面跃级。

▪【附加价值】
首层赠送私家庭院,顶层赠送阳光阁楼。
▪【圈层价值】
水西低密板块,高端墅区洋房,同享别墅圈层,客群更为高阶、纯粹。
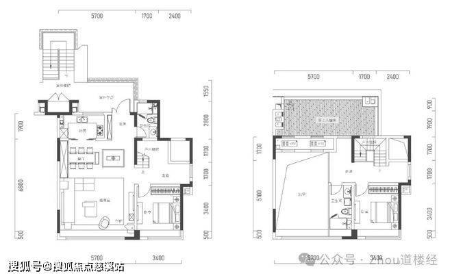
宽境舒居|约115㎡洋房|三室两厅两卫
约5米宽厅尺度,一梯两户,单价约2.5-2.8万/㎡,板块内唯一总价段280-320万左右改善户型。一楼私享约50㎡阔尺庭院,具体价格案场咨询。
悦景观邸|约131㎡洋房|三室两厅两卫
一期爆款户型,约83%超高得房率,单价约2.6-2.9万/㎡,总价约330-370万。顶楼私享阁楼,一楼附带约55㎡阔尺庭院,具体价格案场咨询。
光幕奢域|约143㎡洋房|三室两厅两卫
户型设计全面升级,可实现厨房、餐厅、客厅一体化通厅,互动性与空间感更胜以往,单价约2.9-3.1万/㎡,总价约410-430万。顶楼私享阁楼,一楼附带约60㎡阔尺院落,具体价格案场咨询。
极境平墅|约173㎡洋房|三室两厅两卫
坐落社区中轴C位,楼王景观视野,单价约3.2-3.3万/㎡,总价约545-570万。顶楼尊享阁楼,一楼私享约70㎡阔尺庭院,具体价格案场咨询。
悦墅|约134㎡上叠|两室两厅两卫
单价约3.6-3.8万/㎡,总价约470-500万,具体价格案场咨询。
和墅|约143㎡下叠|三室两厅两卫
单价约4.4-4.7万/㎡,总价约620-660万,具体价格案场咨询。
云 墅|约159㎡上叠|两室两厅两卫
单价约3.5-3.9万/㎡,总价约550-610万,具体价格案场咨询。
境 墅|约178㎡下叠|三室两厅两卫
单价约4.5-4.9万/㎡,总价约790-860万,具体价格案场咨询。
了解此项目,联系老周团队。
天津金地水西印售楼处电话:400-100-1299转5999网上售楼中心〢欢迎来电咨询〢1v1销售专业讲解
声明:本文由入驻焦点开放平台的作者撰写,除焦点官方账号外,观点仅代表作者本人,不代表焦点立场。
