三亚天英观海湾售楼处电话_预约看房_三亚天英观海湾楼盘详情-2025最新房价-户型图
扫描到手机,新闻随时看
扫一扫,用手机看文章
更加方便分享给朋友
➢三亚天英观海湾售楼处400-033-1899转接5888
➢三亚天英观海湾售楼处400-033-1899转接5888
➢来电可了解楼盘最新动态、房价、在售房源、交楼时间等信息!让你买的放心,住的舒心!
中国-清水湾-天英观海湾项目
北纬18°山海私境 | 板式人居典范

【开发商】:天英集团
【总用地面积】:34635 ㎡
【总建筑面积】: 105081.68㎡
【容积率】:2.0
【绿地率】:40%
【总栋楼】:6栋
【规划户数】:608户
【标准层高】:3米
【户型区间】:建面约107-125㎡板式山海人居典范
【建筑外观】:现代简约
【装修状况】精装修
【停车位】:686
【梯户比】一梯两户
【产权年限】:70年

◎ 品质体验 | 十分钟车程,畅享度假级配套
项目不仅坐拥本地烟火气息,更可快速接驳清水湾中段、西段及黎安港的优质旅游度假资源,十分钟车程内即可享受高端酒店、游乐设施与艺术文化场所,真正实现“日常居住便利与假日品质体验”二者兼得。

◎项目周边醇熟配套
缤纷商业:新村码头、集贸市场、海鲜码头市场、新村夜市、疍家码头美食街、雅都荟商业中心、军田农贸市场、雅悦城(规划中)、瀚海美食街、湖畔商业街等

游乐配套:水上运动中心、海上艺术中心、国际游艇小镇、疍家文旅小镇、高尔夫球场、海南海洋欢乐世界、红树林湿地公园、南湾猴岛、呆呆岛。



一梯两户,专属归家礼序
独享私密电梯厅,出入之间,彰显大宅气度与尊崇身份。
◎ 全明方正,演绎生活序曲
建面约107-125㎡灵动空间,恪守方正格局与科学动静分区,让家的每一处都井然有序。
◎ 宽境阳台,坐拥无限风光
超大采光面阳台,引清风与暖阳常驻,将山海盛景延揽入室,成为家庭生活的自然延伸。


户型鉴赏
【建面约107㎡, 三室两厅两卫】
◎户型方正:合理规划,空间利用率最大化,居住品质全面提升
◎阔绰宽境:约9.3米奢阔大横厅,LDKB融合大平层豪奢质感
◎奢尚生活:全明户型,专属入户花园,奢阔观景阳台,纵享精彩人生
◎舒适布局:客餐厨等动区,与卧室等静区分离,避免互相干扰

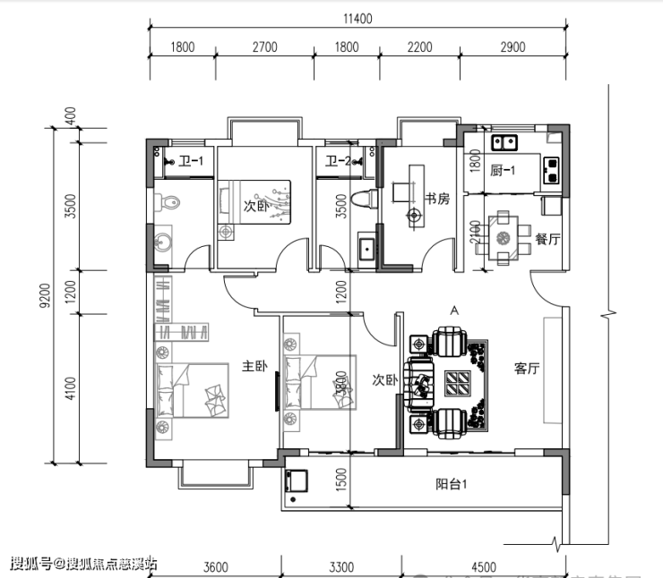
【建面约125㎡, 四室两厅两卫】
◎私密有序:方正全明采光户型,家庭成员空间合理分区,互不干扰
◎无界生活:创新LDKS-B空间模式,客餐厨、书房、阳台联动打通
◎尊崇生活:IMAX巨幕宽厅,通透采光、空间舒展度迭代升级
◎私密栖居:奢阔套房式主卧,整合多元功能,从容起居

➢三亚天英观海湾售楼处400-033-1899转接5888
➢三亚天英观海湾售楼处400-033-1899转接5888
声明:本文由入驻焦点开放平台的作者撰写,除焦点官方账号外,观点仅代表作者本人,不代表焦点立场。
