海棠颐和府售楼处电话|三亚【海棠颐和府】楼盘笔记|房价|价格|怎么样|好不好| 预约通道

搜狐焦点慈溪站 2025-10-14 14:03:54
用手机看
扫描到手机,新闻随时看

扫一扫,用手机看文章
更加方便分享给朋友

🔴 三亚【海棠颐和府】 ✅售楼处电话📞400-033-1899转接7777(专人接听) ✅来电预约登记—售楼处1对1销售专业讲解〢18976713538 ✅温馨提示:网上售楼中心〢预约可享内部优惠〢匠心钜制恭迎品鉴〢 ★★售楼中心——欢迎来电咨询——线上售楼处★★

🔴 三亚【海棠颐和府】

✅售楼处电话📞400-033-1899转接7777(专人接听)

✅来电预约登记—售楼处1对1销售专业讲解〢18976713538

✅温馨提示:网上售楼中心〢预约可享内部优惠〢匠心钜制恭迎品鉴〢

★★售楼中心——欢迎来电咨询——线上售楼处★★

敬献25位全球领军人物

【基础信息】

开发商:三亚亿隆

占地面积:83710㎡

建筑面积:59357.81㎡

容 积 率:0.4

总 户 数:25户

产权年限:40年

停车位:206个(包含酒店停车位)

绿 地 率:50.8%

建筑密度:18.6%

交付标准:毛坯交付

产品售价:3800万—1亿

【项目效果图】

基础信息

开发商:三亚亿隆

占地面积:83,710㎡

建筑面积:59,357.81㎡

容积率:0.4(超低密社区)

总户数:25户

产权年限:40年

停车位:206个(含酒店车位)

绿地率:50.8%

建筑密度:18.6%

交付标准:毛坯交付

产品特点

户型设计:提供204㎡、330㎡、447㎡三种独栋户型,每户配备大面积庭院,庭院净面积从403㎡至1826㎡不等,部分户型占地达1.4-3亩,满足高端居住需求。

空间布局:独栋无对视设计,楼间距超20米,保障隐私与采光;地下双天井设计,解决通风防潮问题,提升空间利用率。

配套资源

地理位置:位于海棠湾核心区域,紧邻301医院,南侧为市政公园,一线临海,周边配套完善。

交通便利:距海南环岛高速入口6.8公里,距海棠湾免税店9.4公里,距三亚凤凰国际机场40公里,交通便捷。

生活配套:周边汇聚30余家超五星酒店(如亚特兰蒂斯、喜来登等)、免税城、高端商业街、国际学校及医疗资源,生活与度假需求一站满足。

项目优势

稀缺性:仅25席独栋产品,定位全球领军人物专属资产,兼具居住与投资价值。

生态价值:北纬18°黄金度假带,年均气温26℃,空气负氧离子含量高,推窗即享鲜氧绿意。

服务增值:接驳温德姆至尊酒店资源,提供五星级管家服务与私密度假体验,提升资产价值。

价格区间:3800万-1亿元/套,具体价格可根据户型与庭院面积浮动。

该项目融合低密生态、稀缺资源与高端配套,适合追求顶级度假体验与资产配置的高端客群。

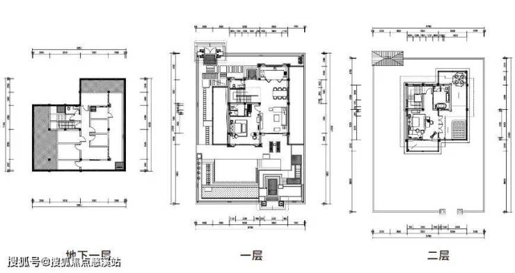
【户型鉴赏】B户型品鉴

地上面积204.85㎡,庭院净面积403-810㎡,占地面积0.8-1.4亩

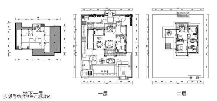
D户型品鉴

地上面积330.99㎡,庭院净面积767-1826㎡,占地面积1.1-3亩

E户型品鉴

地上面积447.03㎡,庭院净面积564-1051㎡,占地面积1.24-1.97亩

🔴 三亚【海棠颐和府】

✅售楼处电话📞400-033-1899转接7777(专人接听)

✅来电预约登记—售楼处1对1销售专业讲解〢18976713538

✅温馨提示:网上售楼中心〢预约可享内部优惠〢匠心钜制恭迎品鉴〢

★★售楼中心——欢迎来电咨询——线上售楼处★★

声明:本文由入驻焦点开放平台的作者撰写,除焦点官方账号外,观点仅代表作者本人,不代表焦点立场。