【营销中心】天津信达格调美古花园售楼处电话→天津信达格调美古花园售楼中心首页网站→天津信达格调美古花园楼盘百科详情→24小时电话→最新发布!
扫描到手机,新闻随时看
扫一扫,用手机看文章
更加方便分享给朋友
➢天津信达格调美古花园售楼处电话400-033-1899转接5888【已认证】
➢天津信达格调美古花园营销中心电话400-033-1899转接5888【官方认证】
➢天津信达格调美古花园样板间预约电话400-033-1899转接5888【售楼中心】
➢来电可了解楼盘最新动态、房价、在售房源、交楼时间等信息!让你买的放心,住的舒心!
信达·格调美古花园
项目基础信息
本项目包含A、B、C三个地块。
A、B地块为住宅、公寓规划,C地块为商业规划,用地面积共计5.2万㎡,总户数1513户。
首开A地块高层产品,A地块信息如下:
【用地面积】:总体2.3万㎡
【建筑面积】:A地块建筑面积70100平米,建筑密度≤40%
【户 数】:600户
【产权年限】:70年产权住宅
【产品规划】:8栋住宅,包含3栋高层、2栋小高、3栋洋房
【户型面积】:高层主力面积75-117㎡、小高层主力面积135㎡、洋房主力面积155/175㎡
【项目价格】:均价76000元/㎡
【交房时间】:2026年12月
【绿 地 率】:≥35%
【容 积 率】:3.03
【精装情况】:高层、小高层精装,洋房毛坯
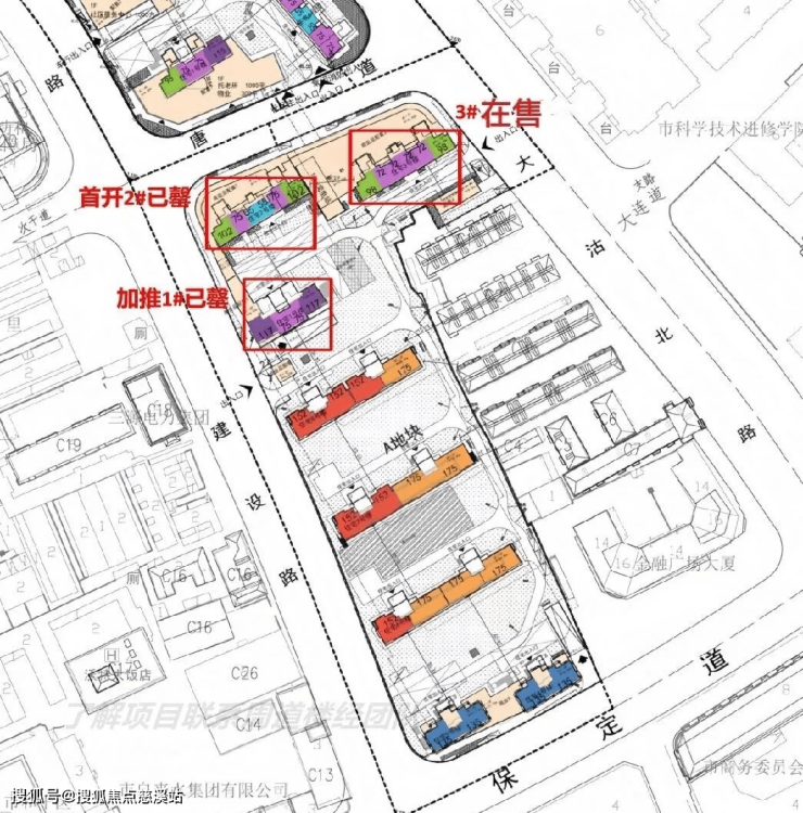
【项目节点】:首开2#售罄,加推1#售罄,3#在售
3号楼产品简介:精装交付
31层到顶,3梯6户,中间四户75平,边户100平


户型鉴赏
二开户型:117㎡、75㎡。(样板间已出)



洋房户型图预加推7#150/170户型


➢天津信达格调美古花园售楼处电话400-033-1899转接5888【已认证】
➢天津信达格调美古花园营销中心电话400-033-1899转接5888【官方认证】
➢天津信达格调美古花园样板间预约电话400-033-1899转接5888【售楼中心】
声明:本文由入驻焦点开放平台的作者撰写,除焦点官方账号外,观点仅代表作者本人,不代表焦点立场。
