2026三亚楼盘资讯:天正三亚湾壹号(售楼处电话)官方网站→天正三亚湾壹号欢迎您→天正三亚湾壹号楼盘详情@售楼处
扫描到手机,新闻随时看
扫一扫,用手机看文章
更加方便分享给朋友
🏡🌈(三亚)天正三亚湾壹号售楼处电话☎️400-179-0800【售楼中心】
🏡🌈天正三亚湾壹号营销中心电话:☎️400-179-0800转【营销中心】
✅温馨提示:网上售楼中心〢预约可享内部优惠〢匠心钜制恭迎品鉴〢
三亚湾,三亚四大核心湾区之一,东起鹿回头,西至天涯海角。海岸线绵延约22公里,拥有亚洲第一椰梦长廊,是三亚开发早、城市资源配套全、商业密度高的度假湾区及老牌富人聚集地,也是全市罕有“国”字号美丽海湾,打造三亚“海上会客厅”。
天正·三亚湾壹号,步行约10分钟即达椰梦长廊,茶余饭后,近享海岸风光。
【开发商】 :三亚永基房地产开发有限公司
【产权年限】:2024-2094年
【占地面积】:56.52亩
【建筑面积】:12.8万平方米
【容积率】 :2.5
【绿化率】 :40%
【总层高】 :16-17层
【层高】 :3.1米
【总户数】 :600户
【停车位】 :879个
【物业服务】:天正物业
【交房时间】:2026年中旬
三亚第九小学三亚湾校区,三亚市公立小学前列,三亚中学、上外附中(2023年最新三亚市中考各学校平均分排名第一,海棠湾的人大附中居第二)等优质教育资源。
约7公里内,享三亚主城优质医疗配套,三亚哈尔滨医科大学鸿森医院、三亚中心医院、解放军425医院等三甲医院。
1公里范围内:羊栏农贸市场、海之眼市集;
2公里范围内:丽禾MOHO、回辉农贸市场;
5公里范围内:龙兴海鲜广场;
8公里范围内:夏日站商业综合体、红树林度假世界、空港百货、大悦城、亿恒主题夜市。
项目实景拍摄
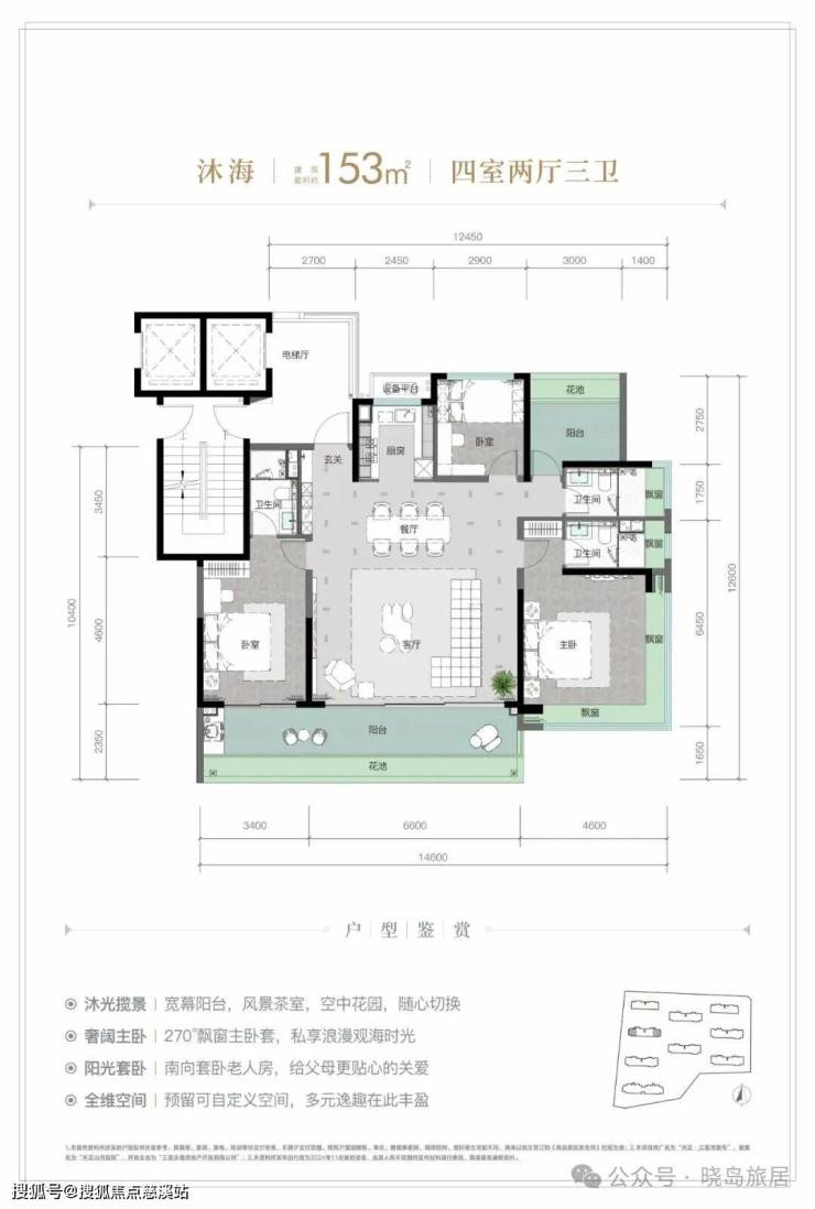
户型面积:
126㎡三室两厅三卫 | 149 ㎡四室两厅三卫
153㎡四室两厅三卫 | 177㎡四室两厅三卫
211 ㎡五室两厅三卫 | 213 ㎡五室两厅三卫
🏡🌈(三亚)天正三亚湾壹号售楼处电话☎️400-179-0800【售楼中心】
🏡🌈天正三亚湾壹号营销中心电话:☎️400-179-0800转【营销中心】
✅温馨提示:网上售楼中心〢预约可享内部优惠〢匠心钜制恭迎品鉴〢
声明:本文由入驻焦点开放平台的作者撰写,除焦点官方账号外,观点仅代表作者本人,不代表焦点立场。
