海口龙昆悦城商铺售楼处电话_预约看房_海口龙昆悦城商铺楼盘详情-2025最新房价-户型图
扫描到手机,新闻随时看
扫一扫,用手机看文章
更加方便分享给朋友
➢海口龙昆悦城商铺售楼处400-033-1899转接5888
➢海口龙昆悦城商铺售楼处400-033-1899转接5888
➢来电可了解楼盘最新动态、房价、在售房源、交楼时间等信息!让你买的放心,住的舒心!
项目:龙昆悦城
地址:海口市琼山区龙昆南路
开发商:海南万隆房屋开发建设有限公司
物业:海南三原华庭物业管理有限公司
龙昆悦城
项目占地:14324.81㎡
容积率:3.94
绿地率:35%
交付标准:毛坯交付(商铺)
建筑风格:现代风格
车位:地面停车位
物业费:1~2层4.9元/㎡/月、3~5层3.5元/㎡/月
产品:底商108-118㎡、商业楼149-689㎡
繁华地 城央铺
50年城熟商圈/龙昆南大润发旁🛒
交通主轴核心商圈/南达高铁站🚝
主城区核心商圈/居住人口密集
好地段/好出租/好租金
旧城改造🏗/城市升级/资产价值潜力大
公摊低⚖/首层商铺买一层用两层
使用率高⏳/可拓展空间大
东、南朝向🏖/无西晒/⏰全天候经营
自贸港建设/💸资产价值潜力巨大
【一层商业】平面
101-105为商业楼,01-16为住宅底商

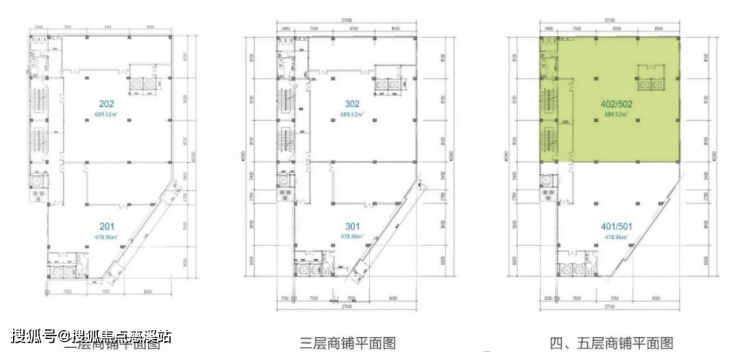
【二~五层商业】平面
均属商业楼,二~四层在售,五层开发商自留

项目商业效果图








➢海口龙昆悦城商铺售楼处400-033-1899转接5888
➢海口龙昆悦城商铺售楼处400-033-1899转接5888
声明:本文由入驻焦点开放平台的作者撰写,除焦点官方账号外,观点仅代表作者本人,不代表焦点立场。
