太原金地阅千峯售楼处电话_来电预约看房_(2025金地阅千峯营销中心)楼盘最新详情-2025最新房价
扫描到手机,新闻随时看
扫一扫,用手机看文章
更加方便分享给朋友
太原金地·阅千峯
售楼处电话:400-100-1299转5999
网上售楼中心〢欢迎来电咨询〢1v1销售专业讲解

跃级视野美好生活沐光而上
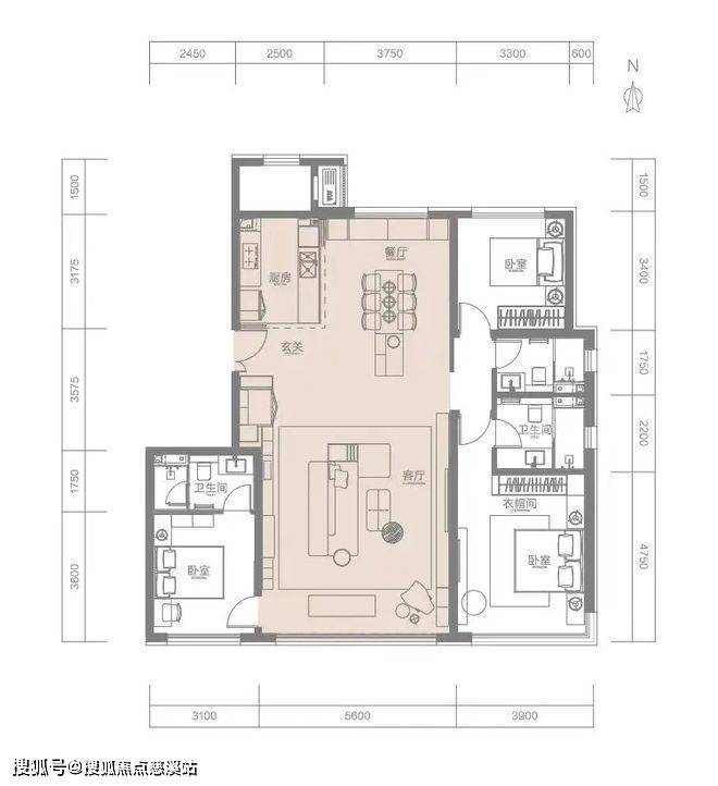
居住空间的舒适与否,很大程度上与采光效果有关。金地·阅千峯建面约158㎡宽幕健康三居,市场少见的约12.6米南向三面宽设计,全户型采用无墙垛设计打造落地窗,选用整版无隔断三玻两腔高隔音玻璃,奢享通透采光。

跃级空间巨幕行政级会客厅
全新迭代的公区设计满足了对生活空间的所有想象,洄游型设计以更多的情感交流为美好生活注入生命力。
LDKB一体空间:将客厅、餐厅、厨房、阳台空间融合串联,打破空间功能界限,提高空间利用率,可根据需求打造功能空间。
跃级奢阔双厅:客厅南向约5.6米大面宽,阳光清风相伴。同级罕见明窗餐厅打造,南北通透,可摆放岛台、打造储物空间。

跃级户型设计围合私密奢适体验
全新一代打造理念,理应呵护每一位居者感受。全套房设计,全龄式奢居体验。
跃级奢阔主卧:套房式主卧配备衣帽区、独立卫生间,可摆放梳妆台等功能家具。
跃级舒阔次卧:卧室均好性设计约17㎡、13㎡双次卧套房式,朗阔空间呵护每位居者感受。
270°宽幕观景落地窗:最大化的实现景观观赏视野及采光效果,选用三玻两腔高隔音玻璃著立城央美学封面。
跃级静谧空间:全套房设计均配备独立卫生间,提升私密性,全屋配备隔音地垫,卫生间同层排水系统,家人之间互不干扰,夜间休憩更静谧。

跃级收纳 空间不止于大
玄关储物空间:玄关区域可打造“800库”网红储藏间,创新玄关收纳,满足多品类大件储物功能,提升收纳容量空间。
跃级功能厨房:选用三段式推拉门设计打造开放式厨房,外接大面积家政间,满足日常生活收纳等多种需求。配备厨余垃圾粉碎器、抽拉式水龙头,守护健康生活。入户前置过滤、中央净水系统有效过滤杂质,家庭用水更放心。
跃级收纳系统:超高空间利用率,全屋收纳空间约等于283.5个20寸行李箱,21台大型SUV尺寸。
跃级美学奢享:太原独家女神镜柜打造,标配镜前灯、化妆百宝箱、小冰箱收纳空间,筑立城央美学空间。

跃级奢装 实用美学艺术
唯有基于时代的演进不断迭代创新,才能成为经得起时间推敲的作品。金地·阅千峯全系产品配备铸铝入户门、全系大地砖通铺、全屋美缝、壁纸,精筑美学典范。
全屋配备全热交换双向流新风系统、vrv多联中央空调,保证室内空气时刻清新,让舒适布满家的每个角落。在社区出入归家动线上,安装智能管控系统,业主可通过人脸识别、刷卡、二维码等方式,实现归家动线无接触,健康预防每一步。
声明:本文由入驻焦点开放平台的作者撰写,除焦点官方账号外,观点仅代表作者本人,不代表焦点立场。
