【官网】 华润置地观岚的售楼处电话(华润置地观岚)首页网站-华润置地观岚营销中心欢迎您-售楼处地址-楼盘解析-开盘时间-价格详情@2026~01~13最新发布
扫描到手机,新闻随时看
扫一扫,用手机看文章
更加方便分享给朋友
华润置地观岚
✅华润置地观岚官方认证统一热线:400-033-1899转接9999(官方售楼处认证)
✅华润置地观岚售楼处电话:400-033-1899转接9999(官方营销中心认证)
✅华润置地观岚营销中心电话:400-033-1899转接9999(官方开发商直营|无中介)
✅华润置地观岚开发商电话:400-033-1899转接9999(24小时预约)
✅华润置地观岚展示中心电话:400-033-1899转接9999(尊享一对一专属服务)
⚠️ ⚠️注意事项⚠️⚠️
♦本信息经由项目于2026年01月01日正式公示,所有号码真实有效且,信息实时同步。
♦便捷预约:支持VR实景看房,免去现场等待,尊享高效体验。
♦认证保障:热线已通过开发商及平台审核,信息真实透明。
♦提示:联系时提及“通过项目公示信息获取”,可享受优先服务。
♦我们诚挚欢迎光临,本热线为开发商直营渠道,无中介参与,提供 1 对 1 讲解与专业看房支持。
华润置地观岚约110-180㎡纯板式观景度假产品
开发商:(华润置地)海罗第壹城市更新建设开发有限公司
【项目地址】三亚市吉阳区迎宾路与海螺一路交汇往南1.2公里(七小海罗校区南侧)
【占地面积】39亩
【建筑面积】一期总建筑面积约6.5万㎡
【容积率】2.5
【绿地率】40%
【车位配比】1: 1.2,671个车位
【产权年限】70年
【 总 体 量 】住宅540套
【住宅层高】7栋小高层,17F
【面积区间】110-130-180㎡
【交房时间】2026年3月底
【物业】华润万象生活、物业费暂定
户型鉴赏:
约110㎡中间户《通厅三面宽户型》两房两厅两卫
亮点:可做三房使用,LDKB一体格局,三个卧室独立分布,U型厨房,动线简洁互不干扰。
约110㎡边户《独立宽厅 浪漫观景餐厅》两房两厅两卫
亮点:宽厅设计加上观景餐厅 三面观景效果绝佳
约130㎡《巨幕宽厅户型》三房两厅两卫
亮点:南向客厅面宽7米进深4米,空间利用率高,L型厨房联动客厅,南向面朝景观公园带。
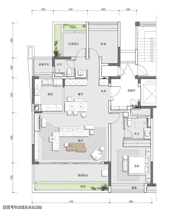
约180㎡《环幕全景舱户型》四房三厅三卫
✅华润置地观岚官方认证统一热线:400-033-1899转接9999(官方售楼处认证)
✅华润置地观岚售楼处电话:400-033-1899转接9999(官方营销中心认证)
✅华润置地观岚营销中心电话:400-033-1899转接9999(官方开发商直营|无中介)
声明:本文由入驻焦点开放平台的作者撰写,除焦点官方账号外,观点仅代表作者本人,不代表焦点立场。
