「三亚」 艺海棠官方售楼处电话〢 艺海棠楼盘详情〢 艺海棠区域配套〢户型图〢 24h热线电话
扫描到手机,新闻随时看
扫一扫,用手机看文章
更加方便分享给朋友
🏡⭐⭐三亚 艺海棠售楼处电话:400-133-5355【营销中心】
☎️☎️艺海棠售楼中心电话:400-133-5355【已认证】
⭐⭐户型图丨项目介绍丨最新房源丨周边配套丨售楼处地址丨样板间丨备案价
国家海岸艺术综合体-艺海棠
项目地址:海南省三亚市海棠区海棠湾海岸大道(海棠湾中心位置)
开发商:海南中海三邦友房地产
物业:艺生活
占地面积:500亩(艺术前区约240亩、商业综合体约130亩、艺术美宅约115亩)
建筑面积:约50万㎡(艺术馆及艺术商业区约30万㎡、艺术美宅建面约17万㎡)
交房时间:现房、准现房
容积率:0.8
绿化率:高于60%
产权年限:70年
总楼栋户数:17栋 共800余户
层高:16层 (3梯4户、1梯1户)
在售房源 :6.7.10.11.12.13#
停车位:超1:1,912个车位
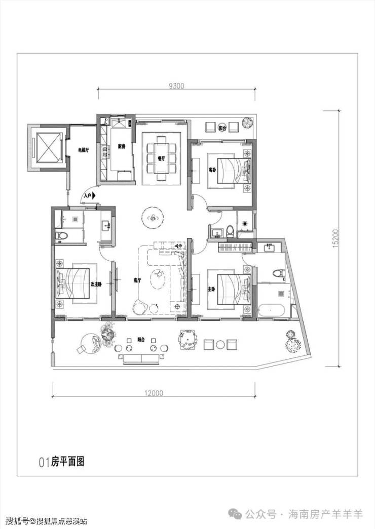
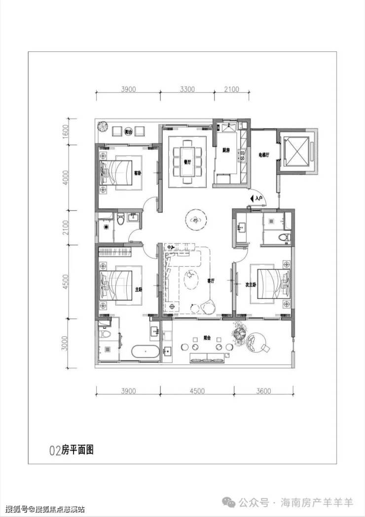
在售户型:95㎡ 两房两厅两卫
168㎡ 三房两厅三卫
220㎡ 五房两厅三卫
物业费:7.8元/㎡
管家式服务业主
三亚艺海棠,落址于“国家海岸”海棠湾的核心腹地,近邻32家国际酒店,亚特兰蒂斯、国际免税城、301医院、人大附中、海中海高尔夫球场等千亿湾区配套。项目是三亚乃至海南自贸港,纯粹以艺术为核心,从“旅游三亚”到“艺术三亚”转型升级4.0版的里程碑项目。
鸟瞰图
艺术美宅:
【主力户型】
建筑面积:约95㎡
户型:两房两厅两卫
建筑面积:约168㎡
户型:三房两厅三卫
建筑面积:约220㎡
户型:五房两厅三卫
🏡⭐⭐三亚 艺海棠售楼处电话:400-133-5355【营销中心】
☎️☎️艺海棠售楼中心电话:400-133-5355【已认证】
⭐⭐户型图丨项目介绍丨最新房源丨周边配套丨售楼处地址丨样板间丨备案价
声明:本文由入驻焦点开放平台的作者撰写,除焦点官方账号外,观点仅代表作者本人,不代表焦点立场。
