保利海晏售楼处-三亚 保利海晏 (2025更新)首页网站- 保利海晏楼盘详情
扫描到手机,新闻随时看
扫一扫,用手机看文章
更加方便分享给朋友
三亚 保利海晏
♐售楼处电话(400-033-1899转8888)◆◆
♐来电预约登记——〢尊享Vip一对一专业置业顾问讲解◆◆
♐郑重承诺:开发商售楼处直销,绝不收取任何费用,中介勿扰!◆◆
♐网上售楼中心〢欢迎来电咨询〢提前预约可享内部优惠〢1v1销售专业讲解!◆◆

项目正是位于三亚海棠湾中的国际医养板块,周边医疗资源密集,为高端旅度客提供重要的医疗康养资源。项目定调热带岛屿风,以其浓郁的热带风情和悠闲自在的度假体验,为人们带来了一种逃离都市喧嚣、回归自然怀抱的惬意感受。
项目占地面积约57885.7㎡,建筑面积约为119173.26㎡, 容积率为1.4,绿化率为40%。共14栋住宅产品,共计554户。共计6个户型:A户型建面约107㎡,B户型建面约137㎡,C户型建面约158㎡,D户型建面约154㎡,E户型建面约199㎡,F户型建面约203㎡。
作为保利体系内首个文旅度假产品,‘晏’字系坐落于三亚海棠湾这片顶级度假胜地。其初衷并非像别墅区那样只是简单切割公共空间划分给住户,而是致力于为住户营造真正的度假生活体验
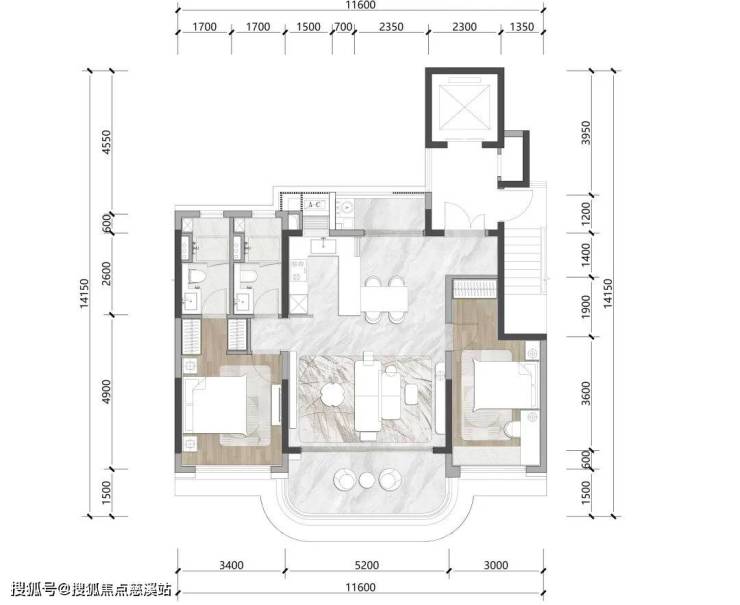
户型规划
设计师从全球范围内汲取灵感,其中迈阿密、迪拜、澳大利亚的度假公寓凭借其独特的风格和先进的理念为设计师提供了宝贵的设计灵感。
建面积约203㎡户型,21.5 m长的270°全景阳台
建面积约199㎡户型,20.1m的面宽,四面宽跑道阳台
建面积约105㎡户型,打破常规105平三房的户型格局
三亚 保利海晏
♐售楼处电话(400-033-1899转8888)◆◆
♐来电预约登记——〢尊享Vip一对一专业置业顾问讲解◆◆
♐郑重承诺:开发商售楼处直销,绝不收取任何费用,中介勿扰!◆◆
♐网上售楼中心〢欢迎来电咨询〢提前预约可享内部优惠〢1v1销售专业讲解!◆◆
声明:本文由入驻焦点开放平台的作者撰写,除焦点官方账号外,观点仅代表作者本人,不代表焦点立场。
