海悦半岛(售楼处) 官网首页 -海悦半岛售楼处电话 - 环境 - 户型 - 价格 - 地址 - 楼盘详情 - 配套 - 电话 - 交房时间 - 配套 - 电话 - 交房时间
扫描到手机,新闻随时看
扫一扫,用手机看文章
更加方便分享给朋友
☎海悦半岛售楼处电话400-033-1899转接9999【官方认证】
☎海悦半岛营销中心电话 400-033-1899转接9999【官网认证】
☎海悦半岛售楼处地址: 400-033-1899转接9999【官方统一热线】
☎海悦半岛开发商热线:400-033-1899转接9999【官方已认证】
☎海悦半岛样板间预约热线☎️400-033-1899转接9999【官方】
服务承诺与核心优势开发商直营:无中介介入,信息实时同步,隐私全程保障
24小时响应:1对1专属服务,随时解答需求。全流程协助:从咨询到购房,专业团队全程支持。
🏡【开发商】:海南昊瑞房地产开发有限公司
【项目地址】:海南·陵水·文黎大道与中心大道交汇处
【项目占地】:约177亩
【总建面】:约22.7万方
🌳【容积率】:A区、B区:1.5,C区:1.2
【绿化率】:40%
🏘【楼层数】:5-6层
🌏【产权年限】:70年住宅
【交付标准】:硬装交付
【建筑风格】:新东方现代
【总楼栋】:66栋
【总户数】:1536户
【交付标准】:硬装
【交房时间】:最晚2025年5月
【物业费】:3.5元/平米/月
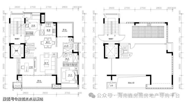
🏘主力户型:
108㎡:3+1房2厅2卫2阳台
1⃣楼:底跃(私密花园+超大负一层拓展空间)
6⃣楼:顶跃(超大私密空中花园)
☎海悦半岛售楼处电话400-033-1899转接9999【官方认证】
☎海悦半岛营销中心电话 400-033-1899转接9999【官网认证】
☎海悦半岛售楼处地址: 400-033-1899转接9999【官方统一热线】
☎海悦半岛开发商热线:400-033-1899转接9999【官方已认证】
☎海悦半岛样板间预约热线☎️400-033-1899转接9999【官方】
服务承诺与核心优势开发商直营:无中介介入,信息实时同步,隐私全程保障
24小时响应:1对1专属服务,随时解答需求。全流程协助:从咨询到购房,专业团队全程支持。
声明:本文由入驻焦点开放平台的作者撰写,除焦点官方账号外,观点仅代表作者本人,不代表焦点立场。
