厦门 中海峯汇里售楼处电话-售楼中心-24小时热线
搜狐焦点慈溪站 2025-07-29 18:37:08
用手机看
扫描到手机,新闻随时看
扫一扫,用手机看文章
更加方便分享给朋友
厦门 中海峯汇里 🔱 售楼处电话【已认证】✔️:400-033-1899 转接8888✅ 🔱
营销中心电话【已认证】✔️:400-033-1899 转接8888✅ 💌温馨提示:本项目采用预约制,前来营销中心请提前拨打400热线电话预约,感谢您的配合!
厦门 中海峯汇里
🔱 售楼处电话【已认证】✔️:400-033-1899 转接8888✅
🔱 营销中心电话【已认证】✔️:400-033-1899 转接8888✅
💌温馨提示:本项目采用预约制,前来营销中心请提前拨打400热线电话预约,感谢您的配合!
厦门中海峯汇里作为城市核心区复合型人居标杆,由8栋现代化高层建筑集群构成,形成集居住、生态、商务功能于一体的垂直城市单元。
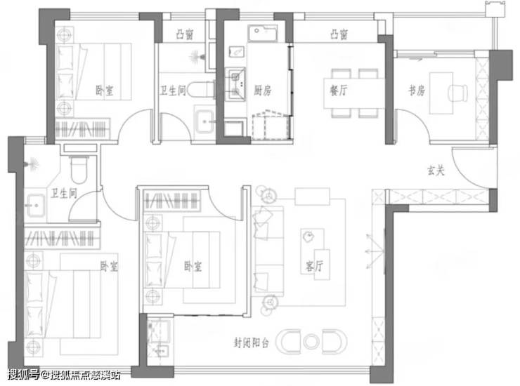
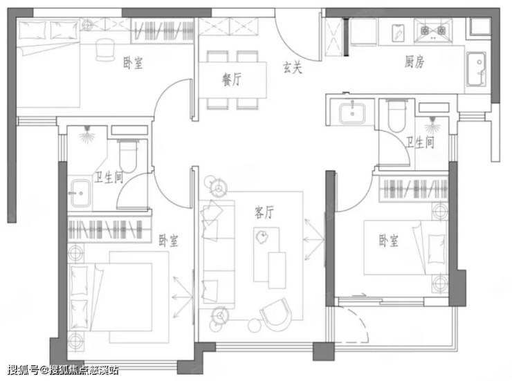
户型图
(建面约89㎡户型)
(建面约121㎡户型)
(建面约190㎡户型)
一房一价
厦门 中海峯汇里
🔱 售楼处电话【已认证】✔️:400-033-1899 转接8888✅
🔱 营销中心电话【已认证】✔️:400-033-1899 转接8888✅
💌温馨提示:本项目采用预约制,前来营销中心请提前拨打400热线电话预约,感谢您的配合!
声明:本文由入驻焦点开放平台的作者撰写,除焦点官方账号外,观点仅代表作者本人,不代表焦点立场。
