【沈阳】中海盛京玖章(售楼处)首页网站→营销中心→欢迎您〢楼盘详情〢最新价格〢户型图〢容积率@售楼处资料
扫描到手机,新闻随时看
扫一扫,用手机看文章
更加方便分享给朋友
🏡✅沈阳 中海盛京玖章
🏡☎️中海盛京玖章售楼处电话:400-033-1899转接2222【营销中心】
🏡☎️中海盛京玖章售楼中心电话:400-033-1899转接2222【已认证】
🏡✅户型图丨项目介绍丨最新房源丨周边配套丨售楼处地址丨样板间丨备案价
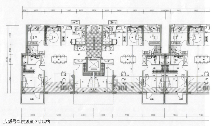
中海·盛京玖章,属于低密洋房园区,总共718户房源,全部精装交付(洋房顶底清水),层高3.1米。
项目大部分户型均有外延露台设计,得房率超100%,是真正意义的第四代住宅产品。
产品规划为:
11F小高2栋,面积为124平;
5-7F洋房25栋,面积段为109、124、132、143、1832、198平;
交付时间:2027年7月末
说句题外话,也难怪房产爱好者们会把中海和华润的新盘做对比,看这面积段规划(润启高层107-140平、洋房143-200平),基本相同的面积段设置,这是真要面对面“亮刺刀”了。
不再废话,先看户型:

1)洋房109平
一梯两户,三室两厅两卫户型,标准的三叶草格局,餐客一体的LDK设计,客厅开间5米,主卧套房,配有独立家政间。
且无论中间户还是边户,均为全明户型,而且是少见的5F洋房,定位为刚需入门产品。
该户型套内面积达到111.01㎡(含赠送面积),得房率102%;
PS:事先声明,谢老板团队户型套内面积是使用户型图供尺计算,为理论上最高值,涵盖了墙体投影面积。非实际地砖面积,后文不再重复说明。
再说说户型缺点,109户型全部排列在地块南侧,临近美园路(规划),随着板块的发展,后续噪音问题是无可避免的(相对的采光会非常好);
其次,109户型南北向共设置了3处空调机位,可见并未精装标准里并没有配置中央空调。

2)小高124平
一梯两户,四室两厅两卫,偏四叶草格局,第四代住宅产品,分奇偶层的错层露台(奇数层在主卧南侧,偶数层在南次卧外延)。客厅开间5.1米,主卧套房,全明户型,配备独立家政间,中央空调。
124平奇数层套内面积为134.24㎡(含赠送面积),得房率108%;
124平偶数层套内面积为133.34㎡(含赠送面积),得房率108%;
说下124户型的两个缺点:
第一,虽然是4间卧室,但北侧中间卧室开间仅有2.8米,没有达到放置正常床的3米开间标准,后续只能通过定制榻榻米或作为书房使用;
第二,入户为“单开门”,刚说完109平洋房也存在同样问题。不同于目前洋房主流的“三七开”,单开门最大的问题在于开门会遮挡电梯,属于小缺陷。
当然这也是中海的一贯设计,目前仍在售的中海·源境、中海·汇德理也是这类洋房设计。

3)洋房132平
一梯一户(电梯AB门),四室两厅两卫,相当于124平的优化升级版,格局大体一致,提升了开间和进深尺寸,拥有5.6米客厅开间,主卧套房,独立家政间、中央空调。
相较于124的2间北卧,132平北卧中间无承重墙,后续可进行拆改合并,结合封装后的北侧露台,届时会有一间超大北卧房。
此外,132平的外置露台的设计略显“花哨”,奇数层3处露台(2南向卧室+1北次卧),偶数层2处(南向客厅+1北书房)。
132平奇数层套内面积为150.14㎡(含赠送面积),得房率114%,配以约7.05㎡的电梯前室,使用率可达119%;
132平偶数层套内面积为146.90㎡(含赠送面积),得房率111%,配以约7.05㎡的电梯前室,使用率可达117%;


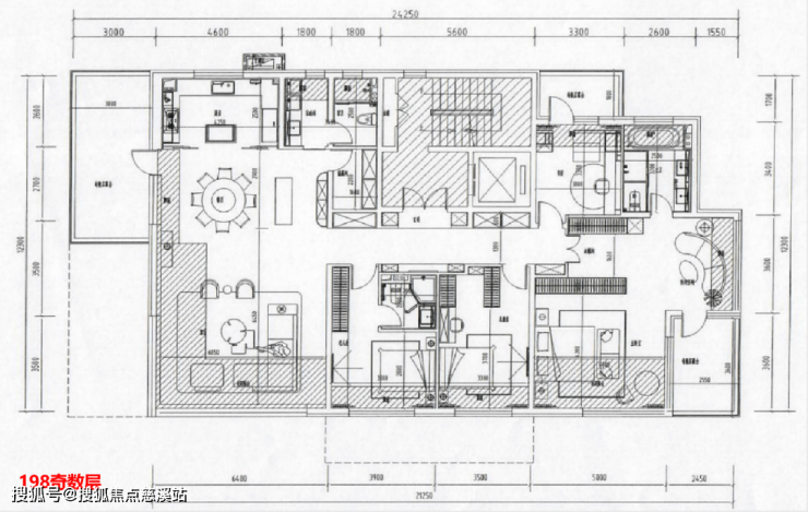
4)洋房198平
今年沈阳中海设计最大胆的产品,也是全沈阳首个一层一户的洋房产品,什么概念?
配上落地窗,室内能实现360度采光,这个房子真正做到了没有邻居,南向开间达到了21.25米。
四室两厅三卫,双侧开窗的边厅设计,198户型排列在园区景观中轴两侧,拥有不错的景观视野,客厅开间6.4米,南向双套房,主卧套尤其“恐怖”——在没有设计南向主卫的基础上,主卧开间就已经达到5米,套内可达44.82㎡。配备“五五开”入户门及主卧门。
奇偶层同样为外延错层露台,奇数层在餐厅侧面、主卧侧面及书房北侧,有3处露台设置;
偶数层在客厅侧面,两间南次卧的南向,有2处露台设置。

198平奇数层套内面积为239.65㎡(含赠送面积),得房率121%,配以约7.82㎡的独立电梯前室,使用率可达125%;

198平偶数层套内面积为237.85㎡(含赠送面积),得房率120%,配以约7.82㎡的电梯前室,使用率可达124%;
目前谢老板就拿到这4款户型,后续新增也会持续更新,敬请期待。

🏡✅沈阳 中海盛京玖章
🏡☎️中海盛京玖章售楼处电话:400-033-1899转接2222【营销中心】
🏡☎️中海盛京玖章售楼中心电话:400-033-1899转接2222【已认证】
🏡✅户型图丨项目介绍丨最新房源丨周边配套丨售楼处地址丨样板间丨备案价
声明:本文由入驻焦点开放平台的作者撰写,除焦点官方账号外,观点仅代表作者本人,不代表焦点立场。
