石家庄云和月明售楼处电话_来电预约看房_(2025云和月明营销中心)楼盘最新详情-2025最新房价
扫描到手机,新闻随时看
扫一扫,用手机看文章
更加方便分享给朋友
石家庄云和月明
售楼处电话:400-100-1299转5888
网上售楼中心〢欢迎来电咨询〢1v1销售专业讲解
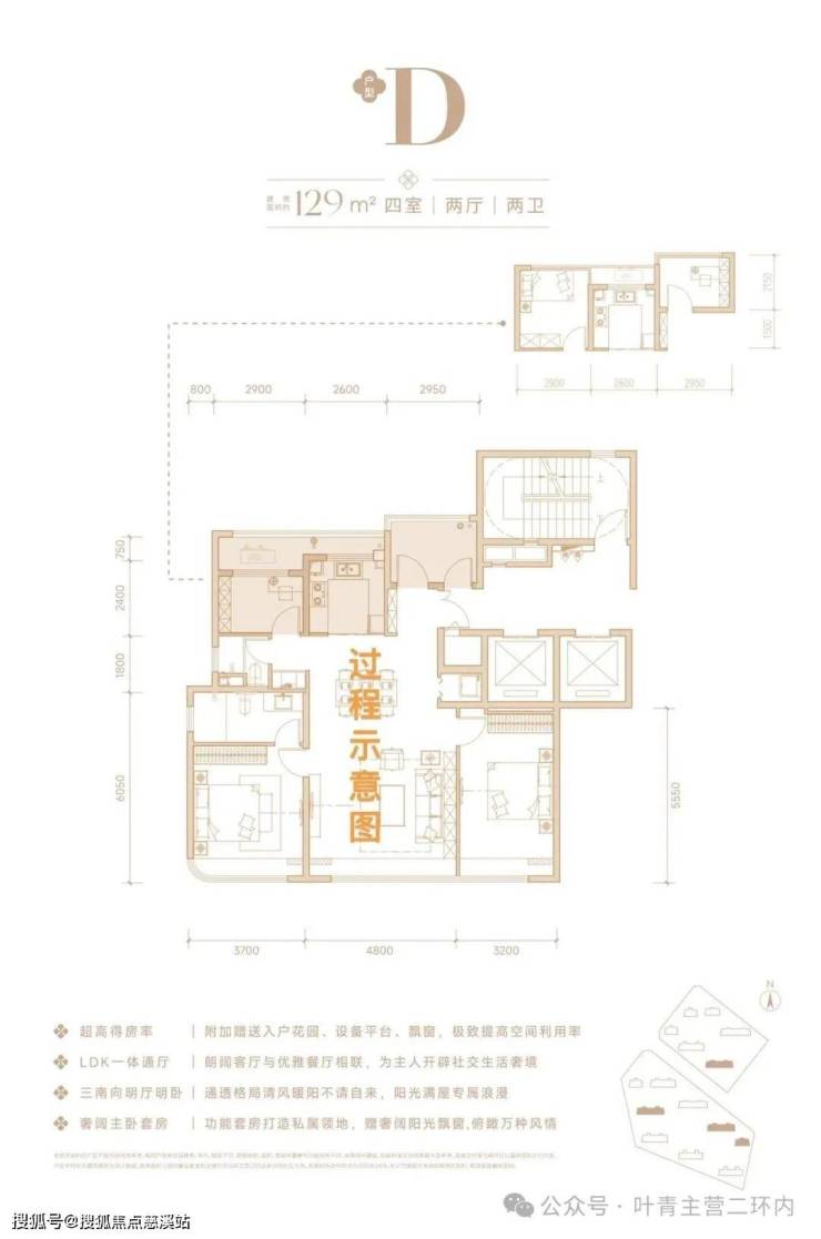
高铁片区新政落地首个项目,以高得房率、多赠送面积、3.1层高为优势,125,139 带有入户花园,宽厅四室,#65-67 地块交付均为毛坯,绿城云和月明到底怎么样?咱们一块来看看
第一,整体规划
【项目总占地】:49813㎡
【建筑面积】:138309㎡
【容积率】:2.0
【绿化率】:35%
【交付标准】:毛坯
【建筑类型】:14栋15F-17F中高层 +1栋10F小高层
【产品面积】:建面约103㎡ ~ 139㎡
【项目地址】:河北石家庄桥西区高铁片区平安南大街与南二环交口东北侧
🎒40中南侧一路之隔
第二,配套和交通情况
一、配套:3公里生活圈的顶配组合
交通:步行800米直达地铁3号线新客站站,规划中的4号线(2026年通车)在项目西侧设站。南二环、胜利大街快速路构成“双轴路网”,15分钟直达北国商城、省博物院等核心商圈。
教育:北侧即为40中宏真校区(九年一贯制),步行5分钟接送孩子。周边还有东风西路小学、草场街小学分校,形成12年全龄教育链。
商业:1公里范围内覆盖华润万象城、新客站商圈,项目自建2万㎡社区商业,满足日常消费需求。
医疗:3公里内省二院南院(三甲)、市人民医院建华院区双重保障,紧急就医无需长途奔波。
评分:9/10(交通、教育优势突出,商业配套稍逊于核心区)
二、规划:低密社区的人性化表达
绿城云和月明由65号地(北地块)和67号地(南地块)组成,容积率仅2.0,是高铁片区唯一低于2.5的新盘。15栋10-17层小高层呈行列式布局,楼间距最大达70米,保证每户日照时长超5小时。
园林设计:延续绿城“桂月五景”理念,打造中央水景、全龄活动区、夜光跑道等功能空间。主入口65米宽的铝板+奢石门头,对标杭州高端项目标准。
建筑细节:外立面采用铝板+大面积玻璃,三玻两腔Low-E窗隔音性能提升30%,有效降低南二环主干道噪音影响。
评分:9.5/10(低密规划和绿城品质是核心优势,部分楼栋临路噪音需注意)
三、户型:新政下的空间革命
作为高铁片区首个“高得房率”项目,云和月明通过优化公摊(约18%)和赠送设备平台,实现建面103-139㎡户型的实际使用率超85%。
主力户型亮点:
- 建面125㎡四叶草户型:南北通透,四开间朝南,主卧套房含独立衣帽间和卫浴,北向书房可改造为儿童房或家政间。
- 建面139㎡宽幕四房:南向面宽13.8米,LDK一体化设计+10.8㎡阳台,三代同堂居住互不干扰。
评分:9/10(户型实用性领先片区竞品,赠送空间提升性价比)
石家庄云和月明
售楼处电话:400-100-1299转5888
网上售楼中心〢欢迎来电咨询〢1v1销售专业讲解
声明:本文由入驻焦点开放平台的作者撰写,除焦点官方账号外,观点仅代表作者本人,不代表焦点立场。
