三亚天正三亚湾售楼处电话_预约看房_三亚天正三亚湾楼盘详情-2025最新房价-户型图
扫描到手机,新闻随时看
扫一扫,用手机看文章
更加方便分享给朋友
➢三亚天正三亚湾售楼处400-033-1899转接5888
➢三亚天正三亚湾售楼处400-033-1899转接5888
➢来电可了解楼盘最新动态、房价、在售房源、交楼时间等信息!让你买的放心,住的舒心!
天正 • 三亚湾
项目地址:三亚市天涯区第九小学(三亚湾校区)东100米
开发商:三亚永基房地产开发有限公司
产权年限:2024-2094年
占地面积:56.52亩
建筑面积:12.8万平方米
容积率 :2.5
绿化率:40%
总层高:16-17层
层高:3.1米
总户数:600户
停车位:879个
物业服务:天正物业

社区周边2公里内,医疗、教育、商业、交通全维配套,位于三亚湾核心位置,距海800米,三亚在售离海最近的住宅项目。

社区周边2公里内,医疗、教育、商业、交通全维配套

多功能业主会所,规划书吧、休闲棋牌、茗香茶室、活力健身等沉浸式私享场景
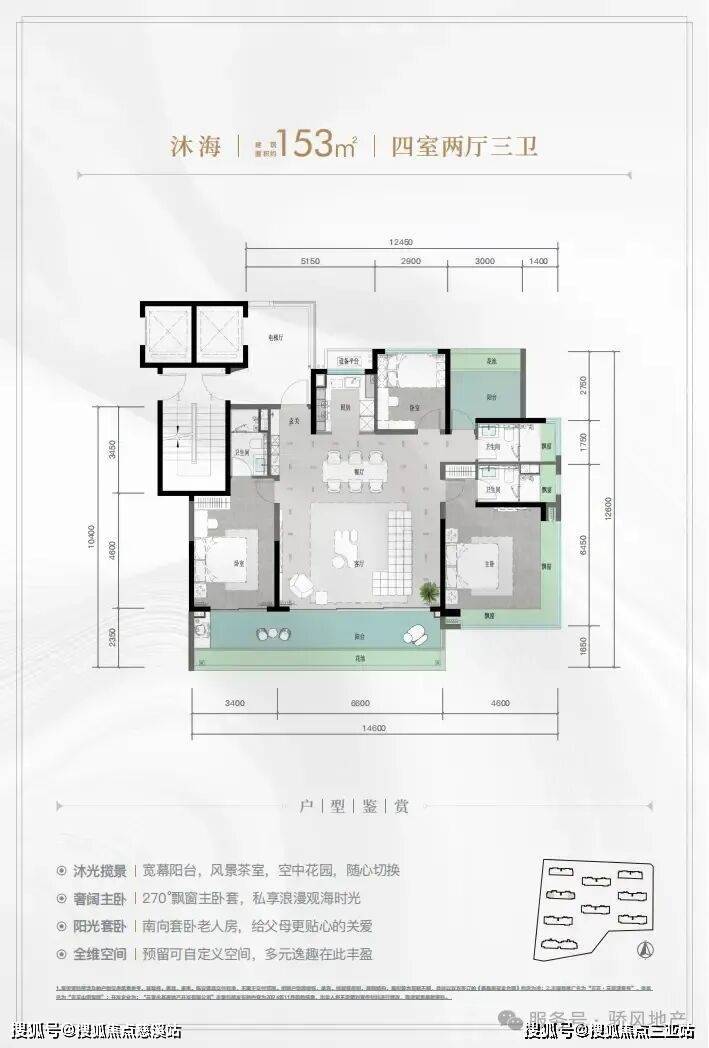
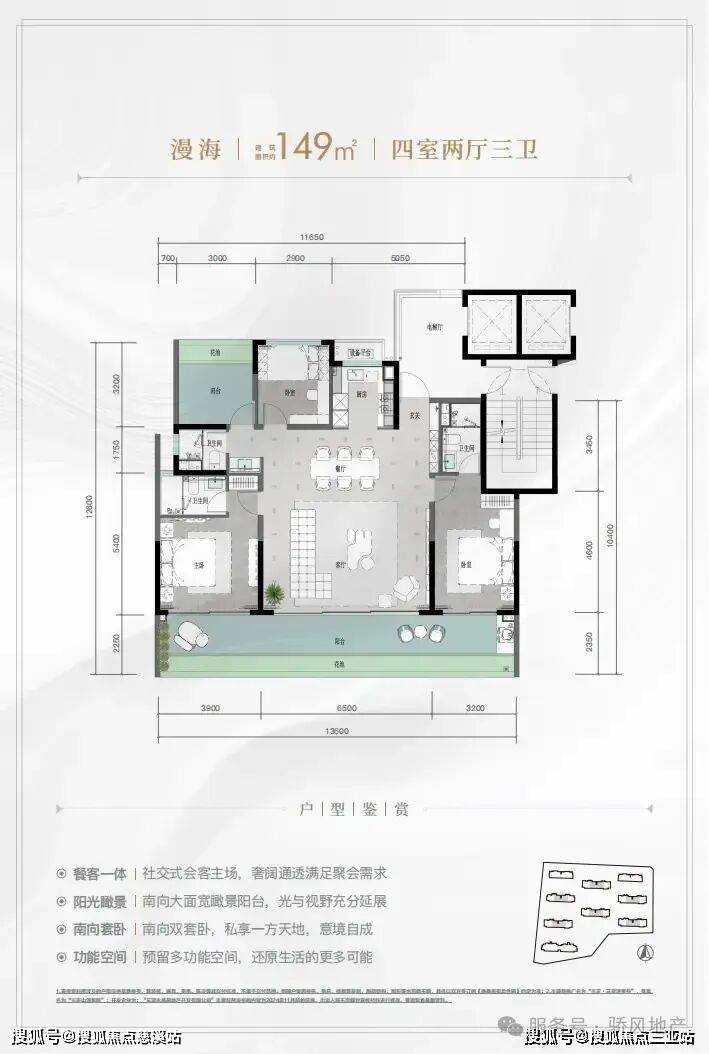
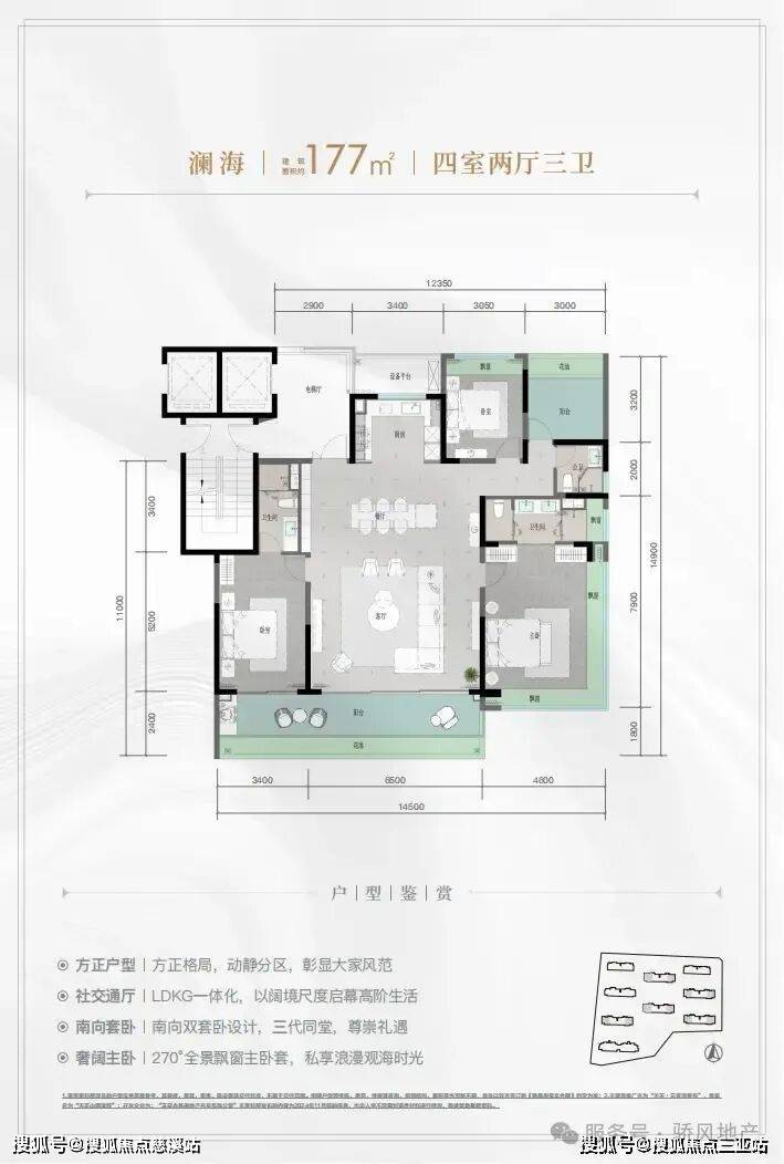
户型面积:
126m三室两厅三卫|149m四室两厅三卫
153m四室两厅三卫|177m四室两厅三卫
211m五室两厅三卫|213m五室两厅三卫
【百强天正冠销华北]
天正地产集团,房地产开发一级资质企业,业务覆盖房地产
开发、园林景观、物业服务等多个领域,产品涵盖高端改善
住宅、精品公寓、商业综合体等多种物业形态,2024年荣登
中国房地产百强企业榜单。(奖项来源:中指研究院)
2024中国房地产百强企业
2024中国房地产开发商1009
“天正地产集团有限公司”
荣获2024中国房地产百银企业
改善大师五力卓著]
发轫河北,布局4省8城57盘,始终坚持以“稳健发展力、土
地储备力、硬核产品力、品质交付力、精细服务力”为指
引,稳居“绿档房企”,总资产1800299万元,所有者权益
382519万元,货币资金262230万元,截止2024年9月底交
付数据为8城14盘,约22400户,满意度达到92%,实现企
业资产和经营的稳健科学发展。
[北纬18°黄金岸线国际度假天堂1
与夏威夷、马尔代夫、巴厘岛等同在18°N的三亚,是全国唯
一的热带滨海旅游城市,素有“东方夏威夷”之称。
-年平均气温25℃左右,相对湿度80-85%,
-负氧离子含量为2万个/㎡,全国大气环境质量排名TOP1
-全国著名长寿地区,平均寿命80岁+
-全国宜居指数TOP3,被誉为“世界最适合人类居住的城市”
➢三亚天正三亚湾售楼处400-033-1899转接5888
➢三亚天正三亚湾售楼处400-033-1899转接5888
声明:本文由入驻焦点开放平台的作者撰写,除焦点官方账号外,观点仅代表作者本人,不代表焦点立场。
